Duplex Vânzare Százhalombatta - ÚJ ÉPÍTÉSŰ, IKERHÁZI LAKÁSOK!

Vânzare Százhalombatta Duplex
88 m2Suprafaţa 2 + 2 Camere
110 000 000 HUF Preţ
393451Identificare
Mai multe detalii

500 m2 Teren

Vedere spre grădină Vedere

În construcție Stare

Caramida Structură

11 m2 Balcon/Terasă

Pompă de căldură Încălzire

Confort 1 Confort

Parcare proprie Parcare

Bun Transport public

Bucătarie deschisă

Existent Acces la grădină

2026 An construcție

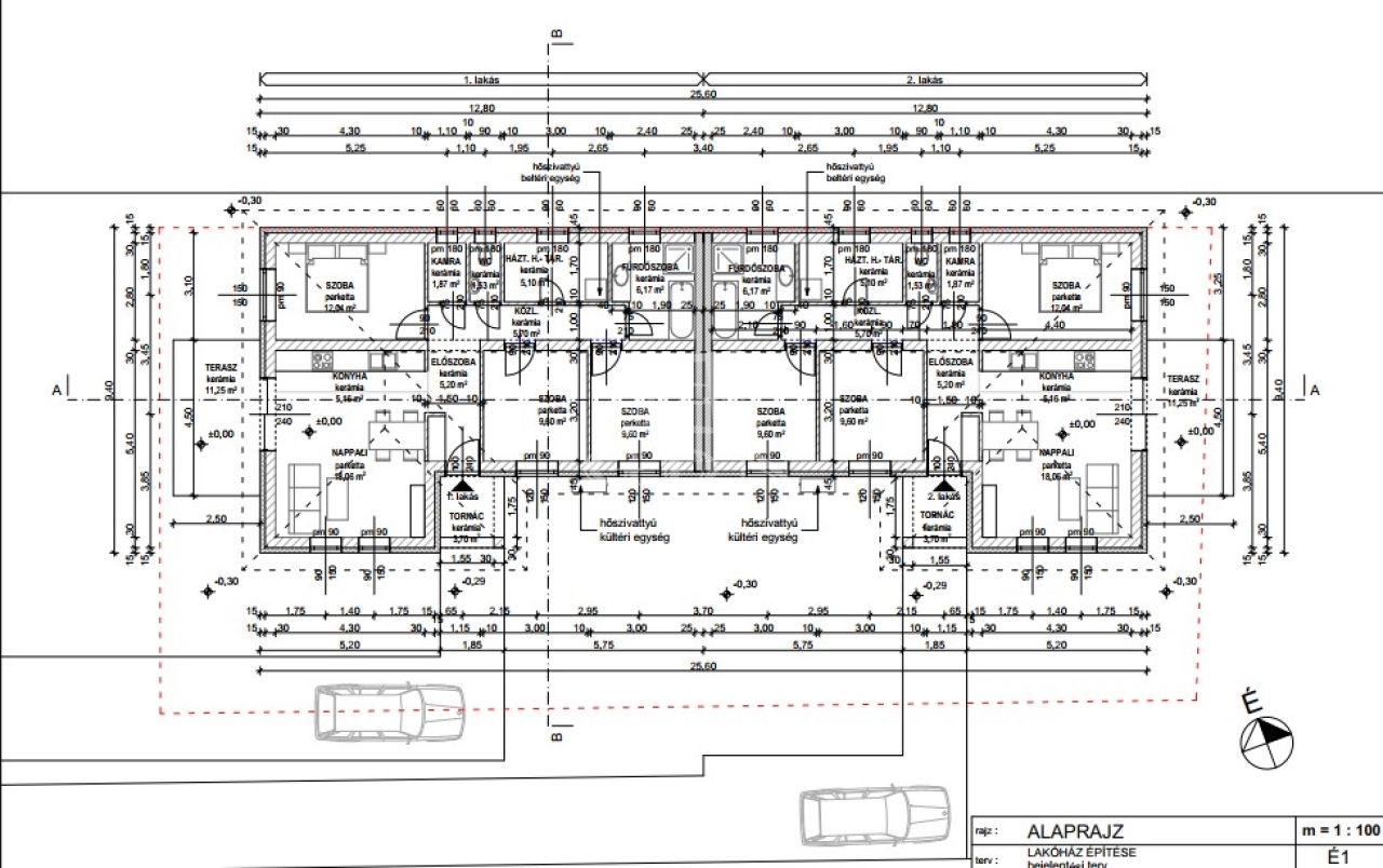
Százhalombatta családi házas övezetében, Dunafüreden kínálunk megvételre két lakóegységből álló ikerházat.

A kivitelező cég számos százhalombattai referenciamunkával rendelkezik, aki több éve megbízhatóan, pontos határidőkkel végzi a kivitelezést ügyfelei legnagyobb megelégedésére.

Az építkezés folyamatosan halad, várható befejezés: 2027 tavasz.

Az ikerházi lakások társasházi alapító okirattal, külön helyrajzi számmal (albetétesítve) és külön mérőórákkal, saját kertrésszel kerülnek átadásra a leendő tulajdonosok részére.

1.lakás:
bruttó 107 nm, nettó 80 nm + 11,25 nm terasz + 3,70 nm tornác
telekterület: 300 nm
szobaszám: 2 + 2


2.lakás:
bruttó 107 nm, nettó 80 nm 11,25 nm terasz + 3,70 nm tornác
telekterület: 450 nm
szobaszám: 2 + 2

Az ár a befejezett, KULCSRAKÉSZ állapotra vonatkozik!

Főbb műszaki paraméterek:
- alap: vasalt, szigetelt beton sávalap
- tartófalazat: 30-as Porotherm XTherm okostégla
- válaszfalak: 10-es Ytong
- szigetelés: homlokzat 15 cm dryvit, lábazat 10 cm xps
- födém: a szerkezetű, 25 cm fújt cellulóz szigeteléssel
- fűtés: Panasonic hőszivattyú (5 kW), padlófűtés hőleadással
- melegvíz: hőszivattyúra kötött 200 literes HMV tartály
- nyílászárók: fehér, három rétegű hő-és hangszigetelt, beépített redőnytokkal

A belső ajtók 50.000 Ft/db, a hideg-és meleg burkolatok 4.000 Ft/nm-es árig a vevő által szabadon választhatóak.

Az érdeklődők részére teljes műszaki és fotódokumentáció rendelkezésre áll, valamint már elkészült referencia házak is megtekinthetőek.

Otthon Start, CSOK Plusz és piaci hitel igénybe vehető, melyben ingatlanirodánk BANKFÜGGETLEN hitelcentruma, DÍJMENTESEN áll érdeklődőink rendelkezésére.

- Egyedi, bankfiókban nem elérhető kamat- és díjkedvezmények
- Hitelképesség vizsgálat
- Idő, energia és pénz megtakarítás
- Teljes hivatali ügyintézés

Ne maradjon le róla!

További információkért és megtekintéssel kapcsolatban várom jelentkezését a hét minden napján.

A hirdetésben szereplő adatok tájékoztató jellegűek, nem minősülnek ajánlattételnek.
Gergicsné Veér Annamária

Gergicsné Veér Annamária
Agent de publicitate

Contactează-mă!

+36-20-396-Arată

Mai multe anunțuri

Agenție Imobiliară
GDN Rețea de agenții imobiliare - SZIGET
+36 24 656 320

Sună-mă

Proprietăți similare