Casa Familiala Vânzare Gödöllő - Palást utca

Vânzare Gödöllő Casa Familiala
165 m2Suprafaţa 5 Camere
169 000 000 HUF Preţ
394647Identificare
Mai multe detalii

744 m2 Teren

Vedere spre grădină Vedere

Renovat Stare

Caramida Structură

25 m2 Balcon/Terasă

Gaz Încălzire

Dupla komfort Confort

Garaj Propriu Parcare

Bun Transport public

Nu Bucătarie deschisă

Existent Acces la grădină

1981 An construcție

Sud Est Orientare

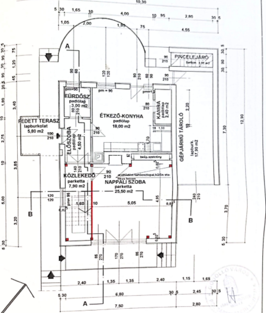
Gödöllő legkedveltebb kertvárosi részén, igényes környezetben eladó egy kiváló állapotú, 150 m²-es, tetőtér-beépítéses, 5 szobás, duplakomfortos (2 fürdőszobás) családi ház, 744 m²-es, gyönyörűen rendezett sarok telken.

A ház ideális családoknak: nappali + 4 külön nyíló hálószoba, praktikus elrendezéssel.
A földszinten napfényes, teraszkapcsolatos konyha-étkező fedett terasszal, kamra, nappali, és fürdőszoba található, míg az emeleten 4 hálószoba, fürdőszoba és dolgozósarok kapott helyet.

Fűtése kondenzációs gázkazán padlófűtés + radiátoros hőleadással, ezen kívül +2 db hűtő-fűtő klíma és kandalló biztosítja a megfelelő hőmérsékletet télen-nyáron.
Az alacsony rezsit 5 kW-os napelemes rendszer segíti, amely még 2031-ig szaldó elszámolású.

A ház szigetelt, a tető újszerű állapotú.

Garázs, fedett kocsibeálló, pince tartozik az ingatlanhoz.

A szépen gondozott kert automata öntöző rendszerrel ellátott.
Egy kerti szerszámos faház és kültéri kemence található a 744 nm-es udvaron.

A telket impozáns tégla - kovácsoltvas kerítés veszi körbe.

Csendes, barátságos környezet, kiváló közlekedés, a belváros könnyen elérhető,

Ajánlom 2-3 gyermekes családoknak, vagy azt tervezőknek, biztos nem fognak csalódni ebben a barátságos és praktikus otthonban.

Pénzügyi támogató csapatunk segít megtalálni a hiányzó forrásokat, amennyiben erre szüksége van.

Várom megtisztelő hívását.

ID:394647
Gergicsné B. Enikő

Gergicsné B. Enikő
Agent de publicitate

Contactează-mă!

+36-30-941-Arată

Mai multe anunțuri

Agenție Imobiliară
GDN Rețea de agenții imobiliare - SZIGET
+36 24 656 320