Casa Familiala Vânzare Gödöllő - Százszorszép utca

Vânzare Gödöllő Casa Familiala
245 m2Suprafaţa 8 Camere
289 900 000 HUF Preţ
389062Identificare
Mai multe detalii

1450 m2 Teren

Curte Vedere

Renovat Stare

Caramida Structură

30 m2 Balcon/Terasă

Gaz Încălzire

Dupla komfort Confort

Garaj Propriu Parcare

Bun Transport public

Bucătarie deschisă

Existent Acces la grădină

2004 An construcție

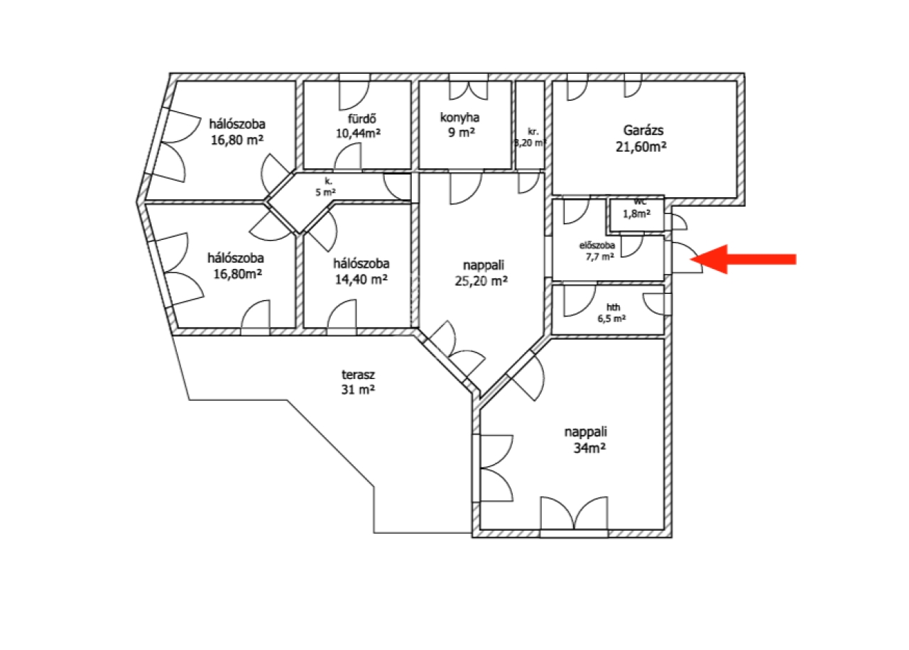
Eladásra kínálok Gödöllő kedvelt, kertvárosias részén, egy 7 szobás, földszint+beéíptett tetőteres családi házat.
Szerkezete: tégla 36 cm Porotherm.
Tető: sátor tető, cserép fedéssel.
Felosztása:
- földszint (150 nm): előszoba, fürdőszoba, wc, amerikai konyhás nappali,spájz, közlekedő, 5 hálószoba.
- tetőtér (98 nm)r: közlekedő, konyha, fürdőszoba, wc, 2 hálószoba.
A nappaliból a beépített (téli kert szerű) teraszra érkezünk ki, amely hozzávetőleg 30 nm nagyságú.
Extrák: udvarban egy különálló kis ház található, ahol elektromosság került bevezetésre, szintén tégla épület.
Saját garázs. Kertben szaleti.
6 db hűtő fűtő klíma.
Riasztórendszer.
2 elektromos nagykapu.
Locsolórendszer.
Redőny, szúnyoghálóval.
5 éve komplett villany és vízvezeték felújítás, tetőtér beépítésére is ekkor került sor.
A fűtésről a kondenzáció gázkazán gondoskodik. Padlófűtéses hőleadással.
Hívjon bizalommal, tekintsük meg együtt!
Gergicsné Veér Annamária

Gergicsné Veér Annamária
Agent de publicitate

Contactează-mă!

+36-20-396-Arată

Mai multe anunțuri

Agenție Imobiliară
GDN Rețea de agenții imobiliare - SZIGET
+36 24 656 320