Birouri închiriere Székesfehérvár - Várkörút

închiriere Székesfehérvár Birouri
147 m2Suprafaţa 3 Camere
520 000 HUF /Luna Preţ
380341Identificare
Mai multe detalii

Stradal Vedere

Stare bună Stare

Caramida Structură

Gaz Încălzire

Pe stradă, în loc public Parcare

Etaj 2

Existent Lift

Excelent Transport public

1995 An construcție

Vest Orientare

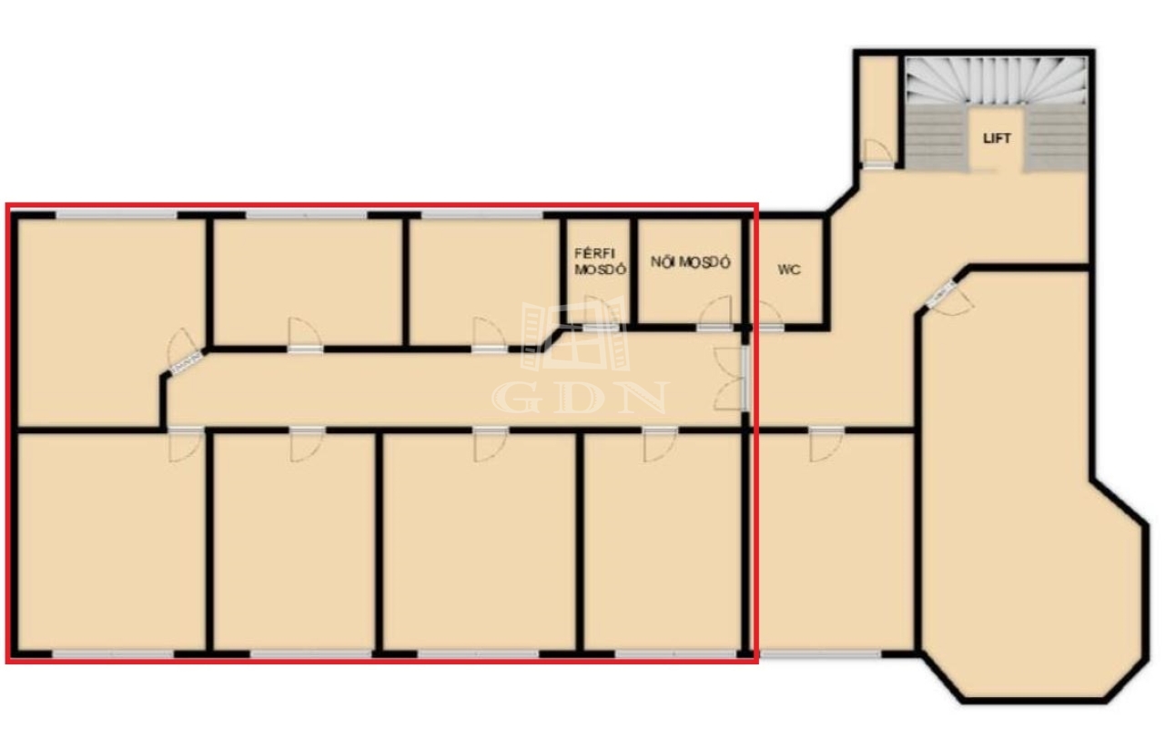
Bip-003526. Várkörúton irodaház második emeletén 147m2 össz. alapterületű több helyiséges ingatlan hosszútávra ill. minimum 1 év időtartamra akár osztva is kiadó!

Az irodaépület tömegközlekedéssel könnyen megközelíthető frekventált helyen, Székesfehérvár belvárosában található. Parkolás az utcán vagy a csupán ~300m-re található parkolóházban megoldott.

Jellemzők:
‣ városközponti elhelyezkedés
‣ liftes irodaházban 4 helyiség
‣ minden helyiség a legmodernebb hűtő-fűtő klímával felszerelt
‣ felszerelt teakonyha
‣ a helyiségek a lépcsőháztól elzárt folyosón helyezkednek el, emiatt alkalmas privát ügyfélforgalom lebonyolítására is.
‣ riasztóval, kamerarendszerrel és beléptetővel felszerelt
‣ közöshasználatú női-férfi mosdó és egykülönálló szolgálati mosdó

Bérleti díj: Egyben: 520ezer Ft/hó+rezsi + 2 hónap kaució
Osztva: 3500Ft/nm/hó+rezsi + 2 hónap kaució
Rezsi: gáz – 170Ft/nm/hó
közösköltség: 250Ft/nm/hó
villany: helyiségenként mérve


Ha felkeltette érdeklődését, hívja irodánkat bizalommal, éljen ingyenes, személyre szabott hitelügyintézés szolgáltatásunkkal. Segítünk továbbá adásvételhez szükséges ügyvédi közreműködésben, energetikai tanúsítvány, valamint értékbecslés elkészítésében.

For English details please send us a message or an e-mail, thank you.
Kémeri-Szekernyés Tímea

Kémeri-Szekernyés Tímea
Agent de publicitate

Contactează-mă!

+36-30-248-Arată

Mai multe anunțuri

Agenție Imobiliară
GDN Rețea de agenții imobiliare - SZIGET
+36 24 656 320