Családi ház Eladó Tordas - zöldövezet

Eladó Tordas Családi ház
130 m2Alapterület 3 + 1 Szoba
119 000 000 Ft Ár
Hitelkalkuláció folyamatban... Loading
394932Azonosító
További adatok

888 m2 Telek

Udvari Kilátás

Jó állapotú Állapot

Tégla Szerkezet

42 m2 Erkély/terasz

Gáz (cirkó) Fűtés

Dupla komfort Komfort

Saját garázs Parkolás

Közepes Tömegközlekedés

Nem Amerikai konyhás

Van Kertkapcsolat

1985 Építés éve

Eladó családi ház Tordason

Tordas csendes, rendezett részén eladó egy 1980-as években épült, klasszikus kialakítású, tágas családi ház, 888 nm-es telken.

Az ingatlan kiváló elosztású, két szinten kínál kényelmes életteret:
Lakószint (130 nm):
• 4 külön nyíló szoba
• tágas, világos konyha étkezővel
• fürdőszoba, mellékhelyiségek
• erkélyek
• nagy, fedett terasz közvetlen kertkapcsolattal
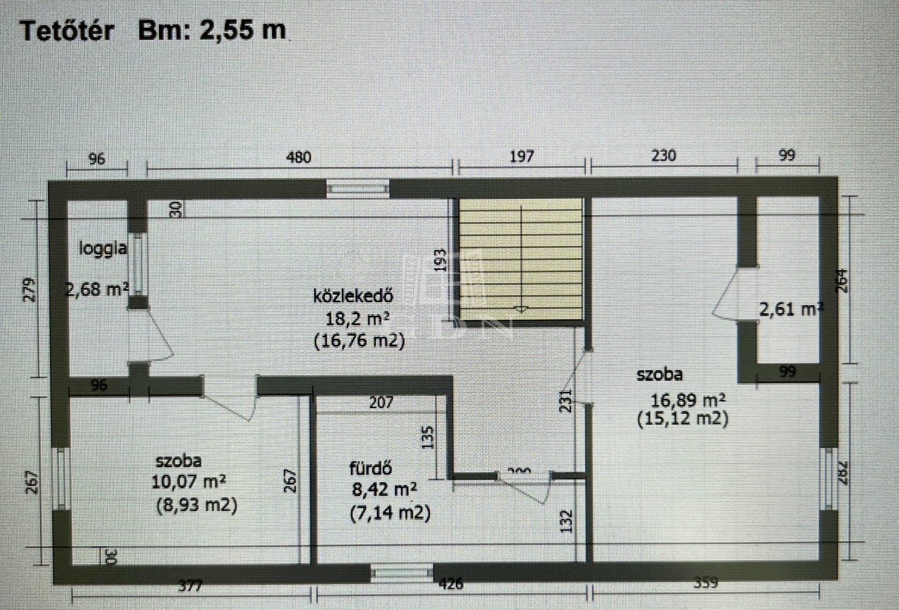
A tetőtér beépített, így további hasznos tér áll rendelkezésre.

Alsó szint (pinceszint):
• garázs
• nagy méretű kazánház
• tárolóhelyiségek
Műszaki jellemzők:
• gázkazán és vegyestüzelésű kazán
• padlófűtés és radiátoros hőleadás
• 1500 literes indirekt melegvíz-tároló
Kert:
A gondozott, 888 nm-es telken egy hangulatos, fedett teraszhoz kapcsolódó épített kemence is helyet kapott, amely ideális családi és baráti összejövetelekhez.

Az ingatlan masszív szerkezetű, jól alakítható, többgyermekes családok számára is ideális választás.

Amennyiben az ingatlan felkeltette érdeklődését keressen bizalommal!

AMENNYIBEN NEM RENDELKEZIK A TELJES VÉTELÁRRAL, segítünk Önnek megtalálni a legjobb megoldást!
BANKFÜGGETLEN hitelcentrumunk minden elérhető bank és hitelintézet ajánlatát versenyezteti az Ön kedvéért, ráadásul díjmentesen. Önnek nincs más dolga, mint elbeszélgetni munkatársunkkal, aki a hallott információk alapján versenyre hívja a bankokat, hogy Ön hosszú távon is a legjobb konstrukciót kaphassa. A legjobb ajánlatokból végül Ön választhatja ki a nyertest. Munkatársaink sokéves szakmai tapasztalattal várják Önt, előre egyeztetve akár a normál munkaidő után is.
Gergicsné Veér Annamária

Gergicsné Veér Annamária

Hívjon bizalommal

+36-20-396-Mutasd!

További hirdetéseim

Ingatlaniroda
GDN Ingatlanhálózat - SZIGET
+36 24 656 320