Családi ház Eladó Szigetmonostor - Szentendrei sziget

Eladó Szigetmonostor Családi ház
222 m2Alapterület 4 Szoba
250 000 000 Ft Ár
Hitelkalkuláció folyamatban... Loading
393512Azonosító
További adatok

7317 m2 Telek

Panoráma Kilátás

Jó állapotú Állapot

Tégla Szerkezet

70 m2 Erkély/terasz

Hőszivattyú Fűtés

Dupla komfort Komfort

Saját garázs Parkolás

Közepes Tömegközlekedés

Amerikai konyhás

Van Kertkapcsolat

2000 Építés éve

Déli Tájolás

A szentendrei szigeten, csendes, nyugodt, zöldövezeti környezetben várja új tulajdonosát a fotókon látható 7317 négyzetméteres birtok. A területből 400 négyzetméter kivett lakóház/udvar, a nagyobb rész pedig gyümölcsös/gazdasági épület besorolású.

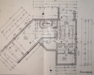
Az épület kert felőli részén nagy méretű, 70 nm-es déli tájolású hangulatos panorámás terasz van kialakítva, melynek egyik oldalán helyezkedik el a nappali, konyha, étkező, a másik oldalán pedig 3 hálószoba, gardrób 2 fürdőszoba és a WC. Az ablakok úgy helyezkednek el, hogy bárhol is vagyunk a házban, mindenhonnan látható a kert és a saját 150 nm-es halas tó.

A pinceszinten kapott helyet a kétállásos garázs, a kazánház, a tárolók és a kamra. Innen nyílik az ellenáramoltatóval ellátott, fedett uszoda, a szauna és a borospince is. A ház fűtését és a meleg vizet hőszivattyú biztosítja, de alternatív lehetőségként van vegyes tüzelésű kazán, gáz-cirkó rendszer radiátorral és a nappaliban kandalló, ami nem csak hangulatossá teszi ezt a szintet, de képes az egész ház fűtésére is. Ezen kívül 36 db napelem biztosítja az áramellátást, amely a 200 nm-es műhely tetején helyezkedik el.
Ebből is érzékelhető, hogy a ház nagyon átgondoltan lett kialakítva, a tervező előre látóan minden lehetséges helyzetre gondolt, mindemellett a praktikum, a kényelem és az esztétika is fontos szempont volt.

Ajánlom azok számára, akik privát, nyugodt szép környezetben szeretnének maguknak egy terjedelmes birtokot, ami számtalan lehetőséget nyújt különböző ötletek megvalósítására, vagy olyanoknak, akik gazdálkodni szeretnének.

Ha szeretné mindezt személyesen is látni, várom hívását a hét bármely napján.

Amennyiben nem rendelkezik a teljes vételárral, bankfüggetlen hitelcentrumunk minden elérhető bank és hitelintézet ajánlatát versenyezteti az Ön kedvéért, ráadásul díjmentesen. Önnek nincs más dolga, mint elbeszélgetni munkatársunkkal, aki a hallott információk alapján versenyre hívja a bankokat, hogy Ön hosszú távon is a legjobb konstrukciót kaphassa. A legjobb ajánlatokból végül Ön választhatja ki a nyertest. Munkatársaink sokéves szakmai tapasztalattal várják Önt, előre egyeztetve akár a normál munkaidő után is.
Csík Zsolt

Csík Zsolt

Hívjon bizalommal

+36-30-641-Mutasd!

További hirdetéseim

Ingatlaniroda
GDN Ingatlanhálózat - SZIGET
+36 24 656 320

Visszahívást kérek

Keressen bennünket