Lakás (téglaépítésű) Eladó Szombathely - Szent László király u.

Eladó Szombathely Lakás (téglaépítésű)
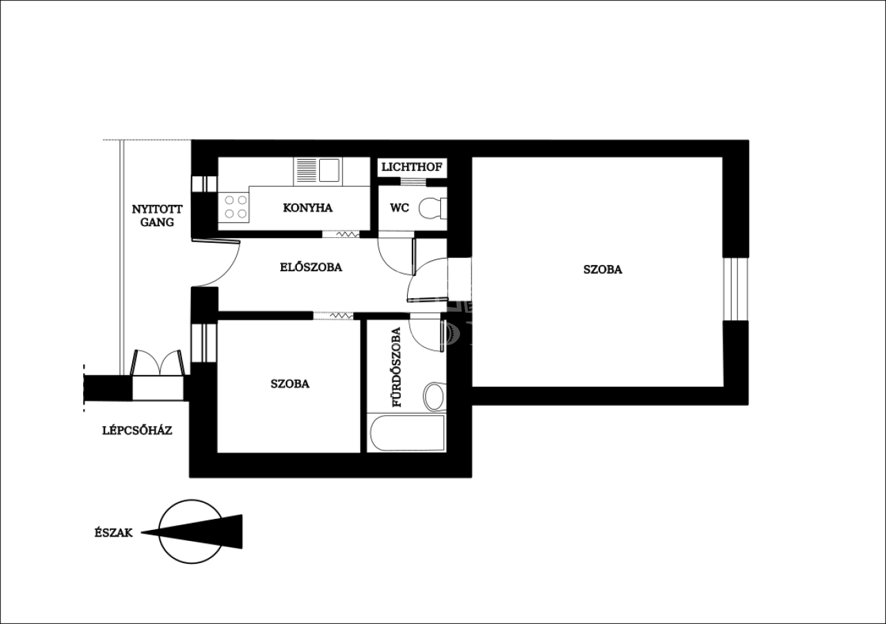
42 m2Alapterület 2 Szoba
35 900 000 Ft Ár
Hitelkalkuláció folyamatban... Loading
394181Azonosító
További adatok

Udvari Kilátás

Felújított Állapot

Tégla Szerkezet

Gáz (konvektor) Fűtés

Összkomfort Komfort

Utcán, közterületen Parkolás

Emelet Magasföldszint

Nincs Lift

Tömegközlekedés

Nem Amerikai konyhás

Nincs Kertkapcsolat

1962 Építés éve

Déli Tájolás

Szombathelyen a Szent László király utcában 42 m2-es magasföldszinti lakás eladó. Az ingatlant 2016-ban felújították. A külső nyílászárók fokozottan hang-és hőszigeteltek, redőnyökkel felszereltek. A fa kivitelű ablakok és a bejárati ajtó cseresznye színű pácot kapott. A lakás fűtéséről gázkonvektorok gondoskodnak. A melegvizet villanybojler szolgáltatja. A felújítás során a villanyhálózatot 32 A -re bővítették. Fürdőszoba teljes felújításon esett át. Nappalijában jó állapotú eredeti fa parketta található. Az előszoba, hálószoba új laminált padlóval burkolt.
A lakás nyitott gangról közelíthető meg. A társasházi ingatlan közös kertje körbekerített. Az ingatlanhoz saját nagy pincetároló tartozik. Igény szerint teljes bútorzattal kerül az új lakó tulajdonába. Lokáció tekintetében remek választás. A közelben minden megtalálható ami a kényelmes lakhatást szolgálja. Előnye, hogy szinte azonnal költözhető. Befektetésnek is kiváló, két felsőoktatási intézmény található a szomszédságában. Az ELTE Savaria Campus és a Soproni Egyetem Savaria Egyetemi központja . Az intézményeknek köszönhetően folyamatos bérbeadási lehetőséget biztosít.
Kémeri-Szekernyés Tímea

Kémeri-Szekernyés Tímea

Hívjon bizalommal

+36-30-248-Mutasd!

További hirdetéseim

Ingatlaniroda
GDN Ingatlanhálózat - SZIGET
+36 24 656 320