Lakás (panel) Eladó Százhalombatta - Kulcsrakészen teljeskörű felújítás!

Eladó Százhalombatta Lakás (panel)
52 m2Alapterület 2 Szoba
62 800 000 Ft Ár
Hitelkalkuláció folyamatban... Loading
393881Azonosító
További adatok

Panoráma Kilátás

Újszerű Állapot

Beton Szerkezet

4 m2 Erkély/terasz

Távfűtés Fűtés

Összkomfort Komfort

Utcán, közterületen Parkolás

Emelet 3

Nincs Lift

Kiváló Tömegközlekedés

Nem Amerikai konyhás

Nincs Kertkapcsolat

1984 Építés éve

Százhalombatta déli lakótelepén kínálunk megvételre egy harmadik emeleti 50 nm nagyságú, 2 szobás tágas, napfényes, erkélyes lakást.

Az ingatlan teljes egészében felújításra kerül, a kulcsrakész állapot pár héten belül megtörténik.

Kulcsrakész állapot felújítási munkái:
- elektromos hálózat és vízvezetékek cseréje
- új biztonsági bejárati ajtó
- hideg-és melegburkolatok cseréje
- radiátorok cseréje
- új, gépesített prémium konyhabútor, beépített főzőlappal és sütővel
- új szaniterek:kád, mosdó, wc (folyamatban)
- nappali szobába klíma felszerelése (folyamatban)
- új beltéri ajtók (folyamatban)

Igazi meghitt otthon a jól átgondolt, igényes tervezésnek és kivitelezésnek köszönhetően, ahol az új tulajdonosnak már nem kell a felújítással bajlódnia.


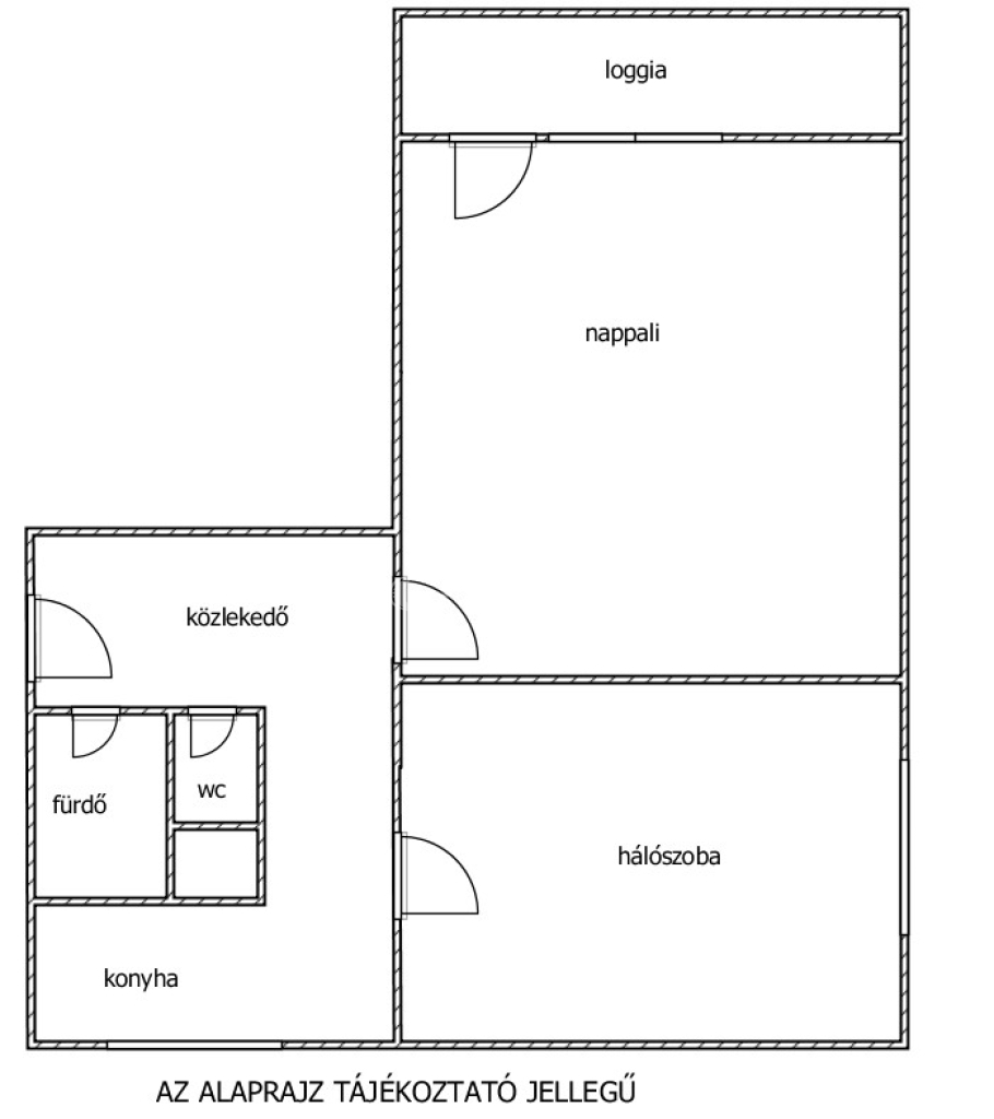
Helyiségei:

- közlekedő
- fürdő
- wc
- konyha
- szoba
- nappali + erkély

- tároló (pinceszinten)

Fűtése távfűtés, a hőleadás radiátoron keresztül történik.

Az ingatlan külső szigetelése és a nyílászárók cseréje panelprogram keretében megtörtént.

Az ingatlan tehermentes. Az ár irányár!
Befektetésnek is kiváló lehetőség, gyorsan bérbe adható.

Irodánk teljes körű banki hitellehetőségekkel, pénzügyi konstrukciókkal, állami támogatásokkal díjmentesen áll az érdeklődők rendelkezésére.

Amennyiben további tájékoztatásra van szüksége, vagy szeretné megtekinteni az ingatlant kérem, hívjon a hét bármely napján.

A hirdetésben szereplő adatok tájékoztató jellegűek, nem minősülnek ajánlattételnek.
Gergicsné B. Enikő

Gergicsné B. Enikő

Hívjon bizalommal

+36-30-941-Mutasd!

További hirdetéseim

Ingatlaniroda
GDN Ingatlanhálózat - SZIGET
+36 24 656 320