Családi ház Eladó Budapest XX. kerület - Önálló házikó

Eladó Budapest XX. kerület Családi ház
45 m2Alapterület 2 Szoba
56 900 000 Ft Ár
Hitelkalkuláció folyamatban... Loading
393595Azonosító
További adatok

160 m2 Telek

Udvari Kilátás

Felújított Állapot

Tégla Szerkezet

Gáz (cirkó) Fűtés

Összkomfort Komfort

Utcán, közterületen Parkolás

Kiváló Tömegközlekedés

Nem Amerikai konyhás

Van Kertkapcsolat

1970 Építés éve

Eladó felújított családi ház Pesterzsébet – Pacsirtatelepen

Eladásra kínálunk Pesterzsébet kedvelt, csendes Pacsirtatelep részén egy felújított családi házat, amely ideális választás lehet fiatal párok első otthonának vagy kisebb család számára.

Az ingatlan önálló helyrajzi számon van bejegyezve.

A felújítás során elvégzett munkák
A ház az elmúlt időszakban jelentős korszerűsítésen esett át:
* 10 cm-es külső hőszigetelés és nemesvakolat
* Új, háromrétegű műanyag nyílászárók
* Teljes villanyvezeték csere
* Új szennyvízcsövek
* Új tető cseréplemez fedéssel
* Új, modern linóleum burkolatok

Fűtés és közművek
Az otthon kellemes hőmérsékletéről gázcirkó fűtés, valamint egy felújított cserépkályha gondoskodik.
A melegvizet villanybojler biztosítja.

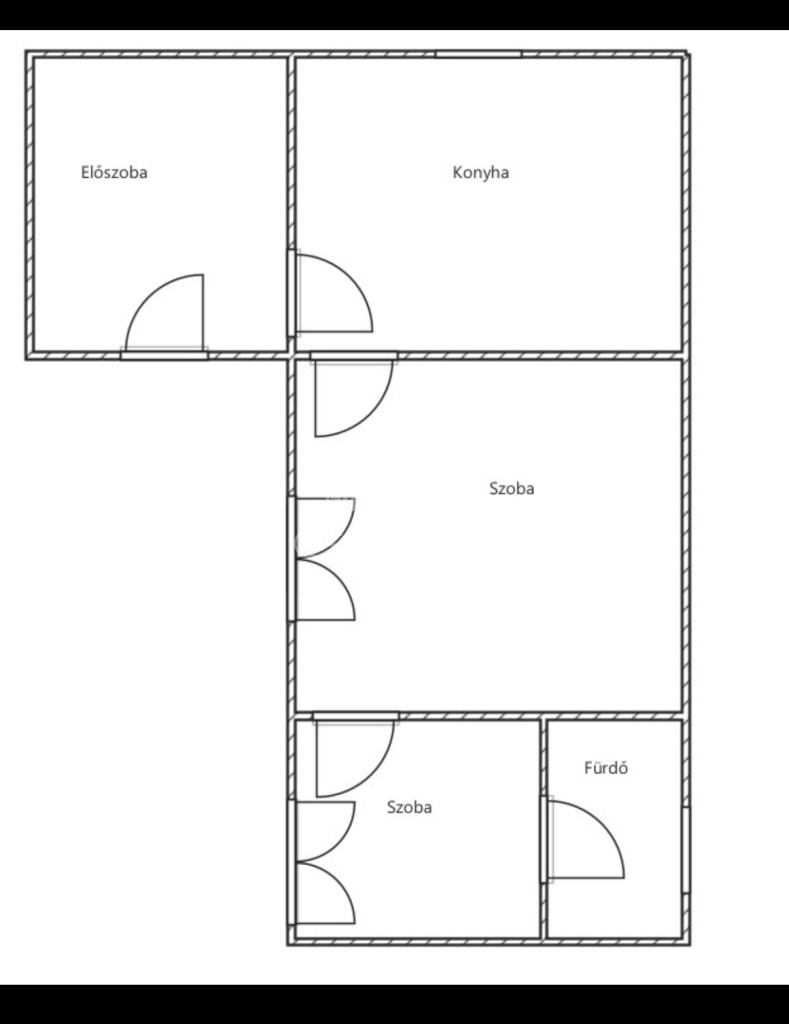
Helyiségek elrendezése
A ház praktikus elosztású:
* előszoba nagy beépített szekrénnyel
* konyha
* 3 m²-es spájz
* tágas első szoba
* abból nyíló második szoba
* fürdőkádas fürdőszoba

További lehetőségek:
A fürdőszoba jelenleg felújításra vár, azonban a tulajdonos a vételár részeként a vevő igényei szerint felújítja.

Az új konyhabútor beépítése szintén megegyezés tárgyát képezheti.

Környék:

A környék családi házas, a tömegközlekedés kiváló, így a város többi része is könnyen elérhető.

Ez az ingatlan kiváló lehetőség lehet azok számára, akik egy felújított, azonnal költözhető otthont keresnek, ugyanakkor még saját ízlésük szerint szeretnék alakítani egyes részleteit.

Az alaprajz tájékoztató jellegű!

Amennyiben hitelfelvétel is érdekelné, bankfüggetlen hitelközpontunk térítés mentes nyújt segítséget ügyfeleink részére!

További információért vagy megtekintésért keressen bizalommal!
Csík Zsolt

Csík Zsolt

Hívjon bizalommal

+36-30-641-Mutasd!

További hirdetéseim

Ingatlaniroda
GDN Ingatlanhálózat - SZIGET
+36 24 656 320