Raktár Kiadó Székesfehérvár - Kereszttöltés utca

Kiadó Székesfehérvár Raktár
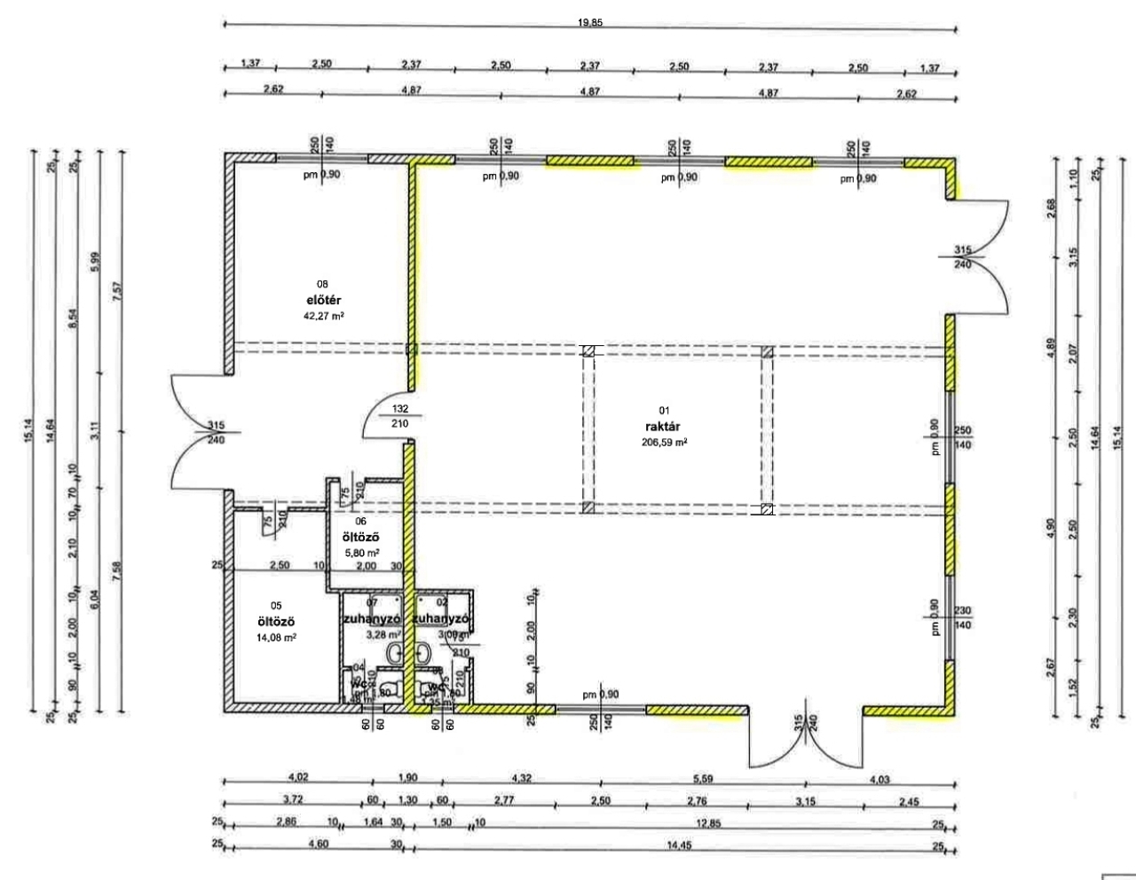
220 m2Alapterület 0 Szoba
400 000 Ft /Hó Ár
391356Azonosító
További adatok

Jó állapotú Állapot

Tégla Szerkezet

Egyéb Fűtés

Saját beálló Parkolás

Közepes Tömegközlekedés

1994 Építés éve

Bip-004703. Kereszttöltés úton, zárt telephelyen belül 220m2 alapterületű raktár/műhely kiadó!

‣ rendezett, őrzött telephelyen belül
‣ igény esetén kis iroda kialakítható
‣ felújított vizesblokk
‣ jelenleg nem fűtött de igény esetén kialakítható (hűtő-fűtő klímákkal)
‣ saját parkoló az épület mellet biztosított

Igény esetén további 65m2 raktár hozzábérelhető.

Bérleti díj: 400.000,- Ft +ÁFA/hó +rezsi


Ha felkeltette érdeklődését, hívja irodánkat bizalommal, éljen ingyenes, személyre szabott hitelügyintézés szolgáltatásunkkal. Segítünk továbbá adásvételhez szükséges ügyvédi közreműködésben, energetikai tanúsítvány, valamint értékbecslés elkészítésében.

For English details please send us a message or an e-mail, thank you.
Köő Zsolt

Köő Zsolt

Hívjon bizalommal

+36-20-234-Mutasd!

További hirdetéseim

Ingatlaniroda
GDN Ingatlanhálózat - SZIGET
+36 24 656 320