Lakás (téglaépítésű) Eladó Szeged - Szeged Belvárosi új lakások eladók!

Eladó Szeged Lakás (téglaépítésű)
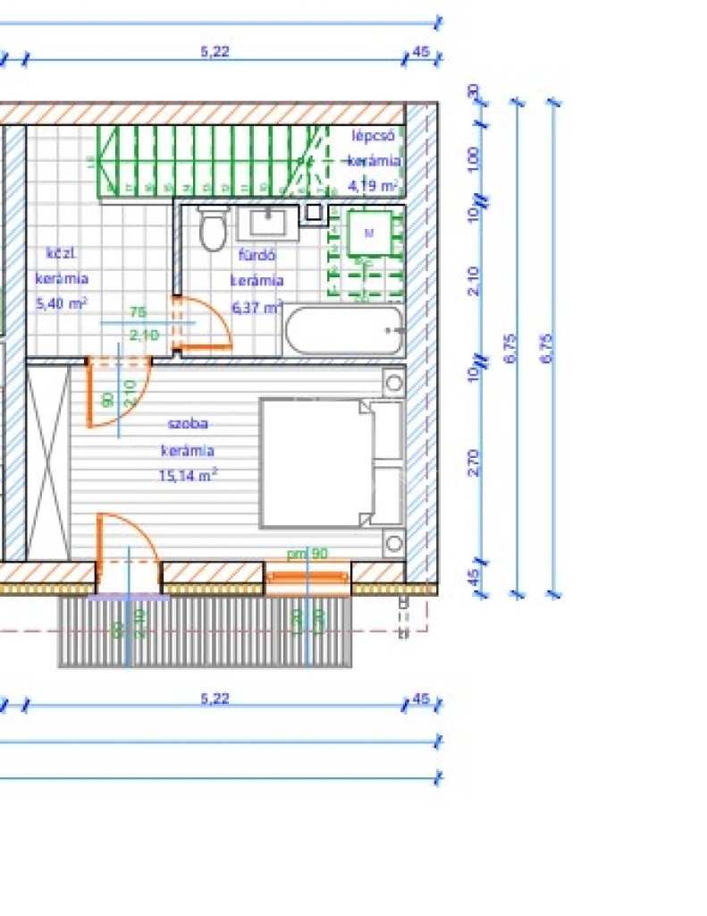
60 m2Alapterület 2 Szoba
94 900 000 Ft Ár
Hitelkalkuláció folyamatban... Loading
390238Azonosító
További adatok

50 m2 Telek

Udvari Kilátás

Új Állapot

Tégla Szerkezet

Egyedi kazán Fűtés

Összkomfort Komfort

Garázs/beálló vásárolható Parkolás

Emelet Földszint

Nincs Lift

Kiváló Tömegközlekedés

Amerikai konyhás

Nincs Kertkapcsolat

2025 Építés éve

Eladó új építésű, belvárosi kertkapcsolatos lakások Szegeden

Belvárosi – csendes belső udvarban helyezkednek el
Ingatlan típusa: társasházi lakás
Alapterület: 60m2 + 50m2 PRIVÁT KERT
Elrendezés: amerikai konyhás nappali + 1 hálószoba

Főbb jellemzők:

Csendes, mégis belvárosi környezet

2 méter mély, 60 cm széles C25-ös beton alapozás, Leier 30 N/F tégla falazat 15 cm hőszigeteléssel

Hanggátló válaszfalak a teljes nyugalomért

Bramac antracit tetőcserép

3 rétegű üvegezésű műanyag nyílászárók

Padlófűtés (Westend 24 kW-os gázkazán + 100 l-es hőtároló)

3,5 kW-os hűtő-fűtő klíma

Energetikailag korszerű kivitelezés

Kíváló minőségű anyaghasználat

A VÉTELÁR TARTALMAZ 1M Ft KONYHABÚTORT , 10000Ft/M2 HIDEG-MELEG BURKOLATOKAT, 500e Ft SZANITEREKET , 100e Ft/DB BELTÉR AJTÓKAT.

ÖN MEGÁLMODJA ÉS 60 NAPON BELLÜL MÁR A SAJÁT ÍZLÉSE SZERINT KIALAKÍTOTT OTTHONBAN LAKIK.

További lehetőségek:

Kocsibeálló vásárolható: 5,5 millió Ft

Garázs vásárolható: 12 millió Ft


HITELKÉPES LAKÁSOK!

Ez a lakás ideális választás mindazok számára, akik belvárosi elhelyezkedést, modern technológiát és privát életteret keresnek Szeged szívében, de rendívüli lehetőség befektetési célra is!

TEKINTSE MEG SZEMÉLYESEN REFERENCIA INGATLANUNKAT!
Gergicsné Veér Annamária

Gergicsné Veér Annamária

Hívjon bizalommal

+36-20-396-Mutasd!

További hirdetéseim

Ingatlaniroda
GDN Ingatlanhálózat - SZIGET
+36 24 656 320