Tanya Eladó Kecskemét - Kecskemét Borbás

Eladó Kecskemét Tanya
72 m2Alapterület 2 Szoba
22 000 000 Ft Ár
Hitelkalkuláció folyamatban... Loading
346831Azonosító
További adatok

1262 m2 Telek

Kertre néző Kilátás

Felújítandó Állapot

Vályog Szerkezet

Egyéb Fűtés

Komfort Komfort

Saját garázs Parkolás

Gyenge Tömegközlekedés

Nem Amerikai konyhás

Van Kertkapcsolat

1973 Építés éve

Otthonok és megoldások.
Kecskemét határában, Borbás Bács-Zöldért közelében, 1262 nm bekerített területen, régi idők hangulatát idéző tanyasi ingatlan eladó.
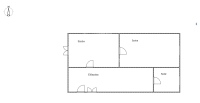
Tulajdon lap szerint: kivett tanya, épületek feltüntetve a térképen.
Főépület: 60 cm vastag vályogból épített, 72 nm, előszoba-spejz-két szoba, alatta egy zöldség tároló boros pince, kb 20 nm.
Nyári konyha: kb 30 nm, tágas, fürdőszobával. Felújításkor van lehetőség becsatlakoztatni a főépületbe.
Két autó beállására alkalmas, burkolt garázs ami műhelyként funkcionált.
Régi műhely, több helyiséges.
Ólak-fatároló-kert.
Régi műhely tele van az elmúlt évtized " kincseivel" (szerszámok, hordók, stb...)
Amennyiben nem messze a várostól, tanyasi nyugalomra vágyik, várom megtisztelő hívását!
Az alföldi tanyavilág első pillanatra egyhangúságával, csöndes nyugalmával talán unalmasnak is tűnhet mindazoknak, akik a harsány, látványos világhoz szokott ókulárén keresztül nézik. Pedig különleges értékeket rejt e végtelen, hallgatag róna. Kegyesen, tiszta valójában feltárja magát annak, aki úgy érez, mint a hajdani pásztorok, akik hitték és tudták, hogy ez Isten asztala, ahol sem hazugságnak, sem álságnak helye nincsen. Akik, valamiféle isteni elrendezésből ma is itt élnek, örökösei és őrzői e hagyatéknak, ahol máshogy talán nem is élhet a lélek.
Ajánlom mindazok figyelmébe, akik nem messze a várostól, tanyasi nyugalomra vágynak városi komforttal.
Akiknél felértékelődik a háztájiban megtermelt élelmiszer, a szárba szökkent palánta, a magyar gyümölcsfáink termése, akik nem bolti húsra vágynak, akiknek zene a susogó fák dala.
A fiataloknak legyen hite és bátorsága vidéken élni, a két kezük munkájának örülni. Merítsünk erőt őseink hagyatékéból, és népesítsük be újra a vidéket.
Szálljon fel a füst szerény, szép tanyasi porták kéményéből és töltse be huncut gyerekzsivaj a magyar tájat.
Megtekintésért várom megtisztelő hívását!
Gergicsné B. Enikő

Gergicsné B. Enikő

Hívjon bizalommal

+36-30-941-Mutasd!

További hirdetéseim

Ingatlaniroda
GDN Ingatlanhálózat - SZIGET
+36 24 656 320