Raktár Kiadó Székesfehérvár - Zsurló utca

Kiadó Székesfehérvár Raktár
3 000 m2Alapterület 0 Szoba
1 560 €(~ 565 578 Ft)
386103Azonosító
További adatok

Új Állapot

Beton Szerkezet

Elektromos Fűtés

Saját beálló Parkolás

Kiváló Tömegközlekedés

2025 Építés éve

English text follows!

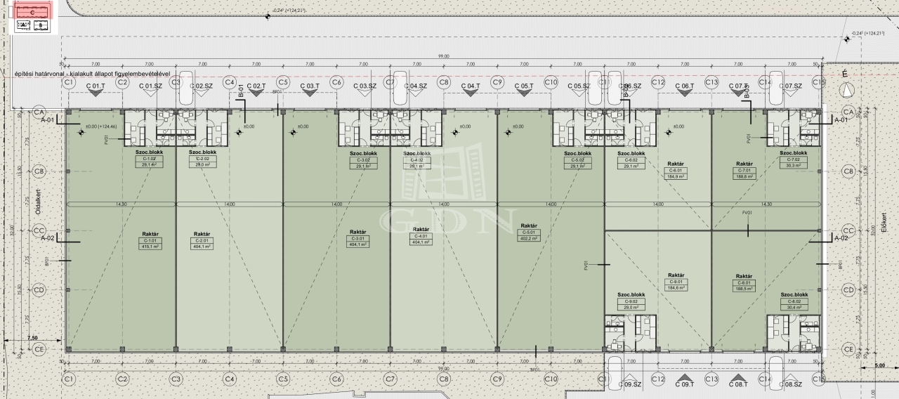
Bip-004547. Alba Ipari Zónában, az M7-es autópálya mellett új építésű, korszerű raktár / gyártócsarnok bérbeadó!

Minden egység önálló közműcsatlakozással rendelkezik; az irodák és szociális helyiségek száma, mérete, illetve elrendezése egyedi igények szerint alakítható.

Az épület korlátozás nélkül, kamionnal, személygépkocsival és helyi tömegközlekedéssel, továbbá kiépített bicikliúton is megközelíthető.

Bérelhető egységek: 400m2-től 3000m2-ig
(az egységek osztásával akár nagyobb / kisebb méretű területek is kialakíthatók)

Jellemzők:
‣ parkolási lehetőség közvetlenül az épület előtt
‣ belmagasság: 6-8m
‣ ipari kapuk mérete: 4,5 x 4,5m
‣ padló teherbírása: 5 t/m2
‣ rezsiköltség saját mérőórák szerint, mért fogyasztás alapján
‣ alacsony üzemeltetési és rezsiköltségek (blokkonként külön mérőórák)
‣ villamos energia: 3 x 32 Amper (bővíthető)
‣ csarnoktér és az irodák fűtése/hűtése is klímákkal megoldott

A mai kor igényeit maradéktalanul kiszolgáló modern ipari csarnok kiválóan alkalmas raktározásra / logisztikai tevékenységre, illetve üzemi / gyártó tevékenységre egyaránt.

Bérleti kondíciók:
csarnok bérleti díj: 3,9 - 4,5 EUR +ÁFA/m2/hó
iroda bérleti díj: 6 EUR +ÁFA/m2/hó
üzemeltetési díj: 1 EUR +ÁFA/m2/hó
kaució: 3 hónapnak megfelelő bérleti díj
(az árak tájékoztató jellegűek, minden esetben egyedi ajánlat készül)



Ha felkeltette érdeklődését, hívja irodánkat bizalommal, éljen ingyenes, személyre szabott hitelügyintézés szolgáltatásunkkal. Segítünk továbbá adásvételhez szükséges ügyvédi közreműködésben, energetikai tanúsítvány, valamint értékbecslés elkészítésében.

For English details please send us a message or an e-mail, thank you.

*

Bip-004547. In the Alba Industrial Zone, next to the M7 motorway – newly built, modern warehouse / production hall for rent!

Each unit has its own utility connections; the number, size, and layout of offices and social areas can be tailored to individual requirements.

The building is accessible without restrictions by truck, passenger car, local public transport,
and via a dedicated bicycle path.

Available units: from 400 m² to 3,000 m²
(by dividing units, larger or smaller areas can also be created)

Features:
‣ Parking available directly in front of the building
‣ Internal height: 6–8 m
‣ Industrial gate size: 4.5 × 4.5 m
‣ Floor load capacity: 5 t/m²
‣ Utility costs based on individual meters and measured consumption
‣ Low operating and utility costs (separate meters for each block)
‣ Power supply: 3 × 32 A (upgradable)
‣ Heating and cooling of both hall and offices via air-conditioning units

A modern industrial hall meeting all current standards, ideal for storage / logistics as well as manufacturing / production activities.

Rental terms:
Warehouse rent: € 3.9 – € 4.5 + VAT/m²/month
Office rent: € 6 + VAT/m²/month
Service charge: € 1 + VAT/m²/month
Deposit: 3 months’ rent
(Prices are indicative; individual quotations are prepared in all cases)
Kémeri-Szekernyés Tímea

Kémeri-Szekernyés Tímea

Hívjon bizalommal

+36-30-248-Mutasd!

További hirdetéseim

Ingatlaniroda
GDN Ingatlanhálózat - SZIGET
+36 24 656 320