Családi ház Eladó Érd - Igényesen átalakított családi ház

Eladó Érd Családi ház
234 m2Alapterület 6 Szoba
215 000 000 Ft Ár
Hitelkalkuláció folyamatban... Loading
387897Azonosító
További adatok

300 m2 Telek

Udvari Kilátás

Felújított Állapot

Tégla Szerkezet

30 m2 Erkély/terasz

Hőszivattyú Fűtés

Dupla komfort Komfort

Saját beálló Parkolás

Kiváló Tömegközlekedés

Amerikai konyhás

Van Kertkapcsolat

1980 Építés éve

Nyugati Tájolás

Eladó egy teljes körűen felújított, tágas családi ház Érd központi részén - azonnal költözhető!

Érd kedvelt, központi részén csendes, kertvárosias utcában eladó egy teljes körűen felújított, kétszintes családi ház, amely modern kialakításával, igényes belső tereivel és gyönyörű, parkosított kertjével ideális választás családok számára.

A ház 2025-ben esett át teljes felújításon, a felső szint és a padlástér újonnan épült.
Az ingatlan a kényelem, a praktikum és a minőségi anyaghasználat tökéletes kombinációját kínálja.

Főbb jellemzők:

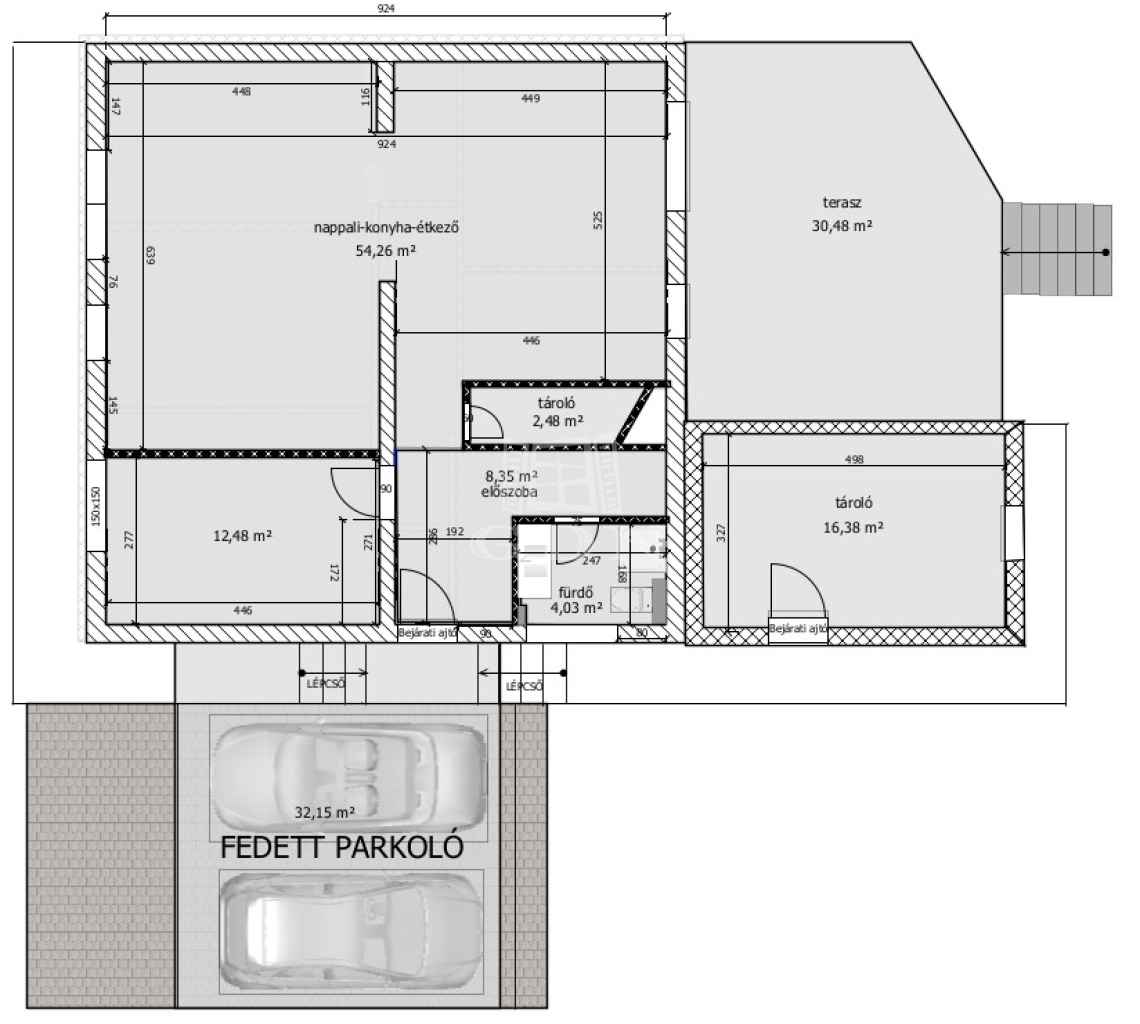
• Lakóterület összesen: 234 m²
• Telekméret: 300 m²
• Hatalmas, fedett kocsibeálló és térkövezett udvar
• Fúrt kút a kert locsolásához
• Hőszivattyús fűtés: lent padlófűtés, fent radiátorok
• Gépi szellőzőrendszer
• Új, 3 rétegű műanyag nyílászárók
• 15 cm hőszigetelés
• Padlástér

Elrendezés:

Földszint:
• Nagy, világos előszoba
• Tágas nappali konyhával és étkezővel
• A nappaliból nyíló hatalmas terasz, amely közvetlen kapcsolatot biztosít a gyönyörűen parkosított kerttel
• Egy különálló szoba, ideális hálónak vagy dolgozószobának
• Zuhanyzós fürdőszoba WC-vel
• Lépcső alatti praktikus tároló

Emelet:
• 4 külön nyíló szoba
• Tágas közlekedő
• Fürdőkádas és zuhanyzós fürdőszoba WC-vel
• Külön WC
• Gépészeti helyiség, amely tárolóként is használható

Különálló épületrész:
A házhoz kapcsolódóan található egy külön bejáratú helyiség, amely lehet szerszámos, tároló, vagy akár egy önálló mini lakrész.

Környék és elhelyezkedés:

Kiváló közlekedés – autóval és tömegközlekedéssel egyaránt könnyen és gyorsan megközelíthető az ingatlan.
• Gyalog pár perc a Stop Shop
• Bolt, iskola, óvoda, bölcsőde a közelben
• Központi, mégis csendes és rendezett környék

Ez az ingatlan tökéletes választás azoknak, akik azonnal költözhető, modern, kényelmes családi házat keresnek Érd központi részén, gyönyörű kerttel és kiváló infrastruktúrával.

Tekintse meg személyesen is ezt a családi házat, hívjon és egyeztessünk időpontot!
Apolzan Magdalena

Apolzan Magdalena

Hívjon bizalommal

+36-70-908-Mutasd!

További hirdetéseim

Ingatlaniroda
GDN Ingatlanhálózat - SZIGET
+36 24 656 320