Családi ház Eladó Budaörs - Könnyedén alakítható otthon

Eladó Budaörs Családi ház
280 m2Alapterület 6 + 1 Szoba
219 000 000 Ft Ár
Hitelkalkuláció folyamatban... Loading
387936Azonosító
További adatok

700 m2 Telek

Udvari Kilátás

Jó állapotú Állapot

Tégla Szerkezet

19 m2 Erkély/terasz

Gáz (cirkó) Fűtés

Dupla komfort Komfort

Saját beálló Parkolás

Tömegközlekedés

Nem Amerikai konyhás

Van Kertkapcsolat

1991 Építés éve

Déli Tájolás

Eladó kényelmes otthon, akár több generáció részére is Budaörs–Kamaraerdőn!

Csodálatos környezet, kristálytiszta levegő, rugalmasan alakítható terek!

Főbb jellemzők:

Többgenerációs, jól variálható családi ház.

Tágas elrendezés, külön bejáratokkal, 2 utcáról megközelíthető.

Ideális nagycsaládosoknak, összeköltözőknek vagy akár vállalkozásra is!

Helyiségek elosztása:

Alsó szint

Az alaprajzon nappaliként jelzett helyiség – kiváló hobby- vagy buli szoba, de akár saját vállalkozás működtetésére is alkalmas.
Egy másik helyiség könnyen 1 vagy 2 állásos garázzsá alakítható, mely jelenleg szobaként funkcionál.
Itt található még egy fürdőszoba, egy konyha, egy tároló és egy szoba.

Első szint:

- nappali + étkező + konyha közvetlen teraszkapcsolattal
- 1 hálószoba
- 1 kádas és 1 zuhanyzós fürdőszoba
- praktikus kamra

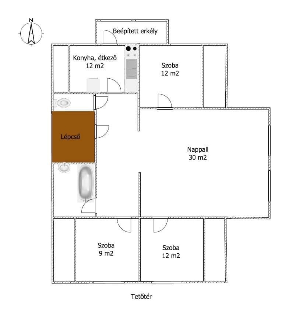
Tetőtér

- nappali
- 3 hálószoba
- étkezős konyha
- hangulatos, beépített terasz
- fürdőszoba és külön WC

A szintek alapterülete egyenként közel 100 nm, mindegyiken található konyha és fürdőszoba is.

Műszaki megoldások:

Fűtés és melegvíz: kombi cirkó kazán
Radiátoros hőleadás
Tetőtérben hűtő-fűtő klímák a maximális kényelemért

A parkosított kertben egy kis fa tároló, beton alapú szaletli és nagy füves terület áll rendelkezésre a szabadidő eltöltéséhez.

Elhelyezkedés és környezet:

Budaörs egyik legszebb részén, a Kamaraerdőben
Csendes, zöldövezeti környezet!

Közelben buszmegálló, óvoda, a budaörsi bevásárlóközpontok, rendelő, M1, M0, M7, könnyű megközelíthetőség két utcáról is.

✨ Ez az ingatlan ideális választás többgenerációs családoknak, vagy azoknak, akik egy otthonban szeretnék kombinálni a lakóteret és a vállalkozásukat.

Az állami támogatások nagy része igénybe vehető, Hitelcentrumunk ingyenesen segít megtalálni a legjobb konstrukciót a vásárláshoz.

Nézzük meg együtt ezt az ingatlant, hogy kiderüljön, Ön hogyan tudja kialakítani családjának új otthonát benne!
Gergicsné Veér Annamária

Gergicsné Veér Annamária

Hívjon bizalommal

+36-20-396-Mutasd!

További hirdetéseim

Ingatlaniroda
GDN Ingatlanhálózat - SZIGET
+36 24 656 320