Családi ház Eladó Úrhida - központhoz közel

Eladó Úrhida Családi ház
170 m2Alapterület 5 Szoba
104 900 000 Ft Ár
Hitelkalkuláció folyamatban... Loading
394643Azonosító
További adatok

1375 m2 Telek

Udvari Kilátás

Jó állapotú Állapot

Tégla Szerkezet

Vegyes tüzelésű kazán Fűtés

Összkomfort Komfort

Saját garázs Parkolás

Tömegközlekedés

Nem Amerikai konyhás

Nincs Kertkapcsolat

1965 Építés éve

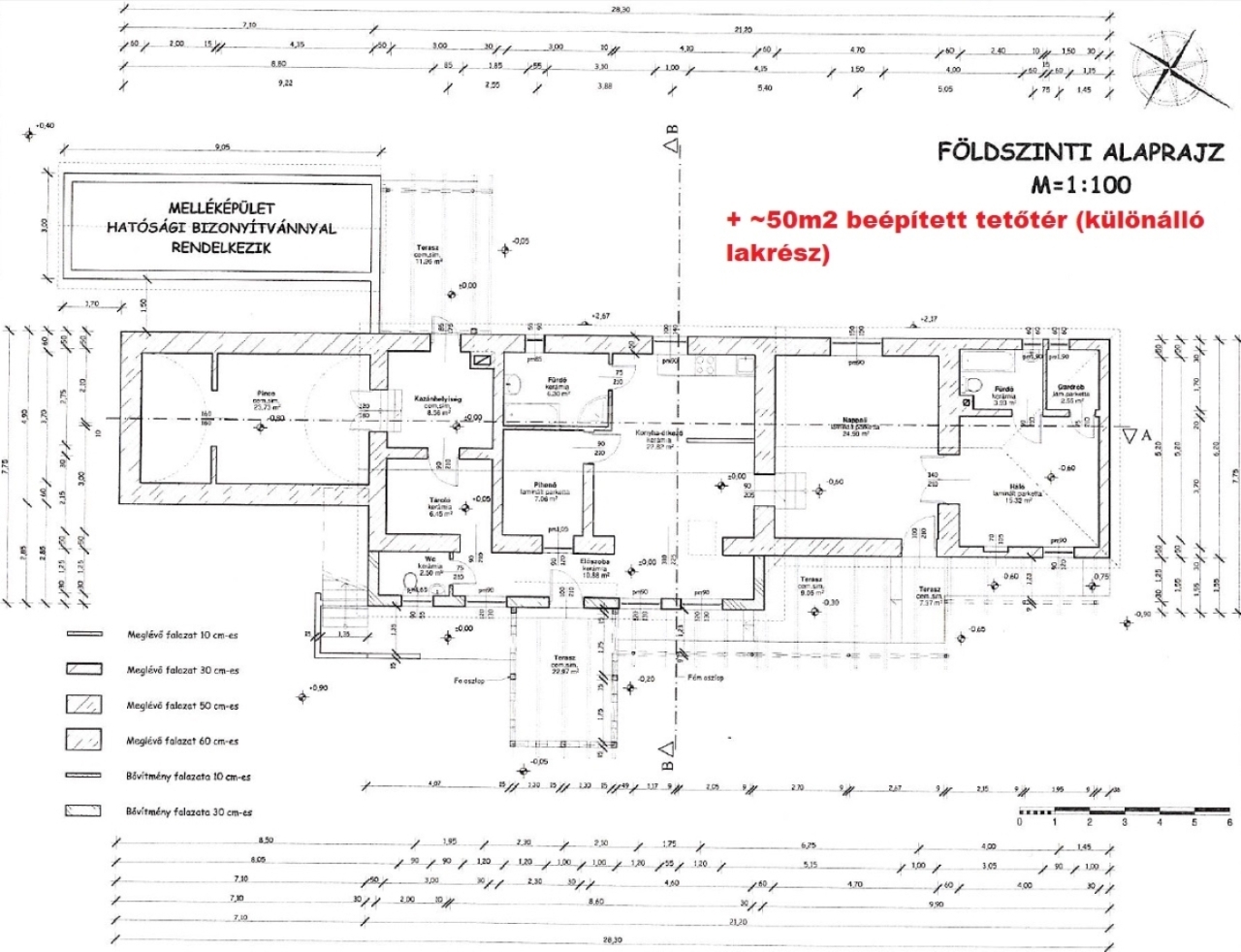
Vh-00. Úrhidán, átmenő forgalomtól mentes utcában kétlakrészes/kétgenerációs, összesen 170m2-es, felújított családi ház 1375m2-es telekterülettel eladó!

A ház két ütemben épült. Utca felöli része az 1960-as években épült kő falazattal, hátsó része pedig a későbbiekben került hozzáépítésre B30-as falazattal, melynek tetőtere nemrégiben beépítésre került, létrehozva ezzel egy különálló lakrészt.

Az épület statikailag, műszakilag jó állapotú, az elmúlt években nyílászárói (redőnnyel és szúnyoghálóval felszereltek), víz- és villanyvezetékei, fűtőtestei, burkolatai cserére kerültek. A homlokzat és födém szigetelése megtörtént.

A ház melegét vegyes tüzelésű kazán biztosítja radiátorokkal, illetve az alsó részen 3db, a tetőtéri részben pedig 1db hűtő-fűtő klíma került felszerelésre kiegészítő fűtésként. A melegvíz ellátást villanybojler szolgáltatja. A villanyhálózat 3 fázisú, illetve H-tarifás óra is bekötésre került. A telken belül található gázcsonk, így igény esetén kialakítható gázkazánnal való fűtés is.

A földszinten (111m2) előszoba, közlekedő, konyha, vendég WC, 3 szoba, gardrób, két fürdőszoba, mosókonyha, kazánhelyiség (külön bejárattal) került kialakításra. A házhoz kapcsolódik egy ~30m2-es, boltíves pince is.

A tetőtéri rész (~50m2) külön bejárattal rendelkezik. Ezen a szinten egy fürdőszoba, WC és egy egy-légterű amerikai konyha nappali található, melyben egy elszeparált haló rész is helyet kapott.

A két lakásnak a közművei nem lettek elkülönítve.

A telek 1375m2, teljesen körbekerített. Található rajta egy 27m2-es melléképület is.

Eladási irányár: 104,9 M Ft

Az ingatlan megvásárlásához a jelenleg elérhető családtámogatási konstrukciók (CSOK, Otthon Start, jelzáloghitel, Babaváró hitel stb.) igénybe vehetők.

Ha felkeltette érdeklődését, hívja irodánkat bizalommal, éljen ingyenes, személyre szabott hitelügyintézés szolgáltatásunkkal. Segítünk továbbá adásvételhez szükséges ügyvédi közreműködésben, energetikai tanúsítvány, valamint értékbecslés elkészítésében.
Gergicsné B. Enikő

Gergicsné B. Enikő

Hívjon bizalommal

+36-30-941-Mutasd!

További hirdetéseim

Ingatlaniroda
GDN Ingatlanhálózat - SZIGET
+36 24 656 320

Visszahívást kérek

Hasonló ingatlanok

Keressen bennünket