Családi ház Eladó Mogyoród - Szadai út

Eladó Mogyoród Családi ház
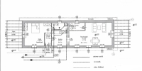
94 m2Alapterület 3 Szoba
89 900 000 Ft Ár
Hitelkalkuláció folyamatban... Loading
392404Azonosító
További adatok

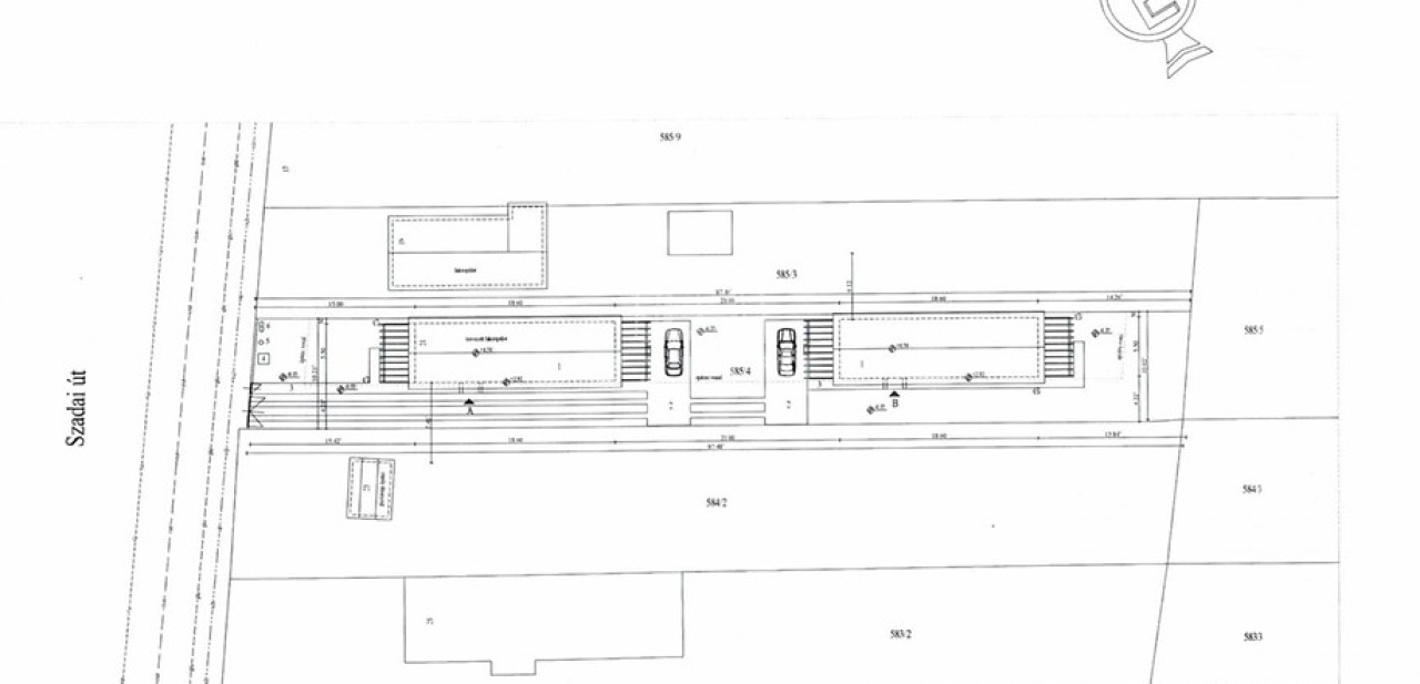
370 m2 Telek

Kertre néző Kilátás

Új Állapot

Tégla Szerkezet

33 m2 Erkély/terasz

Gáz (cirkó) Fűtés

Összkomfort Komfort

Saját beálló Parkolás

Kiváló Tömegközlekedés

Amerikai konyhás

Van Kertkapcsolat

2025 Építés éve

Nyugati Tájolás

KÜLÖNLEGES LEHETŐSÉG MOGYORÓDON ! ! !

ÖNÁLLÓ CSALÁDI HÁZ 2 TERASSZAL ! ! !

78,39 nm (EGY SZINTEN!) + 2(!) x 16,5 nm terasz kb. 370 nm-es telekrész.

A 2 TERASZ KÜLÖNLEGES ÉLETÉRZÉST BIZTOSÍT, HISZEN EGYIK KELETI, MÁSIK NYUGATI FEKVÉSŰ!
A reggeli napsugaraknál kávézhatunk és az esti lenyugvó nap fényénél akár borozhatunk is.

Eredeti tervek szerint is kérhető, de kérhető plusz 1 szobával, tehát 2 vagy 3 szobásként is, vagy beépített tetőtérrel! /Természetesen ez plusz költség/

Alapból fa födém, de kérhető vasbeton födémmel is (plusz költség).

A kivitelező több referánciával is rendelkezik, korábbi munkái, akár félkész, akár kulcsrakész állapotban megtekinthetőek.

KIVÁLÓ LÓKÁCIÓ:
- Autópálya felhajtó pár percre!
- Buszmegálló gyalog pár percre!
- HÉV megálló gyalog pár percre található!

HÍVJON A RÉSZLETEKÉRT, NE MARADJON LE RÓLA!

Tervezett átadás: 2026. december 31.
NEM A KIVITELEZŐTŐL FÜGG, Ő 6 HÓNAP ALATT MEGÉPÍTI!

A napelem illusztráció, feláras.

U.I.: A képek ugyanazon beruházó által készített hasonló ingatlanban készültek! Az alaprajz a valóságnak 100%-ban megfelelő.
Gergicsné Veér Annamária

Gergicsné Veér Annamária

Hívjon bizalommal

+36-20-396-Mutasd!

További hirdetéseim

Ingatlaniroda
GDN Ingatlanhálózat - SZIGET
+36 24 656 320