Üzlethelyiség Eladó Budapest XIV. kerület - Fogarasi út

Eladó Budapest XIV. kerület Üzlethelyiség
41 m2Alapterület 0 Szoba
43 900 000 Ft Ár
353690Azonosító
További adatok

Utcai Kilátás

Felújított Állapot

Tégla Szerkezet

Elektromos Fűtés

Utcán, közterületen Parkolás

Kiváló Tömegközlekedés

1984 Építés éve

Közös költség 10 000 Ft

Déli Tájolás

FELÚJÍTOTT ÜZLETHELYISÉG A HUNGÁRIA KÖRÚT KÖZELÉBEN ELADÓ ÉS KIADÓ!!!

A Hungária körút és a Fogarasi úti Tesco között frekventált részen eladó egy IGÉNYESEN FELÚJÍTOTT, bútorozatlan üzlethelyiség.

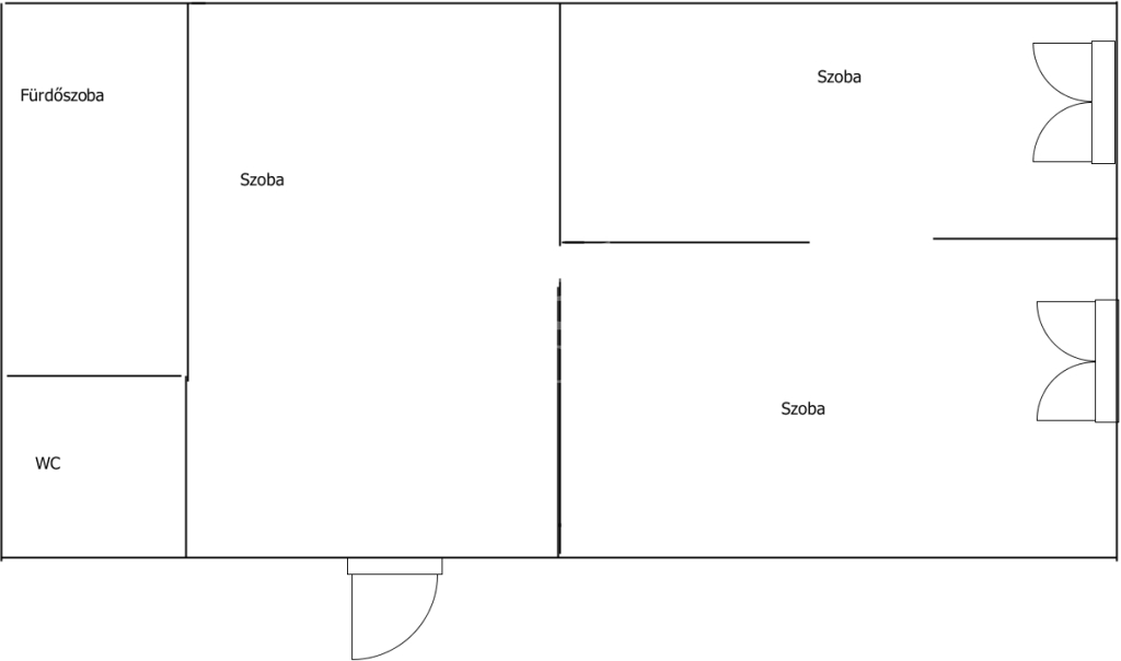
Az üzlethelyiség három egybenyíló helyiségből és egy nagyobb fogadóhelyiségből áll. A válaszfalak bonthatók vagy mozgathatók.
Tartozik hozzá még egy külön beépített zuhanyfülkés fürdőszoba mosdókagylóval és külön WC.
A nagyobb helyiség 24 m2 , a 2 kisebb helyiség pedig 9 és 11 négyzetméteresek.
Belmagassága: 2.9 méter
Fűtése elektromos Ariston kazán.
Fekvése déli.
Parkolás: utcán lehetséges, mely ingyenes.

Alkalmas oktatóteremnek vagy más célokra is 2026.március 1-től pl.kozmetikaszalon, masszázszalon, élelmiszerüzlet, edzőterem,
kutyakozmetika, állatorvosi rendelő, melegkonyha.

Bérleti dija: 350.000 Ft/hó
Kaució: 2 hónap

Lakhatásra is alkalmas, egyszobás lakást értékegyeztetéssel beszámítok.

Azonnal költözhető!

Befektetésre is alkalmas.

Infrastruktúra: közel van a Fogarasi úti Tesco áruház
Közlekedés : 98-as autóbusz, 80-as trolibusz a Népstadion és az Egressy tér felé.

Amennyiben hitelre lenne szüksége szakképzett hitelügytézőink INGYENES szolgátatást nyújtanak.
Ügyvédi hátteret is biztositunk!

Hívjon bizalommal!
Gergicsné B. Enikő

Gergicsné B. Enikő

Hívjon bizalommal

+36-30-941-Mutasd!

További hirdetéseim

Ingatlaniroda
GDN Ingatlanhálózat - SZIGET
+36 24 656 320

Visszahívást kérek

Hasonló ingatlanok

Keressen bennünket