Családi ház Eladó Balatonfüred - Balatonfüred

Eladó Balatonfüred Családi ház
190 m2Alapterület 5 + 1 Szoba
129 000 000 Ft Ár
Hitelkalkuláció folyamatban... Loading
392858Azonosító
További adatok

586 m2 Telek

Kertre néző Kilátás

Jó állapotú Állapot

Tégla Szerkezet

60 m2 Erkély/terasz

Gáz (cirkó) Fűtés

Dupla komfort Komfort

Saját garázs Parkolás

Tömegközlekedés

Nem Amerikai konyhás

Van Kertkapcsolat

1990 Építés éve

Délkeleti Tájolás

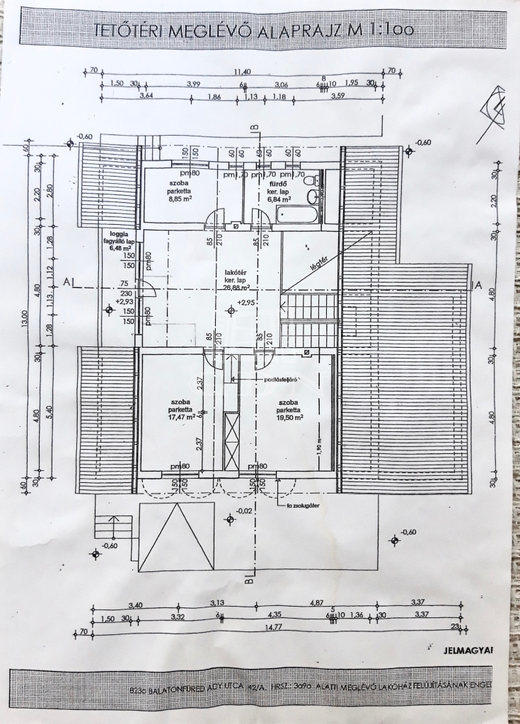
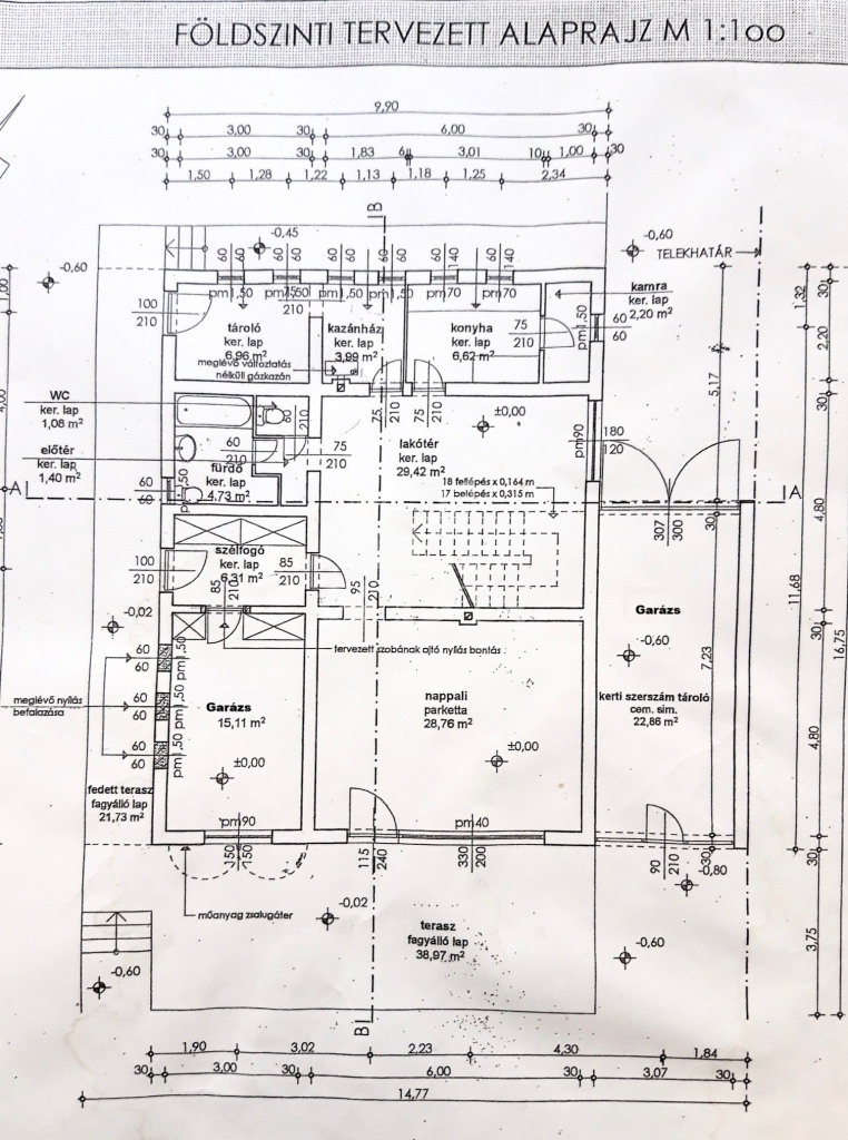
A Balaton északi partjának egyik legszebb városában, Balatonfüreden, kiváló közlekedés és ellátottság mellett, kertvárosi környezetben, 10 perc sétára a vitorlás kikötőtől, és a Tagore sétánytól, 586 m2-es összközműves telken, 1990-ben épült, 190 m2-es lakóterületű, 2 szintes, dupla komfortos, dupla nappalis + 3 hálószobás, a földszinten található nappaliból közvetlen 40 m2 -es teraszkapcsolattal rendelkező, kiváló elosztású, külön nyíló szobás, napos-világos, K-NY-i tájolású, alacsony fenntartású, kombinált gázcirkó és cserépkályha fűtésű, jó állapotú, 2018-ban új thermo ablakokra cserélt, klimatizált, riasztórendszerrel felszerelt családi ház, beépített, gépesített konyhával, nagyméretű tárolóval, garázzsal, úszómedencével, rendezett kerttel, rugalmas költözéssel eladó.

Fekvésének és elhelyezkedésének köszönhetően a környező utcák zaja nem hallatszik, a ház csendes, nyugodt, napfényes!!

A környék infrastruktúrája és közlekedése egyaránt kiváló!
Közelben: Élelmiszer boltok, szolgáltató egységek, Oktatási és egészségügyi intézmények.
Autóbusz megálló a háztól 100 méterre, a vasútállomás gyalogosan kb. 5 percre helyezkedik el.
Esterházy Strand 15-20 perces sétatávolságra.

Ezt a házat érdemes megnézni!
További részletekért és a megtekintéssel kapcsolatosan várom megtisztelő hívását.
(hétvégén is)
EA
Gergicsné B. Enikő

Gergicsné B. Enikő

Hívjon bizalommal

+36-30-941-Mutasd!

További hirdetéseim

Ingatlaniroda
GDN Ingatlanhálózat - SZIGET
+36 24 656 320