Lakás (téglaépítésű) Eladó Kiskunlacháza - Pest megye

Eladó Kiskunlacháza Lakás (téglaépítésű)
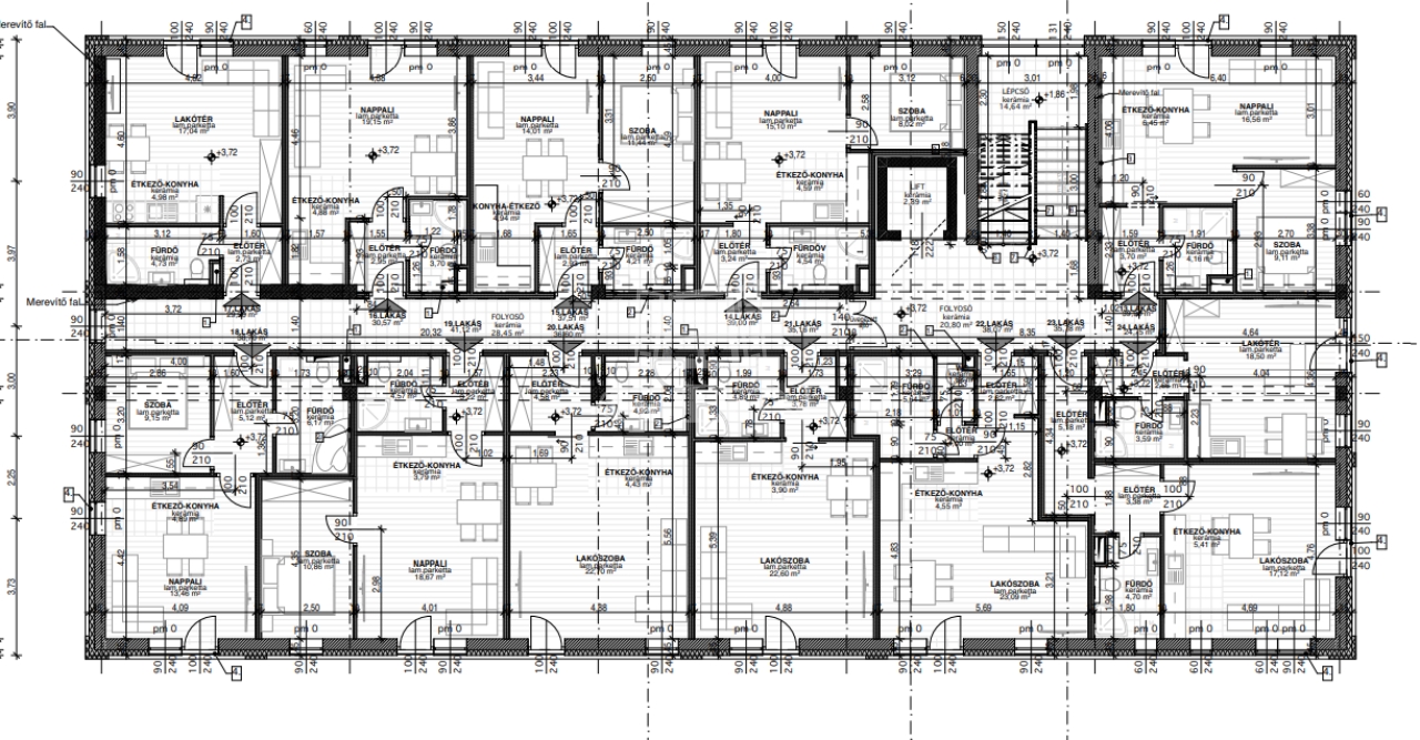
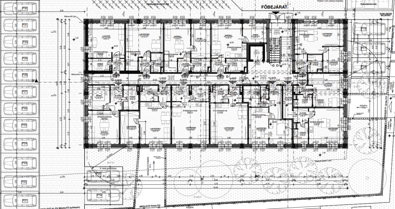
39 m2Alapterület 2 Szoba
42 900 000 Ft Ár
Hitelkalkuláció folyamatban... Loading
379433Azonosító
További adatok

Udvari Kilátás

Új Állapot

Tégla Szerkezet

Hőszivattyú Fűtés

Összkomfort Komfort

Garázs/beálló vásárolható Parkolás

Emelet 1

Van Lift

Közepes Tömegközlekedés

Amerikai konyhás

Nincs Kertkapcsolat

2025 Építés éve

KISKUNLACHÁZA ÚJ ZÖLD OTTHONAI, A+ ENERGIATAKARÉKOS LAKÁSOK 2026 ELSŐ NEGYEDÉVI ÁTADÁSSAL!

Elindult Kiskunlacháza legújabb, A+ energetikai besorolású lakóprojektje!
Egy háromszintes, liftes, modern társas-házban most 31 vadonatúj, energia-hatékony lakás várja első tulajdonosait!
Itt a modern életstílus és a fenntarthatóság találkozik, zöld hitelre és Otthon Start hitelre is megvásárolható!

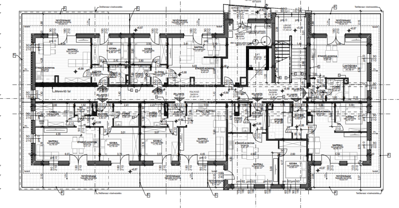
Lakások 28–56 m² között, minden élethelyzetre:
Praktikus garzonok és nappali + 1 vagy 2 szobás elrendezések
Földszinti lakások erkély nélkül.
1. emeleti lakások francia erkéllyel.
2. emeleti lakások tágas teraszokkal – akár 30 m² privát kültérrel!

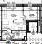
A feltüntetett ár földszint 2-es lakásra vonatkozik, 39 m2 lakótér, helyiségei: amerikai konyhás nappali, szoba, előtér, fürdőszoba.

Átadás: 2026 első negyedév.

Műszaki tartalom, ahol a jövő már ma beköltözött:

-A+ energetikai besorolás
-Hőszivattyús fűtés + padlófűtés minden lakásban
-Fan-coil hűtés, mennyezeti befúvassál
-10 cm Dryvit homlokzati szigetelés
-3 rétegű műanyag nyílászárók redőny előkészítéssel
-Téglafalazat, vasalt beton alap, monolit födém, betoncserép fedés
-Választható hideg/meleg burkolatok (5.000 Ft/m² értékhatárig)

Kényelem és biztonság:

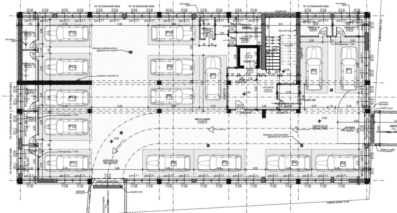
Teremgarázs – 3.500.000 Ft
Felszíni parkolóhely – 1.500.000 Ft
Tárolók különböző méretben elérhetők
Zárt, parkosított udvar, modern liftes épület

Miért ez a projekt?

A+ energetika
Zöld hitelre és Otthon Start hitelre is megvásárolható
Kiváló elhelyezkedés Kiskunlacháza központjában
Budapest csak 28 km
Megbízható, céges kivitelezés
10% foglalóval leköthető

Korszerű, energia-hatékony, jövőbiztos otthonok, most bevezető áron!
Ne maradj le Kiskunlacháza legmodernebb lakóparkjáról, az érdeklődés óriási!

Hívj most, és válaszd ki új otthonod, amíg még van választék!
FINANSZÍROZÁS:
Nálunk mindent egy helyen intézhet:
- hivatalos ingatlanközvetítés;
- szakszerű jogi képviselet;
- profi CSOK-PLUSZ, és hitelügyintézés: 16 Bank, több mint 100 konstrukció;

A részletes adatvédelmi tájékoztató folyamatosan elérhető a gdn-ingatlan adatvedelmi oldalon.
Csík Zsolt

Csík Zsolt

Hívjon bizalommal

+36-30-641-Mutasd!

További hirdetéseim

Ingatlaniroda
GDN Ingatlanhálózat - SZIGET
+36 24 656 320