Ikerház Eladó Kakucs - Központ vonzásában Nappali+3 hálós!

Eladó Kakucs Ikerház
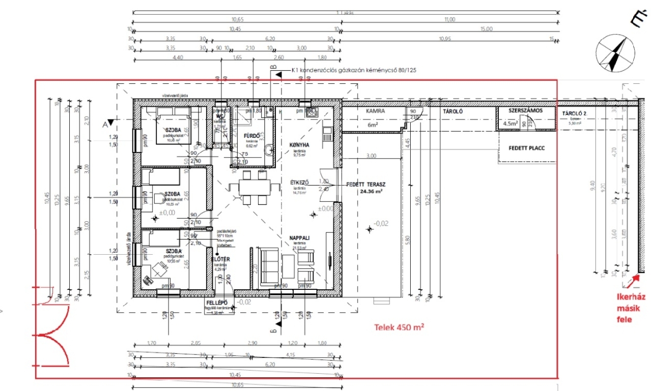
90 m2Alapterület 4 Szoba
95 990 000 Ft Ár
Hitelkalkuláció folyamatban... Loading
393152Azonosító
További adatok

450 m2 Telek

Udvari Kilátás

Újszerű Állapot

Tégla Szerkezet

24 m2 Erkély/terasz

Gáz (cirkó) Fűtés

Összkomfort Komfort

Saját beálló Parkolás

Tömegközlekedés

Amerikai konyhás

Van Kertkapcsolat

2022 Építés éve

Délkeleti Tájolás

Megvételre kínálunk Pest vármegyében, az M5 autópálya vonzásában, Kakucs település jó megközelítésű de mégis nyugodt környezetében, egy nettó 90,31 nm-es, Nappali+ 3 hálószobás ikerházat.
Az ingatlan 450nm-es ideális méretű fenntartható telken 2022-ben épült B30-‎Porotherm téglából,10cm-es homlokzati szigeteléssel, 3 rétegű nyílászárókkal, és minőségi cseréptetővel.
Az épület a hátsó telken lévő szomszédos házzal, egy félig fedett tárolón keresztül (15m-es hosszban) van összekapcsolva és mindkét telekrész külön helyrajzi számon szerepel.

Helyiségek:
➡ Nappali: 21,53 m² | Étkező: 14,76 m² | Konyha: 9,75 m²
➡ 3 különálló hálószoba: egyenként 10,55 m²
➡ Fürdő: 6,62 m² | Előtér: 4,29 m² | WC: 1,71 m²
➡ Kültér: 24,36 m²-es hatalmas UV szűrős polikarbonáttal fedett terasz, 6 m² szigetelt kamra és 4,5 m² szerszámos.

A 450 nm-es telek minden szeglete gondosan tervezett és teljesen kiépített. A kertben magaságyások és üvegház, található.
A 2350 liter vízgyűjtőkapacitás is (az 1000 literes tartály szivattyúval ellátott) A tartályokban felgyülemlett plusz vízmennyiség elvezetése szikkasztó blokkokkal megoldott. A gépkocsik számára egy 48 m²-es murvázott beálló biztosított két kocsi részére.

Hőszigetelés:

-B30-‎Porotherm téglából+10cm-es homlokzati szigetelés,
-10 cm lépésálló lábazati- és 30 cm-es ásványgyapot födémszigetelés,
-Prémium nyílászárók 3 rétegű üvegezéssel ellátott, 6 kamrás profilok a kiváló hang - és hővédelemért,
-Gépészet: Ariston kondenzációs kazán (közös tereken padlófűtés, hálószobákban radiátorok, Wifi-s hővisszanyerős szellőztető rendszer és A++ Fisher hűtő-fűtő klíma,
-A kamrában 3 fázisú elektromos kiállás került kialakításra, lehetőség biztosít napelemes rendszer inverterének fogadására.


A modern otthoni infrastruktúrát erősíti, hogy minden szobában és a nappaliban is Ethernet- és koaxiális csatlakozások állnak rendelkezésre. A biztonságról és a kényelemről Hikvision kamerás kaputelefon,elektromos kapu távnyitással, rádióvezérlésű gépkocsi-kapunyitó rendszerrel, további információért valamint rugalmas megtekintésért hívjon bizalommal a hét minden napján.

INGYENES hitel tanácsadás, CSOK ügyintézés!
BANKFÜGGETLEN hitelcentrumunk minden elérhető bank és hitelintézet ajánlatát versenyezteti az Ön kedvéért, ráadásul DÍJMENTESEN.
Gergicsné Veér Annamária

Gergicsné Veér Annamária

Hívjon bizalommal

+36-20-396-Mutasd!

További hirdetéseim

Ingatlaniroda
GDN Ingatlanhálózat - SZIGET
+36 24 656 320

Visszahívást kérek

Keressen bennünket