Családi ház Eladó Erdőkertes - Szőlősor utca

Eladó Erdőkertes Családi ház
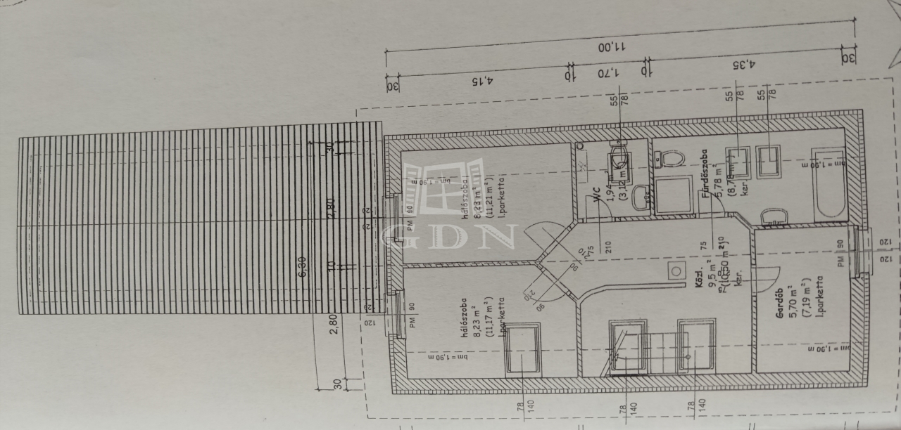
95 m2Alapterület 4 Szoba
107 000 000 Ft Ár
Hitelkalkuláció folyamatban... Loading
393223Azonosító
További adatok

470 m2 Telek

Utcai Kilátás

Újszerű Állapot

Tégla Szerkezet

20 m2 Erkély/terasz

Gáz (cirkó) Fűtés

Dupla komfort Komfort

Saját beálló Parkolás

Kiváló Tömegközlekedés

Nem Amerikai konyhás

Van Kertkapcsolat

2018 Építés éve

Keleti Tájolás

Erdőkertes kedvelt részén, a Szőlősor utcában 2018-ban, 465 nm-es telken épült, újszerű önálló családi ház eladó, szép gondozott kerttel, melléképülettel.

Az ingatlan két szinten 94 nm hasznos lakótérrel rendelkezik, konyha-ebédlő - nappali+ 3 hálószoba elosztású, dupla komfortos.
Kényelmes, világos, gépesített konyhájában öröm a főzés., a hozzá kapcsolódó ebédlőben pedig a nagy családi összejöveteleken is kényelmesen el lehet férni.
Jól átgondolt elosztás, kiváló fényviszonyok, praktikus terek jellemzik az otthont.

A fűtésről korszerű kondenzációs gázkazán gondoskodik padlófűtéssel, plusz minden szinten hűtő-fűtő klíma szolgája a megfelelő hőmérsékletet.
Az épület szigetelt, Ytong téglából épült, kétrétegű műanyag és fa ablakokkal ellátott redőnnyel szerelve. Fedése bramac tetőcserép.

A lakóépülethez kapcsolódik egy kiváló állapotú és esztétikailag is kifogástalan, 40 nm alapterületű, vizes helyiségekkel rendelkező tégla melléképület, amely a későbbiekben akár a lakótér bővítését is lehetővé teszi. Jelenleg tároló-télikertként funkcionál.

A mintegy 50 nm alapterületű hatalmas fedett veranda és kertkapcsolatos terasz teszi teljessé az épületeket, kiváló teret adva a pihenésnek, baráti összejöveteleknek.

Az ásott kúttal is rendelkező, szép gondozott, füvesített kertben dísz-és gyümölcsfák, cserjék, virágok, magaságyások helyezkednek el, lehetővé téve az aktív és passzív pihenést egyaránt, valamint itt lett kialakítva egy medence és nyugágyak felállítására alkalmas szeparált pihenő tér is.

Az ingatlan a település központjához közel helyezkedik el, így pl- az iskola, óvoda, orvosi rendelő, gyógyszertár, boltok könnyedén elérhetőek gyalogosan is.. Budapestre akár autóbusszal, akár vonattal kényelmesen eljuthatunk, mind a vonat, mind a buszmegálló séta távolságra találhatóak.

Kérem hívjon, amennyiben szeretne személyesen meggyőződni jövendő otthona kiváló adottságairól, biztosan nem fog csalódni!

CSOK, OTTHON START felvehető!

ID:393223
Csík Zsolt

Csík Zsolt

Hívjon bizalommal

+36-30-641-Mutasd!

További hirdetéseim

Ingatlaniroda
GDN Ingatlanhálózat - SZIGET
+36 24 656 320

Visszahívást kérek

Keressen bennünket