Lakás (téglaépítésű) Eladó Budapest XXII. kerület - Nagytétény

Eladó Budapest XXII. kerület Lakás (téglaépítésű)
110 m2Alapterület 4 Szoba
138 000 000 Ft Ár
Hitelkalkuláció folyamatban... Loading
393412Azonosító
További adatok

700 m2 Telek

Udvari Kilátás

Új Állapot

Tégla Szerkezet

10 m2 Erkély/terasz

Hőszivattyú Fűtés

Dupla komfort Komfort

Saját garázs Parkolás

Emelet 1

Legfelső emelet

Nincs Lift

Kiváló Tömegközlekedés

Amerikai konyhás

Van Kertkapcsolat

2026 Építés éve

Eladó új építésű otthonok Budapest–Nagytétényben – modern, fiatalos, energiatakarékos!

Ha egy új, kényelmes és modern otthont keresel nyugodt környezetben, akkor ezt érdemes megnézned!
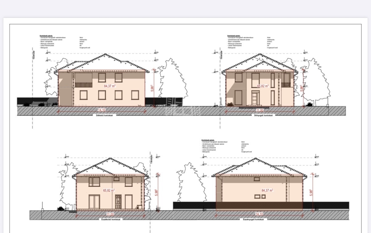
Budapest XXII. kerületének kedvelt részén, Nagytétényben eladó egy új építésű, 2 lakásos társasház mindkét lakása.

Lakások főbb jellemzői
• 110 m²-es lakótér
• kb 350 nm saját telekrész
• amerikai konyhás nappali + 3 külön nyíló hálószoba
• 1 fürdőszoba
• 1 háztartási helyiség
• saját garázs mindkét lakáshoz

⚡ Modern műszaki tartalom
• energiatakarékos hőszivattyús fűtés lakásonként
• padlófűtés minden helyiségben
• klíma minden szobában
• 3 rétegű műanyag nyílászárók
• elektromos redőnyök
• 10 cm külső hőszigetelés

Biztonság és kényelem
• kamera- és riasztórendszer kiállások
• új kerítés
• elektromos kapu

A képek látványterveket tartalmaznak,melyek ötletet adnak a jövőbeni berendezés megvalósításához!

A lakások ideálisak családoknak vagy mindazoknak, akik új, alacsony rezsijű otthont keresnek Budapest zöldebb, nyugodtabb részén, mégis jó közlekedéssel.
A képeken az emeleti lakás látható, ami külön lépcsőházból megközelíthető. A telek két utcára nyílik, így a két lakás és a hozzájuk tartozó telekrész is külön utcáról bejáratos.

Amennyiben a megvásárláshoz hitelre van szükség, bankfüggetlen hitelcentrumunk díjmentesen áll ügyfeleink rendelkezésére.

További információért vagy megtekintésért keress bizalommal!
Gergicsné B. Enikő

Gergicsné B. Enikő

Hívjon bizalommal

+36-30-941-Mutasd!

További hirdetéseim

Ingatlaniroda
GDN Ingatlanhálózat - SZIGET
+36 24 656 320