Lakás (téglaépítésű) Kiadó Budapest XV. kerület - Árvavár utca

Kiadó Budapest XV. kerület Lakás (téglaépítésű)
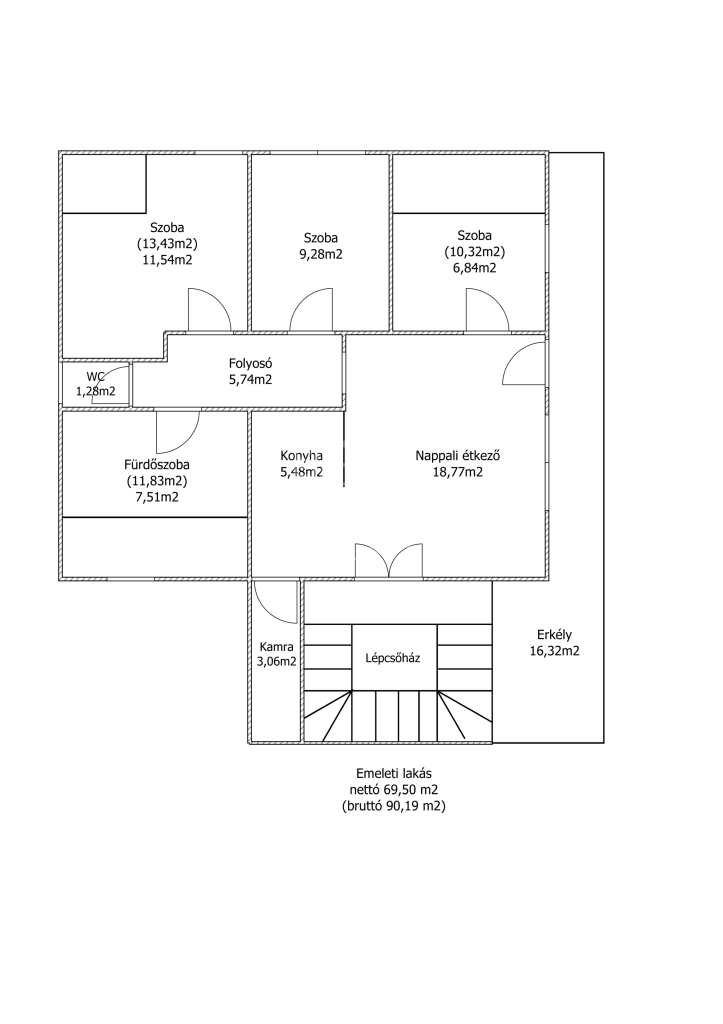
69 m2Alapterület 2 + 2 Szoba
300 000 Ft /Hó Ár
392945Azonosító
További adatok

Udvari Kilátás

Jó állapotú Állapot

Tégla Szerkezet

16 m2 Erkély/terasz

Gáz (cirkó) Fűtés

Összkomfort Komfort

Utcán, közterületen Parkolás

Emelet 1

Legfelső emelet

Nincs Lift

Háziállat Nem

Tömegközlekedés

Amerikai konyhás

Van Kertkapcsolat

Tetőtéri ingatlan

2002 Építés éve

Déli Tájolás

Fedezze fel ezt a jó állapotú, 69 m²-es, téglaépítésű lakást, mely Budapest kertvárosi részén, az Árvavár utcában található.

A lakás egy családi ház első emeletén helyezkedik el, és három különálló szobával rendelkezik, ideális választás lehet akár munkatársak, diákok számára is.
A gázcirkó fűtési rendszer gondoskodik a kellemes melegéről a hideg napokon.
A 15 m²-es erkélyről udvari kilátás nyílik, így nyugodt környezetben élvezheti a szabadban töltött időt.
Az ingatlan kiadó, várja új lakóit, akik értékelni fogják ennek a nyugodt, kertvárosi környezetnek az előnyeit.
Kényelmes otthona lehet annak, aki a városi élet közelében, mégis csendes, nyugodt környezetben szeretne élni. A tulajdonos, lehetőség szerint diákokat vár.

A lakás bérleti díja 300 000 Ft ( rezsivel együtt) 2 havi kaucióval, munkáltatói igazolással, határozatlan idejű munkaszerződéssel, és közjegyzői bérleti szerződéssel. A közjegyző költsége a bérlőt terheli.

Az épület alagsorában található körülbelül 52 m2 alapterületű alakformáló szalon, szoláriummal. Vállalkozás indítása esetén plusz 130.000 forint költségen bérelhető vagy önállóan is bérbe vehető.
Csík Zsolt

Csík Zsolt

Hívjon bizalommal

+36-30-641-Mutasd!

További hirdetéseim

Ingatlaniroda
GDN Ingatlanhálózat - SZIGET
+36 24 656 320

Visszahívást kérek

Keressen bennünket