Ikerház Eladó Budapest X. kerület - Zsombék utca

Eladó Budapest X. kerület Ikerház
171 m2Alapterület 5 Szoba
149 500 000 Ft Ár
Hitelkalkuláció folyamatban... Loading
392852Azonosító
További adatok

526 m2 Telek

Kertre néző Kilátás

Jó állapotú Állapot

Tégla Szerkezet

47 m2 Erkély/terasz

Gáz (héra) Fűtés

Dupla komfort Komfort

Saját garázs Parkolás

Tömegközlekedés

Nem Amerikai konyhás

Van Kertkapcsolat

1982 Építés éve

Megvételre kínálunk, Budapest X. kerületében, Újhegy csendes kertvárosi részében, egy jó elosztású 3 szintes ikerházat.

Az ingatlan a 80-as évek elején, téglából épült, hasznos alapterülete 171 nm, mely tökéletes életteret biztosít, egy nagyobb család, vagy akár két generáció számára is.

Az ingatlanhoz 526nm, saját telekrész tartozik.

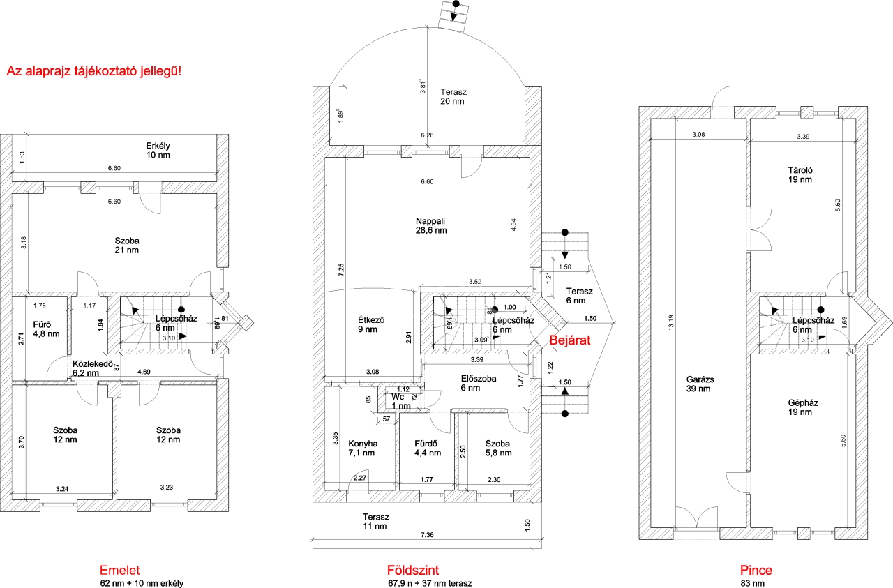
Az ingatlan beosztása:
Földszint -
-előszoba: 6nm,
-lépcsőház: 6nm,
-szoba: 5,8nm,
-fürdő: 4,4nm,
-wc: 1nm,
-konyha: 7,1nm,
-étkező: 9nm,
-nappali: 28,6nm
--------------------------
67,9 nm.
+ fedett terasz: 20 nm,
+ terasz 6 nm,
+ terasz 11 nm.

Emelet:
-lépcsőház: 6nm,
-közlekedő: 6,2nm,
-fürdő: 4,8nm,
-szoba: 12nm,
-szoba: 12nm,
-szoba: 21nm,
-----------------------
62 nm.
+erkély: 10nm,

Pince:
-garázs: 39nm,
-gépház: 19nm,
-tároló: 19nm,
-lépcsőház: 6nm,
---------------------
83 nm.

2015-ben egy nagyobb felújítás történt:
-festés,
-a fenti erkélyek beépítése,
-nyílászárók cseréje, (műanyag, redőnyös, szúnyoghálós)
-a ház külső szigetelést, színezést kapott,
-gázkazán, villanybojler cseréje,
-konyha felújítása.

A hátsó terasz, filagória, tároló, kerítés építése, 8 évvel ezelőtt.
A tárolóban, kézmosó+wc, fali csap került kialakításra.

Az ingatlanban, 3 db hűtő-fűtő klíma működik, melyeket 5 éven belül szereltek fel.

Riasztó rendszer van beépítve.

A fűtés gázkazánról működik, radiátoros hőleadással.

A beltéri ajtók, eredeti fából készültek.

Az ingatlan, saját mérőórákkal rendelkezik.

Az udvar parkosított, amiben 2db 35 éves diófa, és 1db 20 éves kajszi barack fa ad nyáron hűsítő árnyékot, és meghatározza a kert hangulatát.

Közelben iskolák, óvodák, bevásárlóközpont, minden egy helyen!
Kimondottan jó tömegközlekedés!

Amivel segítjük az Ön ingatlanvásárlását:
- ingyenes hitelügyintézés,
- jogi háttér,
- földhivatali ügyintézés,
- energetikai tanúsítvány,
- a vevő számára az ingatlanközvetítés ingyenes.

Irodánk 30 éves szakmai tapasztalattal áll ügyfelei rendelkezésére!

Várom szíves megkeresését!
Köő Zsolt

Köő Zsolt

Hívjon bizalommal

+36-20-234-Mutasd!

További hirdetéseim

Ingatlaniroda
GDN Ingatlanhálózat - SZIGET
+36 24 656 320