Lakás (téglaépítésű) Eladó Budapest VII. kerület - Ligetváros

Eladó Budapest VII. kerület Lakás (téglaépítésű)
61 m2Alapterület 3 Szoba
76 900 000 Ft Ár
Hitelkalkuláció folyamatban... Loading
393309Azonosító
További adatok

Udvari Kilátás

Felújított Állapot

Tégla Szerkezet

Gáz (héra) Fűtés

Összkomfort Komfort

Utcán, közterületen Parkolás

Emelet 2

Van Lift

Kiváló Tömegközlekedés

Amerikai konyhás

Nincs Kertkapcsolat

1950 Építés éve

Közös költség 15 000 Ft

Modern igényesen felújított lakás eladó!

Két lakássá alakított ingatlan " A" jelű lakását kínáljuk megvételre a Damjanich utca kedvelt részén, liftes ház 2. emeletén.

Az ingatlan teljeskörűen felújított, minőségi bútorokkal és gépekkel berendezett, minden részletét gondosan megtervezték.
A lakás világos, tágas érzetet nyújt, minden helyiségén ablak van.
Használati megosztással kerül értékesítésre.

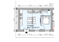
" A"- lakás rendkívül jó beosztású, hasznos alapterülete 61 nm.
- alapterület 38 nm.
- beosztása:
- előtér,
- konyha + étkező + nappali,
- hálószoba,
- fürdőszoba +WC,

- teljesértékű galéria 23 nm.
- beosztása:
- hálószoba,
- gardrób szoba,
Ebben a lakásban a fűtés gáz Mika kazánnal történik +1 db hűtő-fűtő klíma van.
A fűtés, villanybojler, redőnyök, lámpák, mosógép távolról vezérelhető.
A konyhák gépesítettek.
A lakás külön mérőórákkal rendelkezik.

Az ingatlan befektetésnek is kíváló, könnyen kiadható az Állatorvosi Egyetem és a turisztikai látványosságok közelsége miatt.
A környék rendkívül kedvelt, a Városliget, a Hősök tere és az Andrássy út néhány perc sétával elérhető.

Amivel segítjük az Ön ingatlanvásárlását:
- ingyenes hitelügyintézés,
- jogi háttér,
- földhivatali ügyintézés,
- energetikai tanúsítvány,
- a vevő számára az ingatlanközvetítés ingyenes.

Irodánk 30 éves szakmai tapasztalattal áll ügyfelei rendelkezésére!

Várom szíves megkeresését!
Apolzan Magdalena

Apolzan Magdalena

Hívjon bizalommal

+36-70-908-Mutasd!

További hirdetéseim

Ingatlaniroda
GDN Ingatlanhálózat - SZIGET
+36 24 656 320