Családi ház Eladó Bag - Petőfi tér

Eladó Bag Családi ház
122 m2Alapterület 4 Szoba
75 900 000 Ft Ár
Hitelkalkuláció folyamatban... Loading
394961Azonosító
További adatok

680 m2 Telek

Udvari Kilátás

Jó állapotú Állapot

Tégla Szerkezet

14 m2 Erkély/terasz

Gáz (cirkó) Fűtés

Összkomfort Komfort

Saját garázs Parkolás

Kiváló Tömegközlekedés

Amerikai konyhás

Van Kertkapcsolat

1975 Építés éve

Eladásra kínálok Budapesttől 30 perc autóútra, az M3autópálya mentén fekvő Bag település rendezett, központi részén, egy 1970-es években épült, 1990-es évek végén felújított tégla szerkezetű, cserép fedésű családiházat.
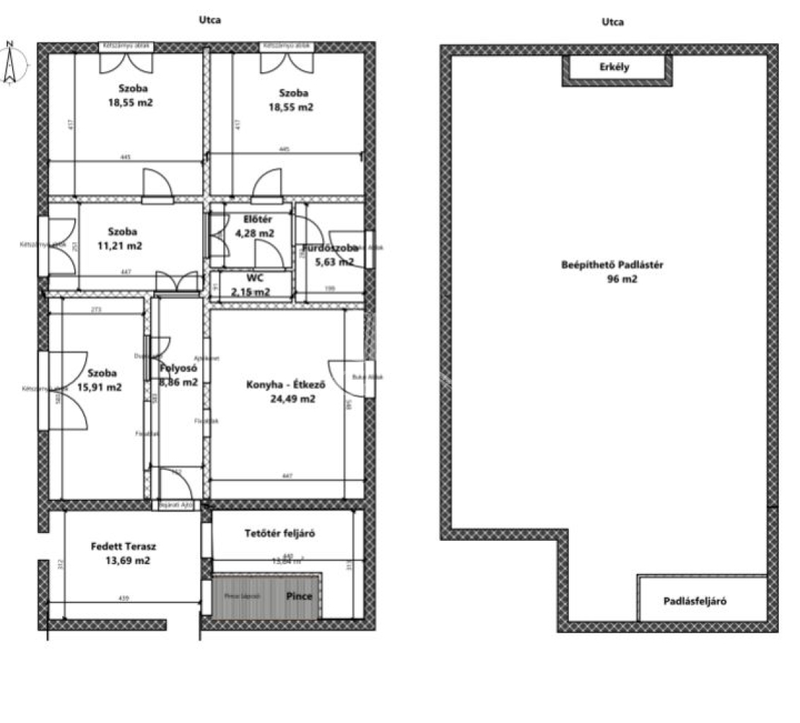
Felosztása:
-pince
-földszint: 25 nm nagyságú konyha, amely kiválóan alkalmas amerikai konyha kialakítására. 4 hálószoba, egy fürdőszoba, különálló wc, és egy előtér. A fedett terasz 14 nm nagyságú.
-tetőtér: beépítetlen, azonban az erkély kialakítva, így a lehetőség adott, hogy további 96 nm nagyságú lakóteret alakítson ki az új tulajdonos!
Különálló garázs az udvarban!
További melléképület, amely nyári konyhaként funkócionál.
Rendezett udvar.
Rövid időn belül költözhető!
Hívjon bizalommal, tekintsük meg együtt!
Apolzan Magdalena

Apolzan Magdalena

Hívjon bizalommal

+36-70-908-Mutasd!

További hirdetéseim

Ingatlaniroda
GDN Ingatlanhálózat - SZIGET
+36 24 656 320

Visszahívást kérek

Hasonló ingatlanok

Keressen bennünket