Family House For sale Üllő - Impozáns luxusház!

For sale Üllő Family House
164 m2Space 4 Rooms
169 900 000 HUF Price
388438ID number
Other data

558 m2 Building lot

Garden view View

Newly built Condition

Brick Structure

22 m2 Balcony/terrace

Gas (circulating) Heating

Double comfort Comfort

Own garage Parking

Excellent Public transport

American kitchen

Exist Access to the garden

2025 Year of construction

Southwest Orientation

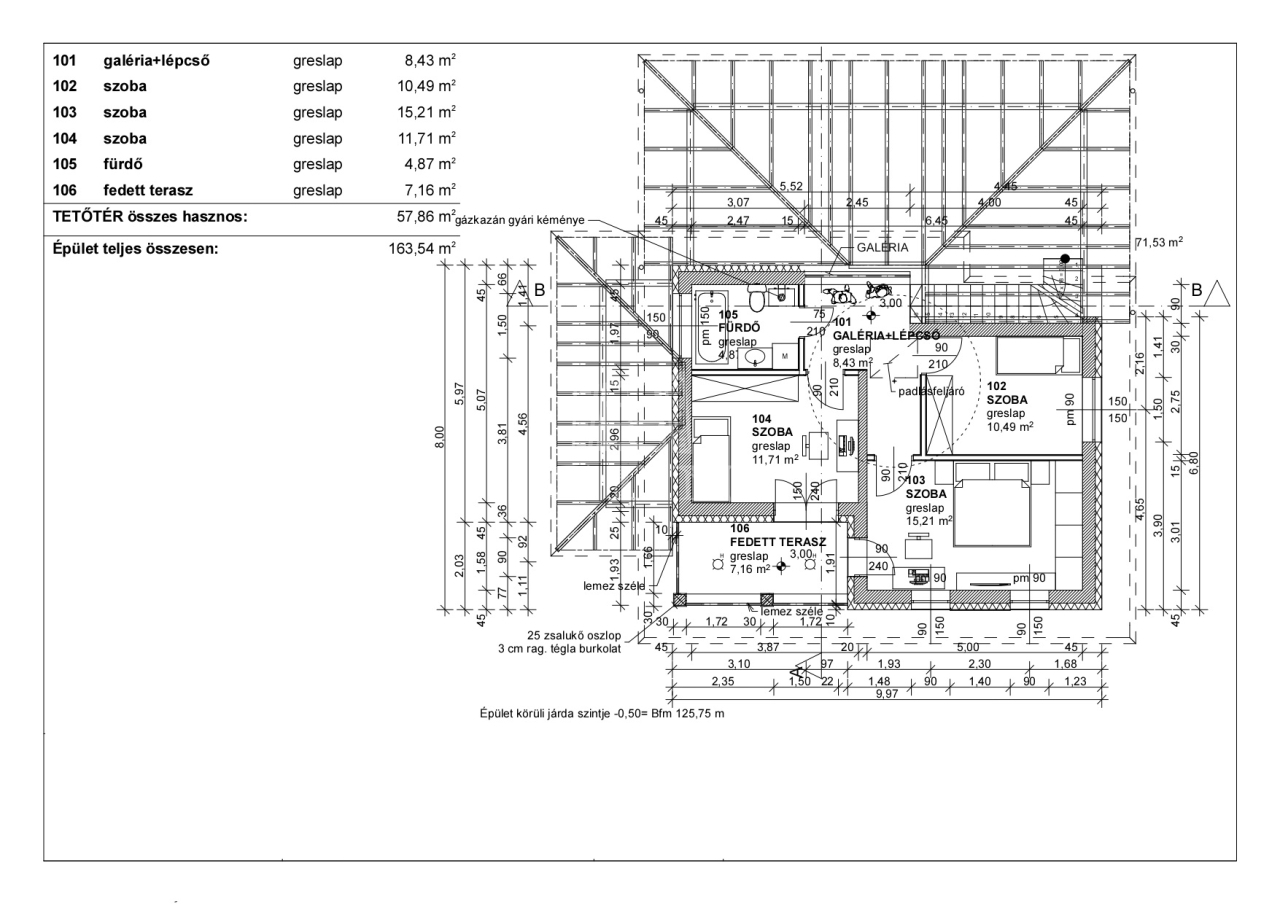
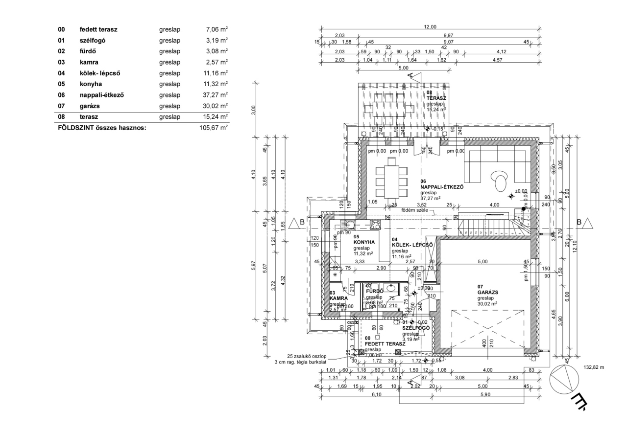
Eladó Üllő csendes kertvárosi részén egy új építésű kétszintes nettó:163,54m2-es 4szobás impozáns családi ház, amely 558m2-es teleken helyezkedik el.

**INGATLAN HELYSZÍNE, LOKÁCIÓ**

Az új építésű családi ház, ideális elhelyezkedésének köszönhetően könnyű hozzáférést biztosít Budapest és környéke felé.
Békés, csendes környezet, amely távol tart a város zajától, miközben minden fontos szolgáltatás közel van.
Közlekedés szempontjából is kiváló döntés, pár perc alatt elérhető az autópálya.
Urbanizációs előnyei közé tartoznak az iskolák, óvodák, bevásárlási lehetőségek és egészségügyi létesítmények közelsége.


**ÉPÜLET JELLEMZŐI KÍVÜLRŐL**

• Falazat: 30 cm-es Porotherm Klíma tégla, 15 cm-es Ytong válaszfalak
• Hőszigetelés: 10–20 cm-es grafitos homlokzati szigetelés, 10 cm zárt és 20 cm nyitott cellás poliuretán hab az aljzatban, szarufák között és a zárófödémen
• Nyílászárók: 82mm-es profilvastagság, 3 rétegű üveg, gázzal töltve, dió RAL színű műanyag ablakok, vele megegyező színű elektromos alumínium redőny + beépített szúnyogháló
• Beltéri ajtók: Síkban záródó, rejtett zsanéros, V gravíros , festett MDF, automata küszöbbel és olasz króm kilinccsel
• Tető: Terrán Coppo Ódon betoncserép, 50 év garanciával
• Külső megjelenés: kovácsoltvas korlátok, úszókapu, szilikonos Revco vékonyvakolat
A kertbe elhelyezésre került egy 6 m²-es hőszigetelt faház elektromos padlófűtéssel, ami kerti tárolóként funkcionálhat.


**AZ INGATLAN JELLEMZŐI BELÜLRŐL**

• Lakótér összesen: 194 m² (garázzsal együtt)
• Garázs: 30 m²-es két autó beállására alkalmas, ipari műgyanta padlóval, padlófűtéssel, elektromos autótöltésre kialakított gyorstöltő kiállással, Hörmann garázskapuval.
• Konyhabútor: AEG, Whirlpool, Electrolux beépített gépekkel, led világítással, tömör fa munkalappal, Blum vasalattal, Blanco gránitmosogató, Blanco csaptelep.
• Fűtés: Kondenzációs gázkazán, padlófűtéssel minden helyiségben, a fürdőszobákban törölközőszárító radiátor
• Hűtés: 2 db Gree Smart One 5 kW-os klíma
• Biztonság: 4K kamera rendszer, riasztórendszer, Hikvision kaputelefon
• Energiaellátás: 3×25 A 380V

**BELSŐ ELRENDEZÉS:**

Alsó szint helyiségei:
• Előszoba
• Fürdőszoba WC-vel
• Kamra
• Amerikai konyhás nappali

Felső szint helyiségei:
• 3 szoba
• Fürdőszoba WC-vel

Amennyiben felkeltette a meghirdetett ingatlan az érdeklődését, keressen bizalommal.

Kihagyhatatlan ajánlatok: CSOK+,OTTHON START, kedvezményes kamatozású lakáshitelek.
Az ország szinte összes bankjának a hiteleit is kínáljuk, egyedi, általunk igénybe vehető kedvezményekkel, díjmentes ügyintézéssel.
Gergicsné B. Enikő

Gergicsné B. Enikő
Advertiser

Call me with confidence

+36-30-941-Show!

Other listings

Real Estate Agency
GDN Real Estate Network - SZIGET
+36 24 656 320

Call me back