Flat (brick) For sale Székesfehérvár - Munkácsy Mihály utca

For sale Székesfehérvár Flat (brick)
59 m2Space 2 Rooms
49 900 000 HUF Price
390082ID number
Other data

Street View

To be renovated Condition

Brick Structure

4 m2 Balcony/terrace

Gas (convector) Heating

Full comfort Comfort

At community areas Parking

Floor 4

Top floor

No exist Elevator

Excellent Public transport

No American kitchen

No exist Access to the garden

1980 Year of construction

Southwest Orientation

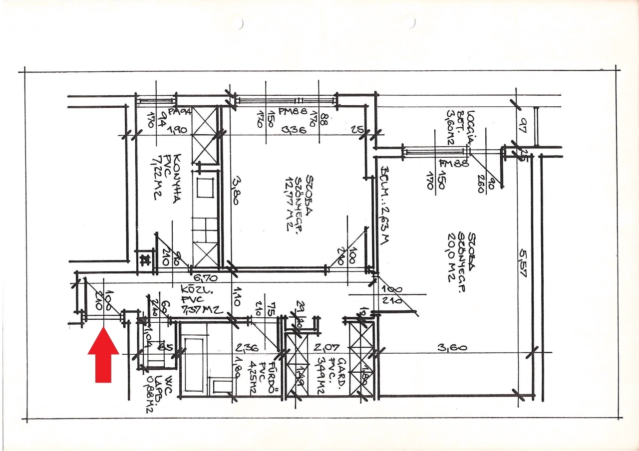
L-004671. Munkácsy Mihály utcában, a belváros szélén frekventált, csendes zöldövezetben, közkedvelt helyen, 4 emeletes épületben 4. emeleti 59 nm-es, erkélyes, tégla – gázkonvektor fűtéses, felújítandó lakás eladó.

A lakás 2 szobás, a fürdő és a wc külön helységben található. A lépcsőház kívülről szigetelt, ablakai újak műanyag hőszigeteltek. A pinceszinten közös tárolók találhatók szintenként, ahol minden lakás használhatja a rá eső területet.

A falak tapétásak és festettek, szobák és a közlekedő burkolata szőnyegpadló, a fürdő, wc, konyha járólappal burkolt. Parkolás az épület körül fizetős övezetben megoldható.

Az közelben zöldövezeti park, iskola, óvoda, gyógyszertár, több bolt és hipermarket található. A lakás a szerződéskötést követően birtokba vehető, akár kiadható.

Az ingatlan elhelyezkedése, remek elosztása, valamint, a környék infrastruktúrája miatt befektetésnek is kiváló.

Jelenleg, megbízható bérlő lakja a lakást több éve, aki szívesen szerződne az új tulajdonossal amennyiben befektetési célú a vásárlás.

Energetikai besorolása: "D"

Eladási irányár: 49,9 M Ft

Ha felkeltette érdeklődését, hívja irodánkat bizalommal, éljen ingyenes, személyre szabott hitelügyintézés szolgáltatásunkkal. Segítünk továbbá adásvételhez szükséges ügyvédi közreműködésben, energetikai tanúsítvány, valamint értékbecslés elkészítésében.

For English details please send us a message or an e-mail, thank you
Gergicsné Veér Annamária

Gergicsné Veér Annamária
Advertiser

Call me with confidence

+36-20-396-Show!

Other listings

Real Estate Agency
GDN Real Estate Network - SZIGET
+36 24 656 320