Semidetached house For sale Monor - Monor Manófalva Bölcsőde közelében

For sale Monor Semidetached house
80 m2Space 4 Rooms
89 900 000 HUF Price
384622ID number
Other data

300 m2 Building lot

Garden view View

Newly built Condition

Brick Structure

4 m2 Balcony/terrace

Heat pump Heating

Full comfort Comfort

Self-parking Parking

Medium Public transport

American kitchen

Exist Access to the garden

2025 Year of construction

West Orientation

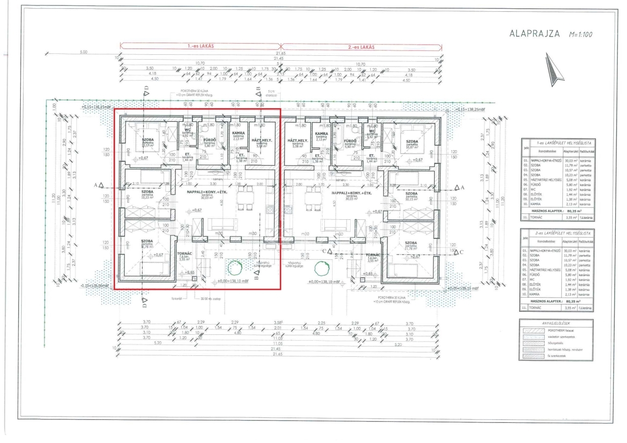
MONOR KERTVÁROSI RÉSZÉN ÚJ ÉPÍTÉSŰ IKERHÁZ FÉL ELADÓ!!!

Monor csendes, kertvárosias részén, cca. 300 nm-es telek területtel, Új építésű, 80 nm-es, 4 szobás (nappali + 3 hálószoba), egy szintes, hőszivattyús fűtéssel, Nyugati fekvésű, műanyag (3 rétegű) nyílászárós, szigetelt, fafödémes, új építésű ikerház fél eladó.

Az ingatlan 30 cm-es Porotherm X-therm okos téglából épül, 10 cm-es grafitos szigeteléssel, fa födémmel, beton cserép fedéssel.


Az ingatlan kulcsrakész állapotban kerül átadásra, riasztó előkészítéssel, szaniterekkel, burkolatokkal, rendezett kerttel, új kerítéssel, tér burkolt járdával. A belső ajtókat, szanitereket és a burkolatokat a belső műszaki tartalomban megjelölt összegig a vevő a saját igénye szerint választhatja.
A nyílászárók hőszigetelt 3 rétegű üvegezésűek, igény esetén elektromos rejtett redőnnyel, zsalúziával, rovarhálóval.

300 nm-es telek terület és a földszinti tornác lehetőséget nyújt a pihenésre, kikapcsolódásra.


Iskola, óvoda, bölcsöde, posta, orvosi rendelő, bevásárlási lehetőség, patika séta távolságra, az M4-es, M0-ás, személy gépkocsival viszonylag gyorsan elérhető.


CSOK PLUSSZ, 5%-OS ÁFA IGÉNYELHETŐ!!!

Átadás: 1 éven belül, 2026. február végén.

Építés éve: 2025
Méret: 80 nm
Falazat: Porotherm 30 cm X-therm okos tégla
Szigetelés: 10 cm grafitos
Nyílászárók: Műanyag 3 rétegű üvegezéssel, redőny, zsalúzia előkészítéssel (igény esetén elektromos redőnnyel, zsalúziával és szúnyoghálóval)
Födém: fafödém
Fűtés: hőszivattyús fűtéssel
Állapot: új építésű
Parkolás: saját felszíni beálló, elektromos kapu előkészítés.

Érdemes megnézni, bővebb információért hívjon bizalommal akár hétvégén is!
L.D

INGYENES hitel tanácsadás, CSOK Plusz, OTTHON START ügyintézés!
BANKFÜGGETLEN hitelcentrumunk az összes elérhető bank és hitelintézet ajánlatát versenyezteti az Ön kedvéért, ráadásul DÍJMENTESEN.

- Egyedi, bankfiókban nem elérhető kamat- és díjkedvezmények
- Hitelképesség vizsgálat
- Idő, energia és pénz megtakarítás
- Teljes hivatali ügyintézés
Köő Zsolt

Köő Zsolt
Advertiser

Call me with confidence

+36-20-234-Show!

Other listings

Real Estate Agency
GDN Real Estate Network - SZIGET
+36 24 656 320

Call me back

Similar properties