Flat (brick) For sale Kiskunlacháza - Dunapart

For sale Kiskunlacháza Flat (brick)
77 m2Space 2 Rooms
72 040 000 HUF Price
391715ID number
Other data

5820 m2 Building lot

Panoramic View

Newly built Condition

Brick Structure

24 m2 Balcony/terrace

Renewable energy Heating

Full comfort Comfort

Self-parking Parking

Floor Ground floor

Exist Elevator

Weak Public transport

American kitchen

Exist Access to the garden

2025 Year of construction

Csodálatos panoráma!

Kiskunlacháza Duna-partján épülő 19 lakásos társasházban kínálunk megvételre 7 db földszinti, nagy (19 nm- 36 nm) teraszos, örökpanorámás lakást.
Az ingatlanban 19 db lakás épül.

A 100.000.000 Ft-ot meg nem haladó lakások 3%-os Otthon Start hitellel is megvásárolható!

-Minden lakáshoz 1 db autóbeálló tartozik,
-Elektromos autótöltési lehetőség,
-A házban lift működik,
-Közösségi stég, parkosított udvar, játszótér, közös grillezőhely épül,
-Saját mérőórák hideg víz, melegvíz, elektromos áramra,
-Hőmennyiség mérő hűtés-fűtésre,

Műszaki adatok.

-Az épület 1974-ben épült, vasbeton alapú, tégla főfallal, ennek
továbbépítése 2024- ben indult, a 2. emelet teljesen új,
-16 cm külső szigetelés,
-Geotermikus, talajszondás fűtés-hűtés (mennyezet és aljzat),
-Hővisszanyerős légtechnika- alacsony rezsi,
-Vasbeton alap, kisméretű tégla tartófalak,
-Beltéri falak: Silka, lakáson belül Ytong,
-3 rétegű szinezett műanyag nyílászárók elektromos redőnnyel,

FÖLDSZINT

1.LAKÁS: 64,56 m² lakótér + 24,48 m² terasz — 71.016.000 Ft

2.LAKÁS: 65,08 m² lakótér + 24,48 m² terasz — 71.590.000 Ft

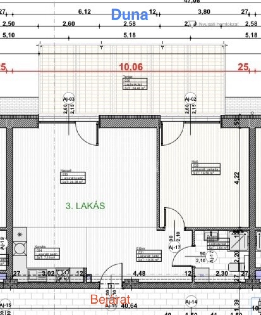
3.LAKÁS: 65,49 m² lakótér + 24,48 m² terasz — 72.040.000 Ft

4.LAKÁS: 94,73 m² lakótér + 36,08 m² terasz — 104.203.000 Ft

5.LAKÁS: 48,09 m² lakótér + 19,28 m² terasz — 49.540.000 Ft

6.LAKÁS: 51,01 m² lakótér + 19,28 m² terasz — 53.600.000 Ft

7.LAKÁS: 51,17 m² lakótér + 19,28 m² terasz — 53.600.000 Ft


Az ingatlan további lakásai további hirdetéseinkben megtalálhatóak.

A lakások átadása: 2026. I. negyedév végéig a használatbavételi engedélyt megkéri a kivitelező.

Amivel segítjük az Ön ingatlanvásárlását:
- ingyenes hitelügyintézés,
- jogi háttér,
- földhivatali ügyintézés,
- energetikai tanúsítvány,
- a vevő számára az ingatlanközvetítés ingyenes.

Irodánk 30 éves szakmai tapasztalattal áll ügyfelei rendelkezésére!

Várom szíves megkeresését!
Köő Zsolt

Köő Zsolt
Advertiser

Call me with confidence

+36-20-234-Show!

Other listings

Real Estate Agency
GDN Real Estate Network - SZIGET
+36 24 656 320