Family House For sale Gyöngyöshalász - Toldi utca

For sale Gyöngyöshalász Family House
122 m2Space 5 Rooms
73 990 000 HUF Price
388603ID number
Other data

800 m2 Building lot

Garden view View

Newly built Condition

Brick Structure

11 m2 Balcony/terrace

Heat pump Heating

Full comfort Comfort

Self-parking Parking

Good Public transport

American kitchen

Exist Access to the garden

2025 Year of construction

Southwest Orientation

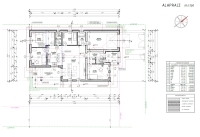
Gyöngyöshalászon a Toldi utcával párhuzamos frissen parcellázott területen , 800 m2-es telken, újonnan épülő nettó 100,79 m2 hasznos lakótérrel és 21 m2-es garázzsal rendelkező, 3 szoba + nappalis önálló családi ház eladó.

Csok plusz, Otthon Start elérhető!

Az ingatlan 30-as Nútféderes tégla falazóelemből épül, fa födémmel.
A tető héjazata antracit betoncserép lesz, a homlokzatok 15cm EPS, a padló 10cm Austrotherm AT-N100-as, a vízszintes födém 25cm Ásványgyapot szigeteléssel lesz ellátva.

Hat légkamrás 3 rétegű evegekkel szerelt nyílászárók kerülnek beépítésre.

A fűtést 10kw-os monoblockos hőszivattyús rendszer fogja ellátni, padlófűtéssel.


A műszaki tartalom választható az alábbi költségkereten belül:

-hidegburkolat:3000.- Ft./m2-ig.
-melegburkolat:3000.- Ft./m2-ig
-csaptelepek:15.000.- Ft./db
-kád vagy zuhany: 40.000.- Ft.
-beltéri ajtók:35.000.- Ft./db

Elektromos kiépítés:
-Konnektorok szobákban: 3 db
-Konnektorok nappaliban 4db + internet és kábeltv kiállás
-Konnektorok konyhában: 6db
-Világítás helyiségenként 1-1 db
-Kábeltévé: Előkészítés


Magasabb árú tatalom is választható a különbség finanszírozásával.

Riasztó előkészítés és kapu mozgató elektronika előkészítés is készül.

Kérésre szívesen küldünk komplett tervdokumentációt, műszaki leírást.


A kivitelező korábban Gyöngyöshalászon számos ingatlant épített,a már értékesített és birtokbaadott ingatlanokat komoly érdeklődés esetén szívesen megmutatjuk referenciaként.


Várható átadás 2026 második negyedév!

INGYENES hitel tanácsadás, CSOK Plusz ügyintézés!
BANKFÜGGETLEN hitelcentrumunk az összes elérhető bank és hitelintézet ajánlatát versenyezteti az Ön kedvéért, ráadásul DÍJMENTESEN.

- Egyedi, bankfiókban nem elérhető kamat- és díjkedvezmények
- Hitelképesség vizsgálat
- Idő, energia és pénz megtakarítás
- Teljes hivatali ügyintézés

Amennyiben hirdetésem felkeltette az érdeklődését vagy egyéb információra van szüksége hívjon bizalommal!
Apolzan Magdalena

Apolzan Magdalena
Advertiser

Call me with confidence

+36-70-908-Show!

Other listings

Real Estate Agency
GDN Real Estate Network - SZIGET
+36 24 656 320