Family House For sale Csopak - Vincellér u. 2.

For sale Csopak Family House
240 m2Space 5 Rooms
109 000 000 HUF Price
391839ID number
Other data

1207 m2 Building lot

Panoramic View

To be renovated Condition

Brick Structure

20 m2 Balcony/terrace

Other Heating

Comfort Comfort

Own garage Parking

Good Public transport

No American kitchen

Exist Access to the garden

1985 Year of construction

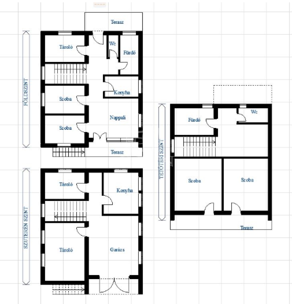
Csopak egyik csendes, nyugodt utcájában egy 1207 m2-es telken lévő BALATONI PANORÁMÁS, 240 m2- es házat kínálom megvételre, a GDN Ingatlanhálózat kínálatából!

- A tágas, világos elrendezésű otthon 5 szobát, 2 konyhát, valamint 2 fürdőszobát WC-vel foglal magában.

- Tárolók is találhatóak az épületben, mely akár irodának vagy szobának is kialakíthatók, így akár 2 különálló generációnak is alkalmas lehet az ingatlan.

- A ház alatt található egy szuterén rész, garázzsal, konyhával és tárolóhelyiséggel, amely tökéletes hobbihelyiségnek, vagy akár kisebb vállalkozás kialakításának.

- A ház fa nyílászárókat kapott, a tető héjazata pala.

- Az ingatlannak 3 kisebb terasza, erkélye van.

- Ugyan a tetőtérbe jutáshoz a lépcső feljáró nincs teljesen befejezve, de megoldható a megtekintés alkalmával.

- Mind a 3 szintről a balatoni panoráma látható, illetve Csopak város szépsége és dombja is.

- A kert fákkal és bokrokkal teli, kisebb tereprendezést igényel ugyan, de nagyon romantikus a hangulata és a 2 különböző panoráma, a kertből, csodálatos élményt nyújt.

- A ház jó állapotú, víz és villany közművel rendelkezik, de hosszabb távon igény szerint - felújítható, így új tulajdonosa a saját ízlése szerint alakíthatja, bővítheti tovább.

- Értéknövelő előnyök:
Pince + szuterén + tetőtér = rengeteg lehetőséget jelent!

Ez az ingatlan ideális választás lehet otthonnak, nyaralónak vagy akár befektetésnek is Csopak egyik legcsendesebb részén.

Ne hagyja ki ezt a remek lehetőséget!

Amennyiben a veszprémi GDN Ingatlaniroda által kínált rengeteg lehetőséget rejtő családi ház, vagy bármely, a kínálatunkban található ingatlan felkeltette érdeklődését, forduljon hozzám bizalommal!

Ingatlanirodánk díjmentes, banksemleges hitelügyintézéssel, illetve ügyvédi tanácsadással is áll Ügyfeleink rendelkezésére!
Kémeri-Szekernyés Tímea

Kémeri-Szekernyés Tímea
Advertiser

Call me with confidence

+36-30-248-Show!

Other listings

Real Estate Agency
GDN Real Estate Network - SZIGET
+36 24 656 320

Call me back