Family House For sale Budapest XXII. district - FELÚJÍTOTT CSALÁDI HÁZ BUDAFOKON!

For sale Budapest XXII. kerület Family House
214 m2Space 5 Rooms
149 000 000 HUF Price
390458ID number
Other data

647 m2 Building lot

Garden view View

Reconditioned Condition

Mixed structure walls Structure

Heat pump Heating

Double comfort Comfort

Self-parking Parking

Good Public transport

No American kitchen

Exist Access to the garden

1968 Year of construction

CSAK AZ IRODÁNK KÍNÁLATÁBAN!

XXII. kerületben, Budafokon kínálunk eladásra egy FELÚJÍTÁS ALATT ÁLLÓ, nagy nappali + 4 szobás, 2 fürdőszobás, étkező-konyhás 214 m²-es lakóterű magasföldszinti CSALÁDI HÁZAT, melynek az alsó szintje plusz 110 m2, amely egy 647 m²-es telken helyezkedik el.

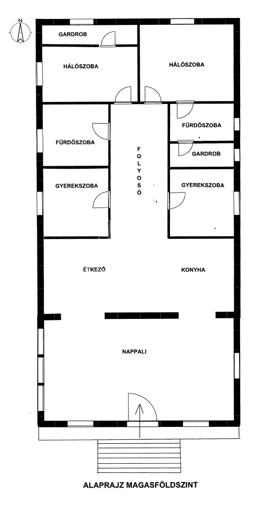
A házba belépve egy tágas nappaliba érkezünk, innen tovább haladva található egy étkezős - konyha, beépített modern konyhabútorral.
Széles folyosóról nyílnak a gyerek szobák, a nagy kádas fürdőszoba, és két nagy méretű hálószoba saját gardrób helyiségekkel.

Az egyik hálószobához tartozik még egy zuhanyozós fürdőszoba WC-vel és egy gardrob szoba.
A másik hálószobához is tartozik külön gardrob szoba.

A ház alatti alsó szint 110 m2, ahol beépített konyha, kamra, kis szoba, zuhanyzós fürdőszoba WC-vel is kialakításra került, plusz egyéb tárolásra alkalmas terület is maradt.

LÁSD AZ ALSÓ SZINT ALAPRAJZÁT !

A ház ideális nagycsaládosoknak, de két generációnak is kényelmes tereket biztosít, a 214 m²-es lakótér, és az alsó szint helyiségei.

LÁSD A LAKÓTÉR /magasföldszint/ HELYISÉGEINEK ELRENDEZÉSÉT AZ ALAPRAJZON !

MŰSZAKI JELLEMZŐK:
- Az épület az 1960-1970-es években épült vegyes falazattal.
- 2024-2025-ben teljes körű felújításon esett át.
- ennek részeként megtörtént a tetőcsere, vasbeton födém került kialakításra
- a teljes gépészet és fűtésrendszer megújult
- a nyílászárók cseréje is megtörtént, háromrétegű, hő- és hangszigetelő műanyag ablakok, új bejárati ajtó került beépítésre
- a ház külső falaira 15 cm-es dryvit hőszigetelés került
- a fűtés hőszivattyúval történik, minden helyiségben padlófűtéssel.

PARKOLÁS:
A kertben több autó számára térkövezett felszíni beálló biztosított.

EXTRÁK:
A házban 5 db hűtő-fűtő klíma található.

KÖRNYEZET:
Az ingatlan csendes, kertvárosias környezetben található, kiváló tömegközlekedéssel és közeli bevásárlási lehetőségekkel (ALDI, Campona, Tesco).
A közelben óvoda, két tannyelvű iskola és gimnázium is működik..
Autóbusszal 15–20 perc alatt elérhető a 4-es metró kelenföldi végállomása. Budapest belvárosa pedig sétatávolságban lévő buszjáratokkal fél óra alatt megközelíthető.

Az ingatlan ELŐRE EGYEZTETETT IDŐPONTBAN tekinthető meg – akár hétvégén is.

KÉSZPÉNZES ÉRDEKLŐDŐK JELENTKEZÉSÉT VÁROM !

FORDULJON HOZZÁM BIZALOMMAL, VÁROM HÍVÁSÁT, ÉRDEKLŐDÉSÉT!
(G.I.)
Apolzan Magdalena

Apolzan Magdalena
Advertiser

Call me with confidence

+36-70-908-Show!

Other listings

Real Estate Agency
GDN Real Estate Network - SZIGET
+36 24 656 320