Flat (brick) For sale Budapest VIII. district - Német utca

For sale Budapest VIII. kerület Flat (brick)
40 m2Space 3 Rooms
59 990 000 HUF Price
391295ID number
Other data

Courtyard View

Reconditioned Condition

Brick Structure

Electric Heating

Double comfort Comfort

At community areas Parking

Floor Ground floor

No exist Elevator

Excellent Public transport

American kitchen

No exist Access to the garden

1915 Year of construction

East Orientation

Eladó 2 felújított, kulcsrakész lakás a Horváth Mihály térnél!

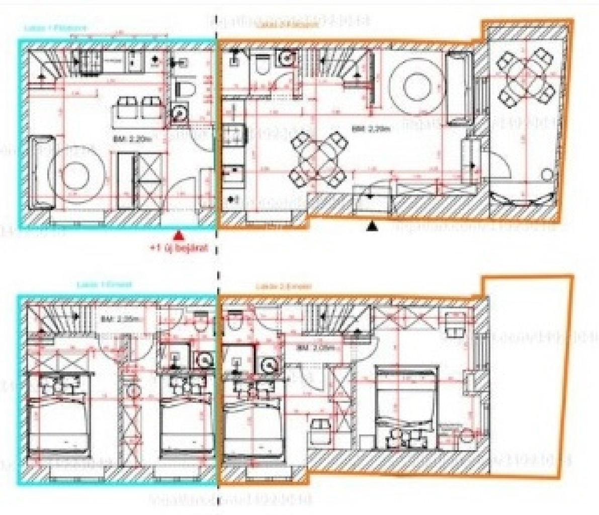
Budapest VIII. kerületében, a Német utcában, hangulatos társasház földszintjén kínálunk eladásra két külön bejáratú, belső kétszintes, teljeskörűen felújított, bútorozott és gépesített lakást.

Mindkettő duplakomfortos, modern padlófűtéssel és inverteres klímával, külön villany- és vízórával.

A földszinti belmagasság 220 cm, a felső szinten 205 cm.

B lakás: 51 m² + 11 m² télikert, (alsó szint: 26 m², felső szint: 25 m²) Ár: 75 M Ft
A lakás: 40 m², (alsó szint: 20,3 m², felső szint: 19,7 m²)
Ár: 65 M Ft

Átadás: 2025. augusztus vége, szeptember eleje.
Referenciafotók az előző lakásokról készültek!
Amennyiben felkeltettem érdeklődését, keressen bizalommal.
Ha nem veszem fel, visszahívom!
ID: 387054
Apolzan Magdalena

Apolzan Magdalena
Advertiser

Call me with confidence

+36-70-908-Show!

Other listings

Real Estate Agency
GDN Real Estate Network - SZIGET
+36 24 656 320