Flat (brick) For sale Budapest VIII. district - Mátyás tér

For sale Budapest VIII. kerület Flat (brick)
90 m2Space 2 + 1 Rooms
114 900 000 HUF Price
390308ID number
Other data

Street View

In good condition Condition

Brick Structure

Gas (convector) Heating

Full comfort Comfort

At community areas Parking

Floor 2

Exist Elevator

Good Public transport

No American kitchen

No exist Access to the garden

1920 Year of construction

Northwest Orientation

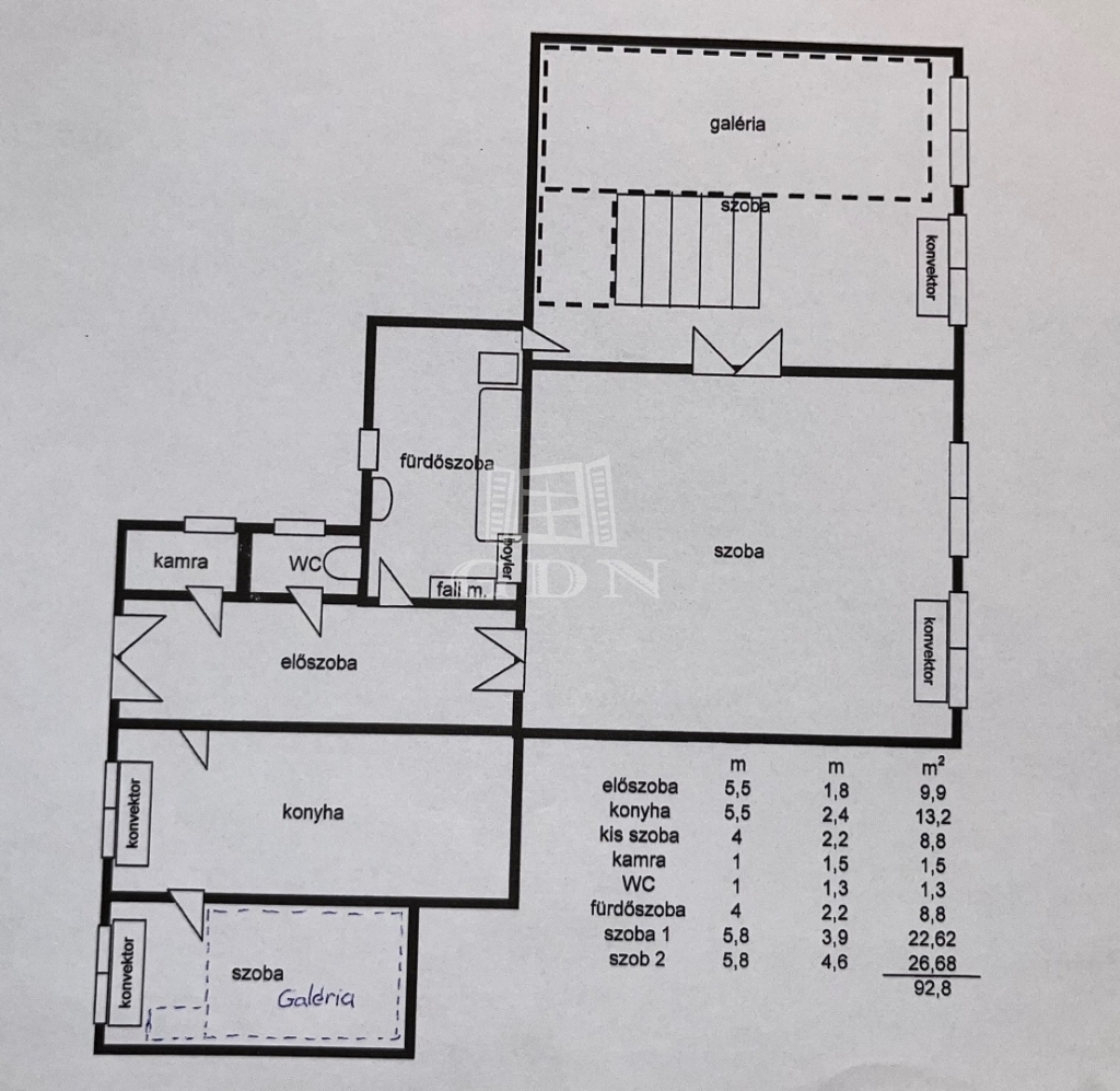
Eladásra kínálunk a Mátyás téren, egy 90 m²-es (valóságban 93 m²-es), utcai és udvari nézetű, jó állapotú, világos lakást. Az ingatlan a 2. emeleten található, liftes társasházban, amelynek külső homlokzata igényesen karbantartott.

A lakás 2+1 szobás, külön konyhával, valamint nagy belmagassággal rendelkezik. Az otthon különlegessége a dupla galéria, amely kiválóan növeli a hasznos alapterületet, így ideális lehet akár dolgozósarok, hálórész vagy tároló kialakítására. A műanyag nyílászárók korszerűek, a fűtést gázkonvektorok biztosítják.

A környék folyamatosan fejlődik: közelben található iskola, óvoda, játszótér, boltok, kávézók, gyógyszertár, minden fontos szolgáltatás könnyen elérhető.
A közlekedés szintén kiváló, a metrómegálló pár perc sétára található.

Ez az ingatlan ideális választás mindazoknak, akik tágas, jó elosztású lakást keresnek egy értékálló, megújuló városrészben.

Jöjjön el, nézze meg, és tegyen ajánlatot!

INGYENES hitel tanácsadás!
BANKFÜGGETLEN hitelcentrumunk minden elérhető bank és hitelintézet ajánlatát versenyezteti az Ön kedvéért, ráadásul DÍJMENTESEN.

ID:386369
Kémeri-Szekernyés Tímea

Kémeri-Szekernyés Tímea
Advertiser

Call me with confidence

+36-30-248-Show!

Other listings

Real Estate Agency
GDN Real Estate Network - SZIGET
+36 24 656 320