Family House For sale Bana - József Attila utca

For sale Bana Family House
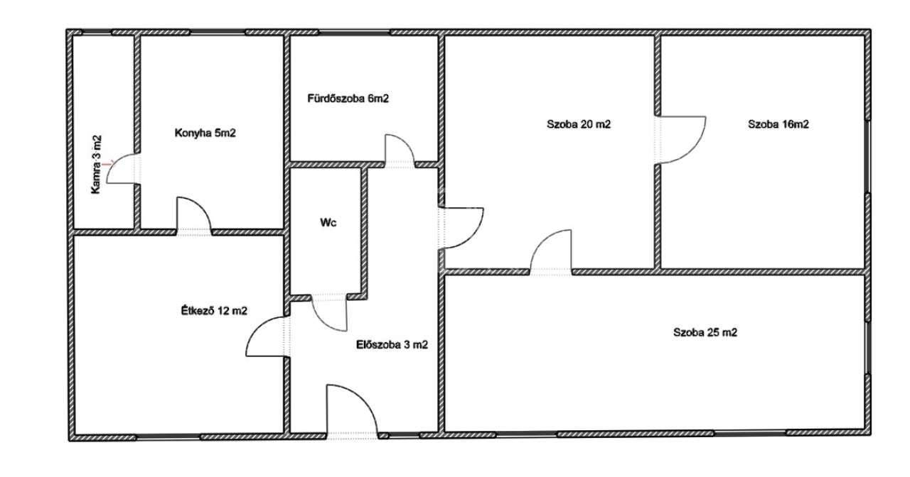
90 m2Space 3 Rooms
13 500 000 HUF Price
389808ID number
Other data

1730 m2 Building lot

Street View

To be renovated Condition

Mixed structure walls Structure

Gas (convector) Heating

Comfort Comfort

Self-parking Parking

Good Public transport

No American kitchen

Exist Access to the garden

1940 Year of construction

Eladó családi ház Banán- csendes falusi környezetben, mégis jó infrastruktúrával.

Ingatlan bemutatása
Banán, egy kb 2000 fős kis községben kínálunk eladásra egy 1940-58 körül épült, vegyes falazatú, három szobás családi házat.

Az ingatlan szerkezete masszív, jó felújítási alapot nyújt, miközben megőrzi a régi idők hangulatát.

A három szoba mellett konyha és egyéb mellékhelyiségek állnak rendelkezésre, így család számára is kényelmes elrendezésű lehet.

A fűtésről gázkonvektorok gondoskodnak, de van cserépkályha is, ami hangulatos, alternatív fűtési megoldást jelent téli estéken.

Ez a kétféle fűtés kombináció stabil, rugalmas és költséghatékony lehet.

Az ingatlan négyzetméter ára rendkívül kedvező, különösen, ha figyelembe vesszük a település környékén zajló ipari fejlesztéseket, amelyek tovább növelhetik majd az ingatlan értékét.

Miért éri meg Bana települését választani?

Kedvező elhelyezkedés.

A település jelentősen részesül a közlekedési előnyökből: mindössze kb. 5,5 km-re halad el az M1-es autópálya, így gyors és kényelmes elérhetőség biztosított.

Két jelentősebb város is könnyen megközelíthető: Győr kb. 20 km-re, Komárom kb. 23 km-re van.

Nyugodt, falusi életminőség.

A falusi jelleg megőrzi a nyugalmat, a természetközeli életstílust, miközben nem kell lemondani a modern kényelmekről.

Az utak és közlekedési kapcsolatok jók: az autópálya közeli elérhetősége komoly előnyt jelent ingázás vagy jövőbeni befektetés szempontjából.

Fejlődési potenciál nagy, hiszen az elmúlt pár évben jelentős ipari fejlesztések zajlottak.

Ez a lokáció jó lehetőség befektetőknek, vállalkozóknak, de családoknak is, akik a jövőben nem csak lakhatásra, hanem értéknövekedésre is gondolnak.

A történelmi hangulat, a falusi értékek és a közösségi élet mind hozzájárulnak egy olyan helyhez, ahol nemcsak lakni, de élni is érdemes.

Ez a családi ház Banán nemcsak egy hangulatos, régi stílusú ingatlan, hanem olyan befektetés is lehet, amely a falusi nyugalom és a modern infrastruktúra előnyeit ötvözi.

A kedvező ár, a fűtési rugalmasság, valamint a közeli ipari fejlesztések komoly potenciált jelentenek nem csak jelenlegi lakók, hanem jövőbeni tulajdonosok számára is.

Az ingatlan tehermentes- azonnal költözhető, csak készpénzre vásárolható meg!

Megtekintés miatt kérem keressen elérhetőségeim valamyelyikén.
Gergicsné B. Enikő

Gergicsné B. Enikő
Advertiser

Call me with confidence

+36-30-941-Show!

Other listings

Real Estate Agency
GDN Real Estate Network - SZIGET
+36 24 656 320

Call me back