Einfamilienhaus Verkauf Taksony - Taksony központ

Verkauf Taksony Einfamilienhaus
504 m2Wohnfläche 9 Zimmer
290 666 000 HUF Kaufpreis
393598ID nummer
Weitere Informationen

686 m2 Grundstück

Straße Ansicht

In gutem Zustand Zustand

Tégla Struktur

Gas (Umlauf) Heizung

Dupla komfort Komfort

Eigene Garage Parkplatz

Gut Öffentliche Verkehrsmittel

Amerikanische Küche

Es gibt Zugang zum garten

1993 Baujahr

Südwesten Orientierung

Üzlethelyiségek + lakások + vendéglátó tér!

Taksonyban 504 m²-es bevételt termelő ingatlan!

Taksony frekventált részén eladó egy 504 m²-es, többfunkciós ingatlan, amely kiváló befektetési lehetőséget kínál. Az épület kialakítása lehetővé teszi lakások, üzlethelyiségek és vendéglátó egység egyidejű hasznosítását, így az ingatlan több forrásból is azonnali bevételt termelhet.

Főbb jellemzők:

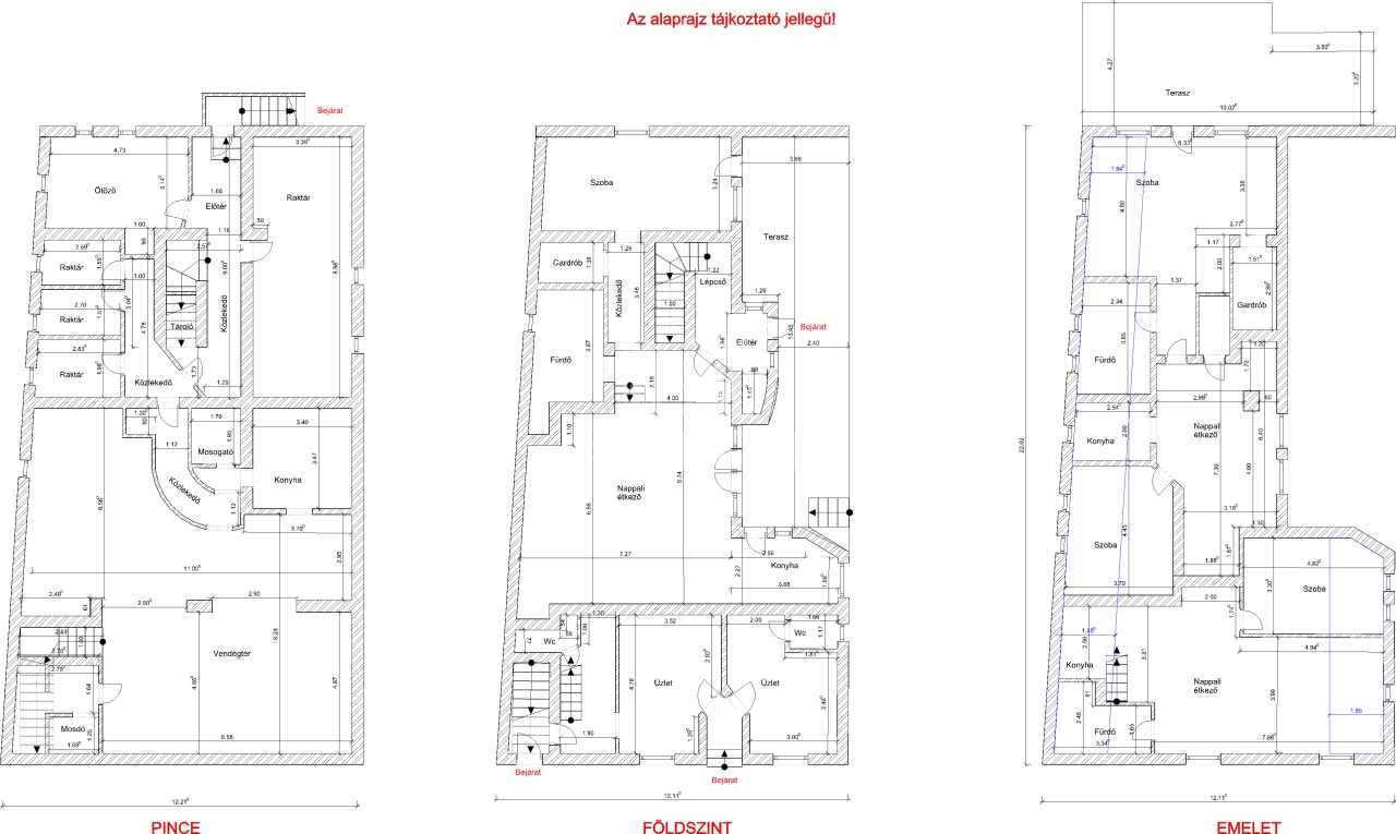
-504 m² bruttó alapterület,
-pince + földszint + tetőtér,
-2 utcafronti üzlethelyiség,
-több lakássá alakítható lakóterület,
-vendéglátásra kialakított pince,
-2 beállásos garázs az udvarban,
-befektetésre ideális kialakítás.

Lakóterület:

Az épület egyik meghatározó része egy nagy alapterületű, két szinten elhelyezkedő lakrész, amely kényelmes lakhatást biztosít, ugyanakkor befektetési szempontból is jól alakítható.

Földszint: 151,6 nm2 (Lakás:110,4 nm2, utcafronti üzletek összesen:41,2 nm2)+ terasz:45,85 nm2.
-tágas amerikaikonyhás nappali étkezővel,
-hálószoba,
-gardrób,
-fürdőszoba.

Tetőtér: Lakás: bruttó 95,04 nm2, nettó 67,27 nm2,+ erkékly: 39,04 nm2.
-világos nappali,
-2 hálószoba,
-fürdőszoba,
-teakonyha,
-erkéy.

A jelenlegi elrendezés lehetőséget ad arra, hogy a két szintből két különálló lakás kerüljön kialakításra, ami bérbeadás esetén külön bevételi egységeket jelenthet.

A lakótér mérete és kialakítása miatt az ingatlan alkalmas:
-többgenerációs lakhatásra,
-külön bérbeadható lakások kialakítására,
-tulajdonosi lakás + bérbeadható egységek kombinációjára.

Üzlethelyiségek:
Az utcafrontról 2 külön bejáratú üzlethelyiség nyílik.

Az egyik üzlethelyiséghez a tetőtérben egy teljes értékű lakás tartozik: lakás: bruttó 61,5 nm2, nettó 40,22 nm2).
-nappali,
-hálószoba,
-fürdőszoba,
-teakonyha.

Ez a kialakítás ideális üzlet + lakás kombinációként, de külön bérbeadva is jól hasznosítható.

Pince: 196,28 nm2

A pince szint vendéglátó funkcióra lett kialakítva:
-vendégtér,
-bár,
-konyha,
-raktár,
-öltözők,
-2 fürdőszoba előkészítés,

A személyzet számára külön rész:
-2 szoba,
-szobánként saját fürdőszoba és WC.

Lehetséges havi bevétel (becslés)

Az ingatlan több egységre bontva jelentős bérleti bevételt biztosíthat.

Példa kalkuláció:

2 lakás bérbeadása: kb. 180–220 ezer Ft / lakás

tetőtéri lakás az üzlethez: kb. 180–220 ezer Ft

2 utcafronti üzlethelyiség: kb. 200–300 ezer Ft / üzlet

vendéglátó pince bérbeadása: kb. 300–500 ezer Ft

Lehetséges összes havi bevétel: kb. 1 200 000 – 1 700 000 Ft

(A pontos bevétel a hasznosítás módjától függ.)

Befektetési lehetőség

Az ingatlan ideális:
-befektetési ingatlannak,
-bérbeadásra,
-üzlethelyiség üzemeltetésére,
-vendéglátó egység kialakítására,
-többlakásos ingatlan kialakítására,
-telephelynek vagy vállalkozásnak.

A kialakításnak köszönhetően az ingatlan rövid időn belül több lábon álló bevételt termelő befektetéssé alakítható.

Budapest közelsége és Taksony fejlődő infrastruktúrája miatt az ingatlan hosszú távon is stabil befektetés.

A hirdetésben szereplő adatok tájékoztató jellegűek!

Amivel segítjük az Ön ingatlanvásárlását:
- ingyenes hitelügyintézés,
- jogi háttér,
- földhivatali ügyintézés,
- energetikai tanúsítvány,
- a vevő számára az ingatlanközvetítés ingyenes.

Irodánk 30 éves szakmai tapasztalattal áll ügyfelei rendelkezésére!

Várom szíves megkeresését!
Gergicsné Veér Annamária

Gergicsné Veér Annamária
Inserent

Rufen Sie uns mit Vertrauen

+36-20-396- Zeig!

Andere eigene Anzeigen

Immobilienbüro
GDN Immobilien Netzwerk - SZIGET
+36 24 656 320

Rufen Sie mich zurück