Einfamilienhaus Verkauf Budapest XVII. bezirk - Nyugalom és modern kényelem!

Verkauf Budapest XVII. kerület Einfamilienhaus
83 m2Wohnfläche 1 + 4 Zimmer
138 000 000 HUF Kaufpreis
392029ID nummer
Weitere Informationen

613 m2 Grundstück

Hof Ansicht

Neuartig Zustand

Tégla Struktur

11 m2 Balkon/terrasse

Gas (Umlauf) Heizung

voller Komfort Komfort

Stellplatz Parkplatz

Gut Öffentliche Verkehrsmittel

Amerikanische Küche

Es gibt Zugang zum garten

2018 Baujahr

Süden Orientierung

Modern családi otthon nyugodt környezetben – eladó újszerű ház Rákoskerten!

Ha egy csendes, zöld környezetben lévő, mégis modern és kényelmes otthont keresel, akkor ezt a házat érdemes megnézned!

Budapest XVII. kerületének közkedvelt rákoskerti részén eladó egy 2018-ban épült, újszerű állapotú családi ház, amelyet azóta is gondosan karbantartanak. A ház harmonikus hangulatú, praktikus elosztású, és ideális választás családok számára.
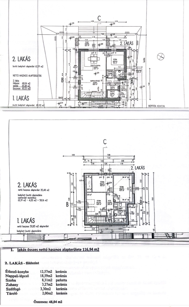
Rendkívül jól átgondolt elrendezés!
A házba belépve egy barátságos előszoba fogad, ahonnan:
jobbra egy zuhanyzós fürdőszoba,
balra egy háztartási helyiség és kamra,
szemben pedig a világos, amerikai konyhás nappali található.
A nappaliból nyílik egy földszinti hálószoba, amely dolgozószobaként is igen hasznos lehet. Az étkező pedig közvetlen teraszkapcsolattal rendelkezik, így a kert és a belső tér tökéletesen összekapcsolódik.
Az emeleten további 3 külön nyíló hálószoba és egy kádas fürdőszoba kapott helyet, ami kényelmes életteret biztosít akár nagyobb családoknak is.

Műszaki tartalom:
 gázcirkó fűtés
 padlófűtés a földszinti hidegburkolatos helyiségekben
 radiátoros hőleadás a szobákban
 emeleti klíma a nyári komfortért
 videós kaputelefon
 riasztórendszer előkészítés

Hangulatos kert
A gondozott udvarban egy külön kialakított kerti sütögető rész várja a családi és baráti összejöveteleket – tökéletes hely egy nyári grillezéshez vagy esti beszélgetésekhez.

Miért jó választás?
✔ csendes, családbarát környék
✔ újszerű, modern állapot
✔ praktikus elrendezés
✔ hangulatos kert
✔hitelezhető ingatlan
A telek osztatlan közös, de fizikálisan szétválasztott, mindenki saját udvarral rendelkezik. Ügyvédi használati megosztás kész van.

Ez a ház tökéletes választás mindazoknak, akik a városi élet kényelmét szeretnék ötvözni a nyugodt, otthonos környezettel.
Amennyiben a megvásárláshoz hitelre van szüksége, bankfüggetlen hitelcentrumunk egyedi ajánlatokkal is térítésmentes áll ügyfeleink rendelkezésre az egész hitelfelvételi folyamat során.
Kémeri-Szekernyés Tímea

Kémeri-Szekernyés Tímea
Inserent

Rufen Sie uns mit Vertrauen

+36-30-248- Zeig!

Andere eigene Anzeigen

Immobilienbüro
GDN Immobilien Netzwerk - SZIGET
+36 24 656 320