双面别墅 出卖 Budapest XXII. 市区 - Budafok kedvelt részén ÚJ Ikerház !

出卖 Budapest XXII. kerület 双面别墅
86 m2面积 3 房间
142 900 000 HUF 价格
394688识别码
更多信息

300 m2 地皮

外面是园子 风景

新建 状态

Tégla 架构

26 m2 阳台

热泵 暖气

deplin confort 舒适感

在接到 停车

Kiváló 公共交通

美国式厨房

有 有园子

2026 修建年

Eladásra kínálunk Budapest XXII. kerületében Budafokon 300 m2-es kerttel rendelkező belső kétszintes, dupla komfortos, nappali + 2 szobás, összesen 75 m2 nettó hasznos lakóterülettel rendelkező, új építésű ikerházat.

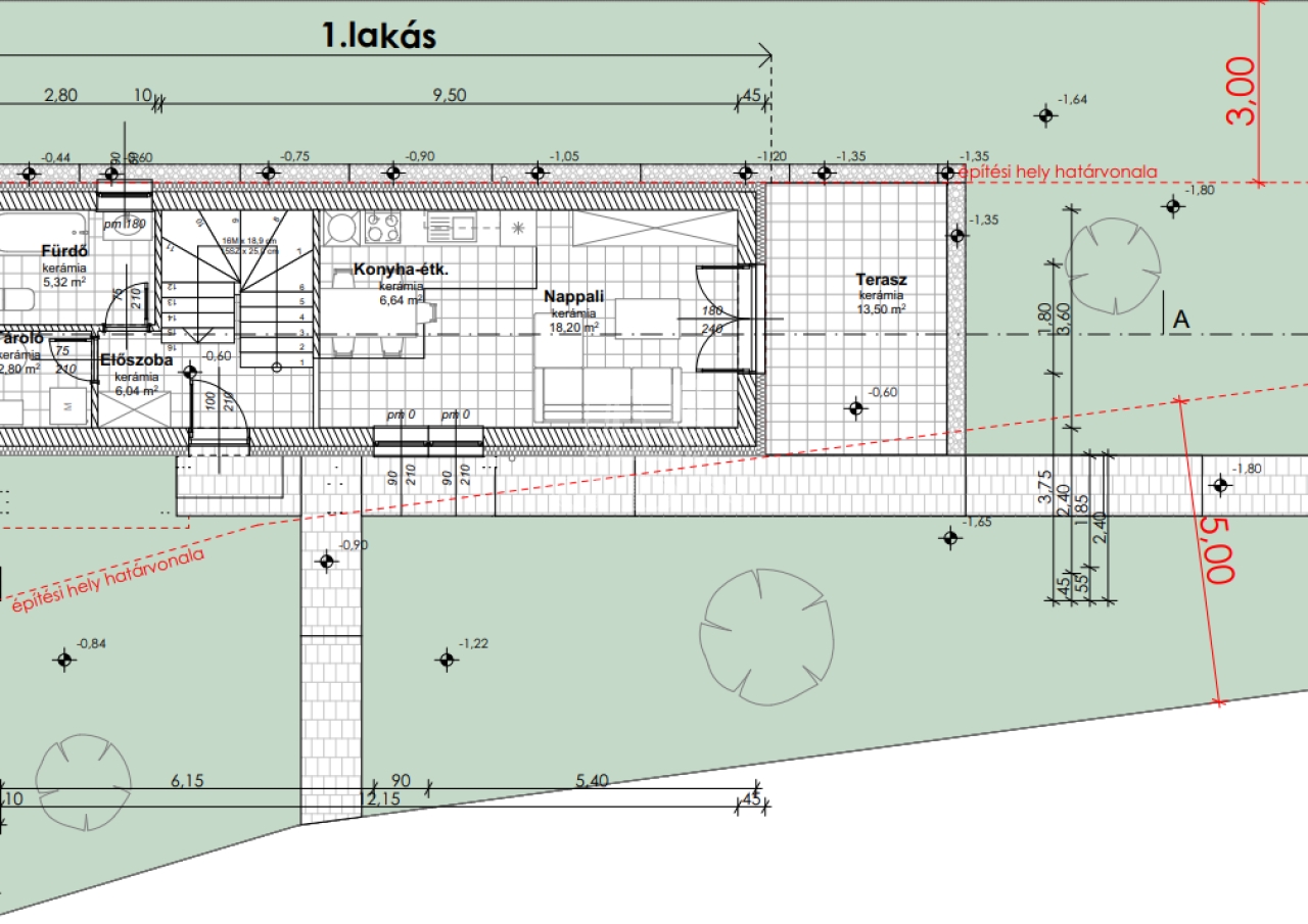
Elrendezés:

Földszint: nettó 41 m2 + terasz

• Nappali 18.2 m2
• Konyha - étkező 6.46 m2
• Előszoba 6.04 m2
• Fürdő - mosdó 5.27 m2
• Háztartási h. 5.32 m2
• Terasz 13,5 m2

Emelet: nettó 34 m2

• 2 szoba 12.6 m2, 10.44 m2
• Zuhanyzó + mosdó 2.75 m2
• Előszoba 2,15m2
• Lépcső 5,45 m2
• Tetőtéri terasz 13,5 m2

Kert:
• 300 m2

Műszaki paraméterek – szerkezeti leírás (részlet):
Beton sávalap. Tégla főfalak + 15 cm dryvit szigetelés.Tégla válaszfalak. Műanyag külső nyílászárók hőszigetelt üvegezéssel. Belső nyílászárók dekorfóliás ajtók. Cserép fedésű tető.

Fűtés: Az épület fűtését hőszivattyús rendszer látja el, minden helyiségben padlófűtés található.
Hideg-meleg burkolatok kiválaszthatók a műszaki leírásban rögzített árak szerint.

Tapasztalt - megbízható generál kivitelező munkájával készül a ház - referencia ingatlanjai megtekinthetőek!

Kiváló lokációval rendelkezik az ingatlan. A közelben található iskola – óvoda – bölcsőde – bevásárlóközpont.

Projekt átadás: 2026. november -december

Az ingatlant fiatal pároknak és családoknak egyaránt ajánljuk.

Amennyiben Önnek a vásárláshoz szüksége lenne hitelre egyedi kedvezménnyel,kezdeményezheti a kapcsolatfelvételt bankfüggetlen hitelügyintézőinkkel, teljesen DÍJMENTESEN.

Az ingatlan részletes ismertetése és bemutatása előre egyeztetett időpontban lehetséges, melyet nagyon rugalmasan kezelünk, akár HÉTVÉGÉN is.

Amennyiben felkeltette az érdeklődését, további kérdéseivel kapcsolatban várom jelentkezését!
Köő Zsolt

Köő Zsolt

随时给我们打电话

+36-20-234- 给我看

更多的广告

房产代理处
GDN 房产联盟 - SZIGET
+36 24 656 320