Családi ház Eladó Budapest XXI. kerület - Hollandi út

Eladó Budapest XXI. kerület Családi ház
160 m2Alapterület 5 Szoba
179 500 000 Ft Ár
Hitelkalkuláció folyamatban... Loading
386554Azonosító
További adatok

539 m2 Telek

Udvari Kilátás

Közepes Állapot

Tégla Szerkezet

18 m2 Erkély/terasz

Gáz (cirkó) Fűtés

Dupla komfort Komfort

Saját garázs Parkolás

Tömegközlekedés

Amerikai konyhás

Van Kertkapcsolat

1968 Építés éve

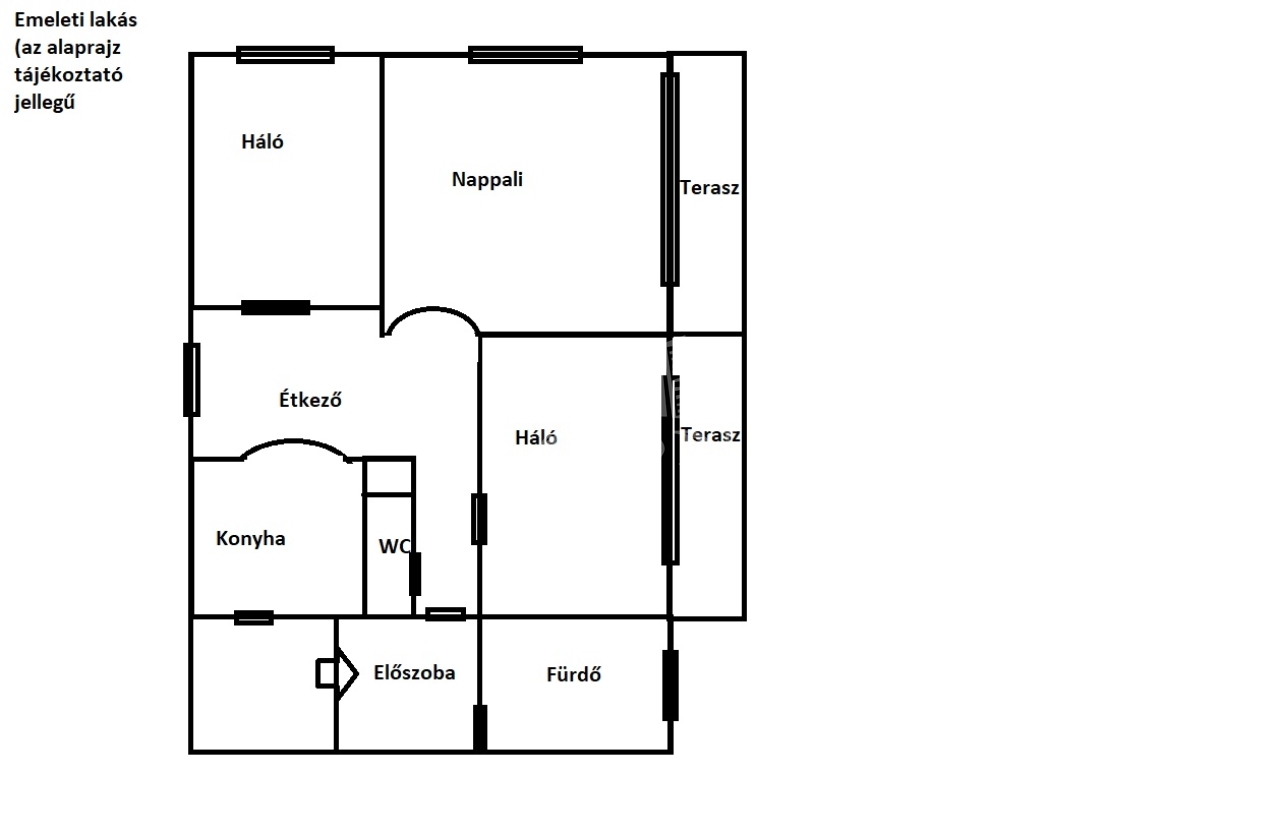
*Különleges lehetőség! 1970-80-as években épült, 3 szintes családi ház eladó!*
Egyedi ajánlat: 2 x 95 nm-es, két külön bejáratú lakás egy ingatlanban!

- *Alsó szint:*
- Fedett teraszról érkezünk az előszobába, 2 szoba, étkező, konyha, spájz, kádas fürdőszoba, külön WC, és tartozik hozzá egy külön bejáratú szoba/tároló
- *Felső szint:*
- 3 szoba, étkező, konyha, zuhanyzós fürdőszoba, külön WC, előszoba

- Műszaki jellemzők:
- Téglából épült, műanyag nyílászárók redőnnyel, szúnyoghálóval
- Alsó szinten és fent is radiátoros fűtés (kazán és vegyestüzelésű kazán) fenti szinten egy klíma
- Melegvíz: villanybojler

Környezet:
-Az ingatlan közel a Dunaparthoz egy szépen gondozott saroktelken épült két ütemben. A kert locsolása fúrt kútról megoldható.
- 30 nm-es garázs az autónak


Érdekel? Szeretnél többet megtudni vagy megtekinteni az ingatlant?
Keress bizalommal!
Fajta Anita

Fajta Anita

Hívjon bizalommal

+36-30-381-Mutasd!

További hirdetéseim

Ingatlaniroda
GDN Ingatlanhálózat - SZIGET
+36 24 656 320

Visszahívást kérek

Hasonló ingatlanok

Keressen bennünket