Lakás (téglaépítésű) Eladó Budapest V. kerület - Irányi utca

Eladó Budapest V. kerület Lakás (téglaépítésű)
68 m2Alapterület 3 Szoba
179 000 000 Ft Ár
Hitelkalkuláció folyamatban... Loading
395205Azonosító
További adatok

Utcai Kilátás

Felújított Állapot

Tégla Szerkezet

Gáz (cirkó) Fűtés

Dupla komfort Komfort

Utcán, közterületen Parkolás

Emelet 3

Van Lift

Kiváló Tömegközlekedés

Amerikai konyhás

Nincs Kertkapcsolat

1935 Építés éve

Közös költség 15 000 Ft

Délkeleti Tájolás

ELADÓ FELÚJÍTOTT LAKÁS BUDAPEST BELVÁROSÁBAN, V. KERÜLET IRÁNYI UTCA!

68 nm, 3 szoba, 179 MFt.

A felújított 3 szobás lakás az Erzsébet híd pesti hídfőjénél, a Váci utca és az Irányi utca közelében található. Kiváló infrastruktúra és remek közlekedés jellemző a környékre. Pár perces sétával minden elérhető ami a mindennapok kényelméhez kell, karnyújtásra van a Duna-part, több üzlet, vendéglátóhely, valamint különböző tömegközlekedési lehetőségek. A közelben iskola is található, a parkolás a kerületi lakosok számára kijelölt helyeken megoldott.

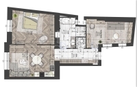
Az ingatlan egy kisebb lakásszámú, csendes társasház 3. emeletén található. A belmagasság közel 4 méter, a helyiségek tágasak, ennek köszönhetően világos és jól szellőző életteret biztosítanak.
A lakásba lépve egy tágas előtérbe lépünk, ahol beépített tárolószekrény található, innen közelíthető meg a nappali, és a gépesített, jól felszerelt konyha. A nappaliból nyílik a nagyobb hálószoba, a kisebb háló az előtérből közelíthető meg, ablakai a belső udvarra néznek. A lakás a folyosó végén helyezkedik el, így az ablakok előtt nincs átmenő forgalom.

A fürdőszobában zuhanyzó, nagyméretű kád, valamint a mosó- és szárítógép számára kialakított falfülke kapott helyet. A Fürdő és a WC külön helyiségben kapott helyet. Az egész lakás ízlésesen berendezett, és nagyon hangulatos, a tulajdonos eredetileg saját részre újította fel.
Csík Zsolt

Csík Zsolt

Hívjon bizalommal

+36-30-641-Mutasd!

További hirdetéseim

Ingatlaniroda
GDN Ingatlanhálózat - SZIGET
+36 24 656 320