Wohnung (Ziegel) Verkauf Budapest V. bezirk - Szent István körút

Verkauf Budapest V. kerület Wohnung (Ziegel)
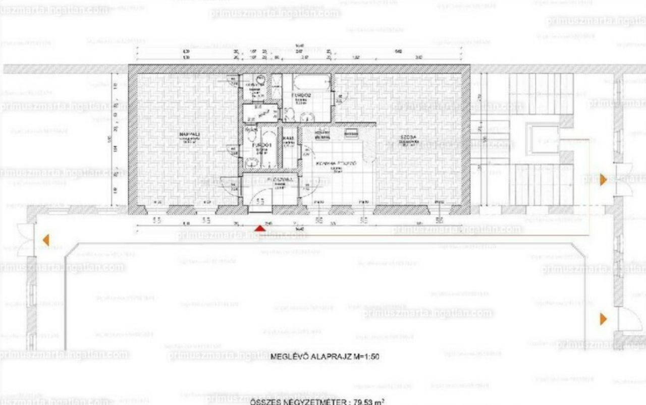
79 m2Wohnfläche 2 Zimmer
105 500 000 HUF Kaufpreis
393730ID nummer
Weitere Informationen

Hof Ansicht

In gutem Zustand Zustand

Tégla Struktur

Gas (Umlauf) Heizung

voller Komfort Komfort

Auf Gemeindeflächen Parkplatz

Etage 4

Top etage

Es gibt Aufzug

Ausgezeichnet Öffentliche Verkehrsmittel

Nein Amerikanische Küche

Es gibt nicht Zugang zum garten

1897 Baujahr

Gemeinsame Gebühren 25 280 HUF

Osten Orientierung

Világos, csendes lakás a Nagykörút közelében – azonnali hozammal!

Eladó egy 79 m²-es, udvari, világos ingatlan, amely jelenleg két teljes értékű lakásra osztott, külön bejárattal, így akár bérlőkkel együtt, azonnali hozamot biztosítva.

--- For English, scroll down ----

✅ Lakás – pontos m²-adatok:

Közös előtér: 3,94 m²

1. lakás:

Szoba: 26,66 m²

Fürdőszoba: 2,86 m²

Konyhafülke: 1,24 m²

2. lakás:

Szoba: 26,41 m²

Konyha: 11,56 m²

Fürdőszoba: 6,33 m²

Kamra: 1,27 m²

✅ Kiváló lokáció – a Vígszínház és a Jászai Mari tér között, csendes, világos lakás, a 4. emeleten, ideális befektetésre.

✅ Történelmi és építészeti érték – a házat a Haggenmacher család építtette, terveit Hubert József (1846–1916) készítette. Az épület 1897–1898-ban épült, eklektikus stílusban, négyemeletes, magastetős, belső udvaros bérház.

Utcai homlokzat: héttengelyes, ikerablakokkal a szélső tengelyekben

Zárterkély a II–III. emeleten, kőkonzolokkal, kovácsoltvas korláttal a IV. emeleten

Portál diadalív-motívummal, oroszlánfej díszítéssel

Belső udvar: téglalap alakú, kovácsoltvas korlátos körfolyosó

Híres lakói: Somlay Artúr (1883–1951), Sándor Kálmán (1903–1962)

✅ Gazdaságos üzemeltetés – átlagos rezsi ~20.000 Ft/hó, közös költség 25.280 Ft/hó.

✅ Befektetők álma – azonnal kiadható, hosszú távon értékálló.

Ár: 105,5 millió Ft

✅ Környék és közlekedés:

Közeli látványosságok: Margitsziget, Parlament, Vígszínház

Üzletek, kávézók, éttermek, szórakozási lehetőségek a közelben

Iskolák, óvodák gyalogosan elérhetők

Kiváló közlekedés: villamos- és buszmegállók pár perc sétára, M1/M2 metró a közelben, gyors elérés pályaudvarokhoz és a Belvároshoz

5. kerület, Budapest szívében

--- English ---

✅ Bright, quiet apartment near the Nagykörút – immediate rental income!

For sale: a 79 m², courtyard-facing, bright apartment, currently divided into two fully functional units, each with separate entrances, providing immediate rental income if purchased with tenants.

✅ Flexible layout – exact sizes:

Shared entrance: 3.94 m²

1st apartment:

Room: 26.66 m²

Bathroom: 2.86 m²

Kitchenette: 1.24 m²

2nd apartment:

Room: 26.41 m²

Kitchen: 11.56 m²

Bathroom: 6.33 m²

Pantry: 1.27 m²

✅ Excellent location – between Vígszínház and Jászai Mari Square, quiet and bright, on the 4th floor, ideal for investors.

✅ Historical and architectural value – the building was commissioned by the Haggenmacher family, designed by József Hubert (1846–1916). Built in 1897–1898 in eclectic style, it is a four-story, pitched-roof, courtyard-facing apartment building.

Street façade: seven axes with twin windows on the outer axes

Enclosed balconies on the 2nd–3rd floors, supported by stone consoles, with wrought-iron railings on the 4th floor

Portal with triumphal arch motif and lion head decoration

Inner courtyard: rectangular, surrounded by wrought-iron rail balcony corridors

Famous former residents: Artúr Somlay (1883–1951), Kálmán Sándor (1903–1962)

✅ Cost-effective operation – average utility costs ~20,000 HUF/month, common costs 25,280 HUF/month.

✅ Investor’s dream – immediately rentable, long-term value.

Price: 105.5 million HUF

✅ Neighborhood and transport:

Nearby attractions: Margaret Island, Parliament, Vígszínház

Shops, cafes, restaurants, entertainment options nearby

Schools and kindergartens within walking distance

Excellent transport connections: tram and bus stops just a few minutes away, M1/M2 metro nearby, quick access to train stations and the city center

Located in District V, the heart of Budapest
Gergicsné B. Enikő

Gergicsné B. Enikő
Inserent

Rufen Sie uns mit Vertrauen

+36-30-941- Zeig!

Andere eigene Anzeigen

Immobilienbüro
GDN Immobilien Netzwerk - SZIGET
+36 24 656 320