Wohnung (Ziegel) Verkauf Budapest V. bezirk - Nyáry Pál utca

Verkauf Budapest V. kerület Wohnung (Ziegel)
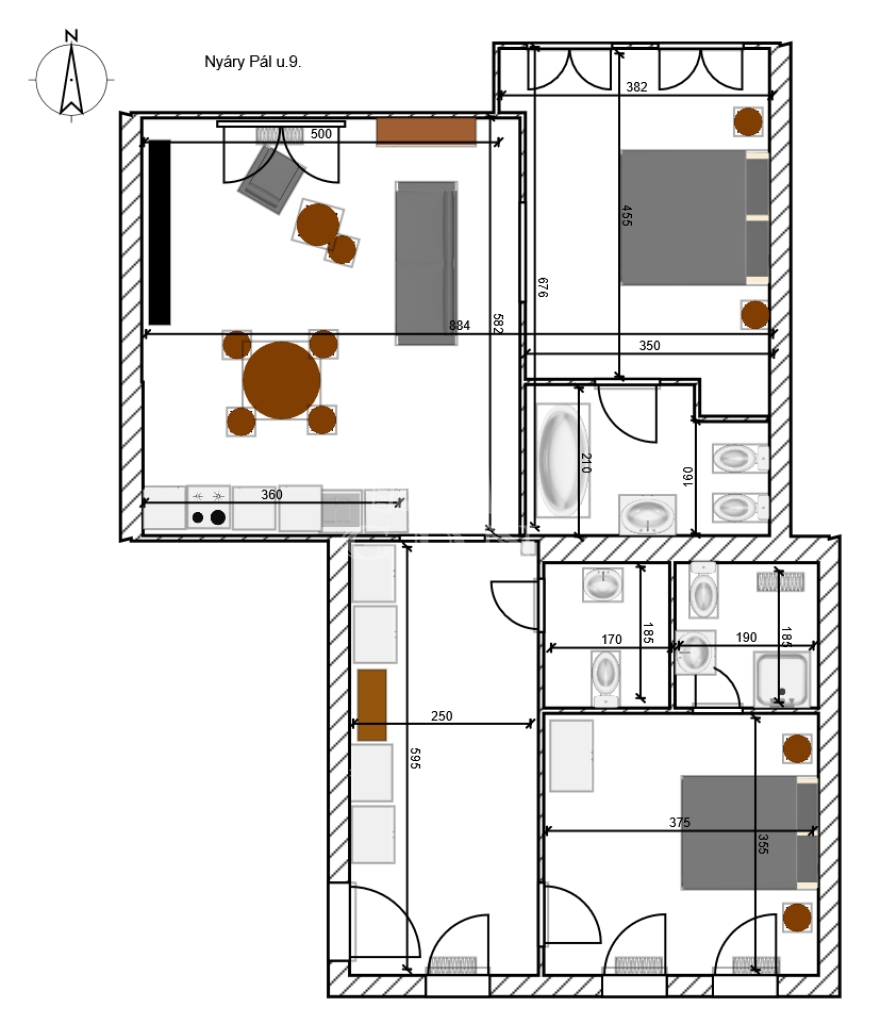
89 m2Wohnfläche 3 Zimmer
249 900 000 HUF Kaufpreis
392273ID nummer
Weitere Informationen

Straße Ansicht

Erneuert Zustand

Tégla Struktur

Gas (Umlauf) Heizung

Dupla komfort Komfort

Auf Gemeindeflächen Parkplatz

Etage 3

Es gibt Aufzug

Gut Öffentliche Verkehrsmittel

Amerikanische Küche

Es gibt nicht Zugang zum garten

1920 Baujahr

Gemeinsame Gebühren 42 800 HUF

✨ Luxus életérzés a belváros szívében – azonnal költözhető! ✨

Eladó a V. kerület egyik legkeresettebb utcájában, a Nyáry Pál utcában, közvetlen a Váci utca mellett egy 89 m²-es, nappali + 2 hálószobás, duplakomfortos, vendég WC-s, 3. emeleti luxuslakás.

Prémium felújítás, kompromisszumok nélkül
Az ingatlan teljes körű, magas minőségű felújításon esett át:
✔️ új víz- és villanyvezetékek
✔️ új nyílászárók
✔️ designer csillárok
✔️ beépített szekrények
✔️ prémium burkolatok és szaniterek
✔️ elegáns chevron tölgyfa parketta
✔️ impozáns 3,6 m belmagasság

Elrendezés, ami egyszerre elegáns és praktikus
– Amerikai konyhás, tágas nappali
– Fő hálószoba saját, kádas fürdőszobával (WC + bidé)
– Második hálószoba zuhanyzós fürdővel
– Külön vendég WC
– Nappali és fő háló a csendes utcára, második háló a nyugodt belső udvarra néz

Teljesen gépesített, modern konyha
AEG készülékekkel felszerelve:
mosogatógép • sütő • főzőlap • páraelszívó • hűtő fagyasztóval • mosó-szárítógép

❄️ Maximális kényelem
– 3 db klíma
– automata redőnyök
– kondenzációs kazán
– közös költség: 42.809 Ft/hó (vízdíjat is tartalmaz)

Teljes bútorzattal eladó!
Csak hozd a bőröndöd – az új tulajdonos azonnal beköltözhet ebbe az exkluzív otthonba.

Tökéletes választás otthonnak vagy befektetésnek
Ha belvárosi luxust, eleganciát és időtálló értéket keresel, ezt a lakást látni kell!
Csík Zsolt

Csík Zsolt
Inserent

Rufen Sie uns mit Vertrauen

+36-30-641- Zeig!

Andere eigene Anzeigen

Immobilienbüro
GDN Immobilien Netzwerk - SZIGET
+36 24 656 320