Gewerbe - Geschäftsräume Verkauf Gárdony - Chernel István utca

Verkauf Gárdony Gewerbe - Geschäftsräume
128 m2Wohnfläche 0 Zimmer
130 000 000 HUF Kaufpreis
393361ID nummer
Weitere Informationen

Panorama Ansicht

Neubau Zustand

Tégla Struktur

Wärmepumpe Heizung

Auf Gemeindeflächen Parkplatz

Gut Öffentliche Verkehrsmittel

2026 Baujahr

Norden Orientierung

Vip-004751. Gárdonyban, a Velencei-tó partjától mindössze 100 méterre ÚJ ÉPÍTÉSŰ társasház földszintjén 103m2-es, utcafronti üzlethelyiség/irodahelyiség 24,3m2-es terasszal eladó!

Az ingatlan kiváló elhelyezkedésű: mindössze 100 méterre található a Velencei-tó partjától, valamint a vasúti megálló is pár perc sétatávolságra elérhető.

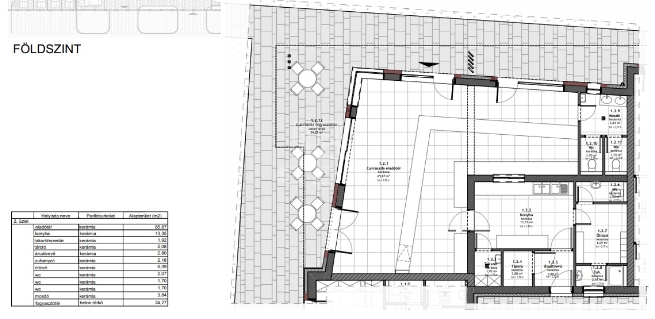
Beltéri elosztás:
Eladótér (nettó)65,87 m²
Fogyasztótér(nettó)24,27 m²
Konyha(nettó)13,35 m²
Takarítószertár(nettó)1,92 m²
Tároló(nettó)2,08 m²
Árúátvevő(nettó)2,80 m²
Zuhanyzó(nettó)2,18 m²
Öltöző(nettó)6,09 m²
WC(nettó)2,07 m²
WC(nettó)1,70 m²
WC(nettó)1,70 m²
Mosdó(nettó)3,84 m²
Összesen103,6 m²
+ Kültér
Erkély / Terasz (nettó)24,27 m²

Tájolása: É

Minden közmű önállóan mérhető, fogyasztás alapján fizetendő.
A fűtést hőszivattyú biztosítja padlófűtéses hőleadással, klíma előkészítés kialakított.

Ingyenes parkolási lehetőség rendelkezésre áll a társasház környezetében, illetve lehetőség van felszíni parkolóhely megvásárlására a lakópark területén 2,5 M Ft-tól.

A társasház összesen 12 lakásból és 4 üzlethelyiségből áll –
tervezett műszaki átadás: 2026. szeptember.

Főbb műszaki paraméterek:
– padlófűtés
– klíma előkészítés
– egyéni mérőórák
– minőségi anyagok felhasználása
– felsőkategóriás belsőépítészeti kialakítás
– motoros redőnyök
– nyílászárók 3 rétegű üveggel
– választható hideg- és melegburkolat
– CPL fóliás beltéri ajtó választható színben
(Részletes műszaki leírás kérés esetén elérhető)

Eladási ár: 130 M Ft +Áfa
Az üzlethelyiség bérelhető is, bérleti díja: 540.000,- Ft + Áfa/ hó + rezsiköltség, illetve 2 havi kaució

Elérhető földszinti, utcafronti irodák/üzlethelyiségek melyek megvásárolhatók, vagy kibérelhetők:
1. számú helyiség: 43m2  Eladási ára: 51.000.000.- forint / Bérleti díja: 250.000,- Ft + Áfa/ hó + rezsiköltség, illetve 2 havi kaució
2. számú helyiség: 127,9m2  Eladási ára: 130.000.000.- forint / Bérleti díja: 540.000,-Ft + Áfa/ hó + rezsiköltség, illetve 2 havi kaució
3. számú helyiség: 38m2  Eladási ára: 44.500.000.- forint / Bérleti díja: 220.000,-Ft + Áfa/ hó + rezsiköltség, illetve 2 havi kaució
4. számú helyiség: 36m2  Eladási ára: 45.000.000.- forint / Bérleti díja: 250.000,-Ft + Áfa/ hó + rezsiköltség, illetve 2 havi kaució

Ha felkeltette érdeklődését, hívja irodánkat bizalommal, éljen ingyenes, személyre szabott hitelügyintézés szolgáltatásunkkal. Segítünk továbbá adásvételhez szükséges ügyvédi közreműködésben, energetikai tanúsítvány, valamint értékbecslés elkészítésében.

For English details please send us a message or an e-mail, thank you.
Ravasz Csongor

Ravasz Csongor
Inserent

Rufen Sie uns mit Vertrauen

+36-30-603- Zeig!

Andere eigene Anzeigen

Immobilienbüro
GDN Immobilien Netzwerk - SZIGET
+36 24 656 320

Rufen Sie mich zurück